+14 fotó
Hirdetéskód: 8839525
Referenciaszám: 391253
Feltöltve: 3 napja
Gárdony eladó üdülő és nyaraló 243 m² alapterületű: 150 millió Ft
150 millió Ft
617 284 Ft/m²
243 m²
1300 m²
10 szoba
Eladó üdülő, nyaraló Gárdony, 243nm, 150.000.000Ft - Gesztenye sor
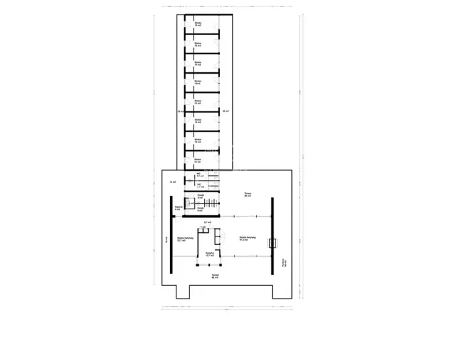
4800. Agárd legszebb, ősfákkal övezett csendes utcájában a Gesztenye soron, 400 m-re a központtól, 1300 m2-es dupla telken, 70-es években épült, masszív vasbeton szerkezetű, statikus által ellenőrzött, a szerkezeti állapotot tekintve kiváló állapotú, 243 m2 nettó alapterületű üdülőépület 8 szobával, felújított vizes blokkokkal és konyhával, új bojlerekkel, új 25*A ipari árammal, nagy közösségi terekkel és teraszokkal, új tetőszigeteléssel eladó.
Az épület kis felújítással jelenleg is alkalmas táborok vagy csoportok szezonális fogadására, a szálláshely 8 szobával üzemeltethető. A szobák előterében megtalálható a víz és vízelvezetés, nagyobb ráfordítással 8 stúdió apartman alakítható ki benne saját wc-vel ,saját fürdővel, saját minikonyhával.
A lokációnak, kialakításnak és stabil épület szerkezetnek köszönhetően egy modern luxus lakóépületté is átépíthető.
Méretek:
Közösségi tér (nappali, étkező, konyha) 90 m2
Vizesblokk ( 2 zuhanyzó, 2 WC, bojler helyiség) 33 m2
Szobák (8 *15 m2) 120 m2
Teraszok:
Nappali utca felől: 60 m2
Nappali kert felől: 55 m2
Bejárat: 20,6 m2
Térkövezett parkoló: 60 m2
Térkövezett bejáró: 16 m2
Szobák mögött: 30,5 m2
Szobák előtt kert felől: 44 m2
Ár: 150 Mft ...TOVÁBBI, TÖBBEZRES INGATLAN KÍNÁLAT: www.gdn-ingatlan.hu - GDN azonosító: 391253
Tulajdonságok
1
1970
280 m²
Nem adta meg a hirdető
Vedd fel a kapcsolatot a hirdetővel
+36 30 768 7
Hitelkalkulátor
Második évtől
645 532 Ft A 13. hónaptól
7,99%
Végig fix Futamidő: 20 év Banki visszahívás
Az OTP Bank munkatársai a neked megfelelő napszakban veszik fel veled a kapcsolatot.Vedd fel a kapcsolatot a hirdetővel
+36 30 768 7
Vedd fel a kapcsolatot a hirdetővel
+36 30 768 7
UI_KIT.CHARACTER_COUNTER__COMPONENT.REMAINING_SPACE__SR_ONLYUI_KIT.CHARACTER_COUNTER__COMPONENT.MAXIMUM_CHARACTER__SR_ONLY
Hasonló eladó ingatlanok Agárd városrészben
Frissítve: 17 napja
17
139 M Ft 817 647 Ft/m²
Eladó üdülő, hétvégi ház, Gánt

Frissítve: 5 napja
20
154 M Ft 1 084 507 Ft/m²
Eladó üdülő, hétvégi ház, Balatonakarattya

Frissítve: 14 napja
20
159,9 M Ft 1 142 143 Ft/m²
Eladó üdülő, hétvégi ház, Balatonmáriafürdő

Frissítve: ma
20
154 M Ft 1 084 507 Ft/m²
Eladó üdülő, hétvégi ház, Balatonakarattya

Frissítve: 14 napja
20
159 M Ft 1 325 000 Ft/m²
Eladó üdülő, hétvégi ház, Révfülöp

Frissítve: 16 napja
10
154 M Ft 1 084 508 Ft/m²
Eladó üdülő, hétvégi ház, Balatonakarattya


