+11 fotó
Hirdetéskód: 8879202
Referenciaszám: 392423
Feltöltve: 2 napja
Budapest VI. kerület eladó üzlet 331 m² alapterületű: 199,9 millió Ft
199,9 millió Ft
603 927 Ft/m²
331 m²
Eladó üzlet Budapest, VI. kerület, 331nm, 199.900.000Ft - Podmaniczky utca
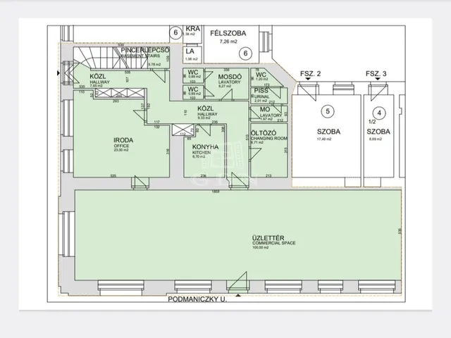
Budapest egyik legforgalmasabb üzleti csomópontján, a Nyugati pályaudvar közvetlen közelében kínálunk megvételre egy 331 m² összterületű, sokoldalúan hasznosítható üzleti ingatlant.
Négyzetméterár: ~601.000 Ft/m², amely a környék adottságaihoz és a kiemelkedő utcai megjelenéshez képest kifejezetten kedvező befektetési lehetőség.
Területek megoszlása:
Földszint: 175 m²
Belső félemelet (galéria/tárgyaló): 41 m²
Alagsor (raktár, irattár): 115 m²
Összesen: 331 m²
Főbb jellemzők:
- Sarki elhelyezkedés, kiváló utcai jelenlét
- Két külön utcai bejárat
- Hét nagyméretű kirakati portál
- Több funkcióra bontható belső tér
- Nagy belmagasság, kiváló térérzet
Alkalmas lehet többek között:
üzlethelyiségnek, irodának, bankfióknak, cégképviseletnek, edzőteremnek, hostelnek, kulturális vagy tánctérnek, bemutatóteremnek.
Területek:
Földszint: 175 m² - reprezentatív, utcai kapcsolattal
Belső félemelet: 41 m² - téglaépítésű, teljes értékű galéria vagy tárgyaló, 2,2 m belmagassággal, akár önálló megközelítéssel
Alagsor: 115 m² - raktár- és irattárblokkok, utcai árucsúszdával
Műszaki és egyéb információk:
- Részben klimatizált
- Kiépített kamera- és riasztórendszer
- Saját vízóra
- Elektromos áram: 3 fázis, 3×32 A
- Közös költség: 83.000 Ft/hó
- A homlokzat 7–8 éve teljes felújításon esett át
- Rendezett társasház, stabil lakóközösség
Befektetők figyelmébe:
A környéken tervezett, állami szintű városfejlesztések – különösen a Nyugati pályaudvar átalakítása – jelentős hosszú távú értéknövekedési potenciált biztosítanak.
Az ingatlan az Andrássy út világörökségi helyszín védőövezetében helyezkedik el, Budapest műemlék jelentőségű területén található, tömegközlekedéssel is kiválóan megközelíthető.
Tulajdonjog és vásárlás:
Az ingatlan cég tulajdonában áll, megvásárolható céggel vagy cég nélkül is, az értékesítés ÁFA-mentes.
Megtekintés:
Rugalmasan, előzetes egyeztetést követően, akár hétvégén is. ...TOVÁBBI, TÖBBEZRES INGATLAN KÍNÁLAT: www.gdn-ingatlan.hu - GDN azonosító: 392423
Tulajdonságok
Üzlet
Átlagos
Gázkazán
1930
D
Vedd fel a kapcsolatot a hirdetővel
+36 30 617 4
Vedd fel a kapcsolatot a hirdetővel
+36 30 617 4
Vedd fel a kapcsolatot a hirdetővel
+36 30 617 4
UI_KIT.CHARACTER_COUNTER__COMPONENT.REMAINING_SPACE__SR_ONLYUI_KIT.CHARACTER_COUNTER__COMPONENT.MAXIMUM_CHARACTER__SR_ONLY
Hasonló eladó ingatlanok Budapest VI. kerületben
Frissítve: 15 napja
20
199,9 M Ft 603 927 Ft/m²
Eladó kereskedelmi és ipari ingatlan, Budapest VI. kerület

Frissítve: 18 napja
2
180 M Ft
Eladó kereskedelmi és ipari ingatlan, Budapest VI. kerület

Frissítve: ma
13
180 M Ft 629 371 Ft/m²
Eladó kereskedelmi és ipari ingatlan, Budapest VI. kerület


Fedezd fel a
hasonló hirdetéseket!Még további kereskedelmi és ipari ingatlanok Budapesten 199,9 M Ft körüli értékben
Tovább a hirdetésekhez Frissítve: ma
20
190 M Ft 1 021 505 Ft/m²
Eladó kereskedelmi és ipari ingatlan, Budapest VI. kerület

Frissítve: 5 napja
20
190 M Ft 1 021 505 Ft/m²
Eladó kereskedelmi és ipari ingatlan, Budapest VI. kerület

Frissítve: 5 napja
20
190 M Ft 1 021 505 Ft/m²
Eladó kereskedelmi és ipari ingatlan, Budapest VI. kerület


