+6 fotó
Hirdetéskód: 8811863
Referenciaszám: 120338
Frissítve: 8 napja
Miskolc eladó üzlet 296 m² alapterületű: 69,9 millió Ft
69,9 millió Ft
236,1 ezer Ft/m²
296 m²
Befektetési Lehetőség Miskolcon: 296 m2-es, Két Szintes Ingatlan, Jelenleg Fitneszterem, Akár Bérlővel Együtt!
ÁRCSÖKKENÉS!
Régi ár: 74.9 M Új ár: 69.9 M
Miskolcon, a Testvérvárosok útján eladó egy kiváló elhelyezkedésű, két szintes, összesen 296 m²-es ingatlan, amely jelenleg is működő kondicionáló és fitneszteremként üzemel. Ideális befektetés, hiszen egyedi megállapodás alapján akár a jelenlegi bérlő is maradhat, biztosítva az azonnali bevételt. Az épület rugalmasan alakítható, így számos egyéb üzleti célra is alkalmas (pl. irodák, orvosi rendelő, szépségszalon, oktatási központ).
Kérjük, vegye figyelembe, hogy az ingatlan vételára nem tartalmazza a képeken látható berendezéseket és felszereléseket, azok a jelenlegi bérlő tulajdonát képezik.
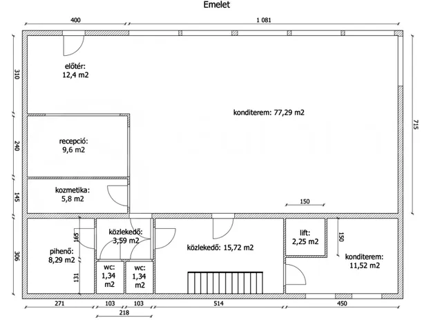
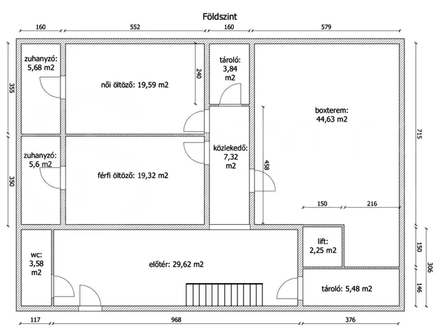
Helyiséglista:
Emelet:
-Funkcionális területek: Tágas konditerem, recepció, kozmetika, pihenő.
-Kiszolgáló helyiségek: Előtér, közlekedő, 2 db WC.
Megjegyzés: A lift jelenleg üzemen kívül van.
Földszint:
-Sportolói területek: Bokszterem, női és férfi öltözők zuhanyzókkal.
-Kiszolgáló helyiségek: Előtér, közlekedő, WC, 2 db tároló.
Környezet:
Az ingatlan Miskolc népszerű, forgalmas részén, az Avas városrészben I ütemében található, közvetlenül a Testvérvárosok útján lévő üzletházban. Panelépítésű társasházak között elhelyezkedő épület, melyben irodák, lakások és üzletek is működnek, kiváló ügyfélbázist és állandó látogatottságot biztosít.
Közlekedés:
Az ingatlan kitűnően megközelíthető autóval és helyi tömegközlekedéssel egyaránt.
Az aszfaltozott út közvetlenül az épülethez vezet, biztosítva a problémamentes rakodást.
A parkolás ingyenes.
Tulajdonságok
Üzlet
Átlagos
Elektromos
Nem adta meg a hirdető
Vedd fel a kapcsolatot a hirdetővel
+36 20 447 4
Vedd fel a kapcsolatot a hirdetővel
+36 20 447 4
Vedd fel a kapcsolatot a hirdetővel
+36 20 447 4
UI_KIT.CHARACTER_COUNTER__COMPONENT.ACTUAL_CHARACTER__SR_ONLY UI_KIT.CHARACTER_COUNTER__COMPONENT.MAXIMUM_CHARACTER__SR_ONLY
Hasonló eladó ingatlanok Miskolcon
Frissítve: 8 napja
10
69,9 millió Ft 386,2 ezer Ft/m²
Eladó kereskedelmi és ipari ingatlan, Miskolc

Frissítve: 16 napja
20
69,9 millió Ft 240,2 ezer Ft/m²
Eladó kereskedelmi és ipari ingatlan, Miskolc

Frissítve: 22 napja
20
69,9 millió Ft 139,8 ezer Ft/m²
Eladó kereskedelmi és ipari ingatlan, Pálháza

Frissítve: 6 napja
11
75 millió Ft 177,7 ezer Ft/m²
Eladó kereskedelmi és ipari ingatlan, Kesznyéten

Frissítve: 22 napja
20
72,9 millió Ft 473,4 ezer Ft/m²
Eladó kereskedelmi és ipari ingatlan, Erdőhorváti

Frissítve: 8 napja
19
70 millió Ft 254,5 ezer Ft/m²
Eladó kereskedelmi és ipari ingatlan, Sajószentpéter, Kossuth Lajos út

