+12 fotó
Hirdetéskód: 8971435
Feltöltve: 4 napja
Nyíregyháza eladó üzlet 72 m² alapterületű: 68,5 millió Ft
68,5 millió Ft
951 389 Ft/m²
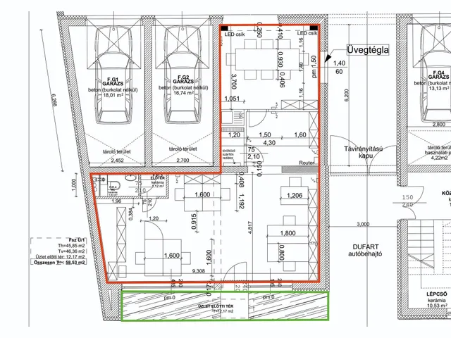
72 m²
12 m²
3 szoba
BELVÁROSI, NAGY KIRAKATOS ÜZLETHELYISÉG ELADÓ – PRÉMIUM LOKÁCIÓ, KIVÁLÓ LÁTHATÓSÁG
BELVÁROSI, NAGY KIRAKATOS ÜZLETHELYISÉG ELADÓ – PRÉMIUM LOKÁCIÓ, KIVÁLÓ LÁTHATÓSÁG
Nyíregyháza belvárosának egyik kiemelten frekventált utcájában, folyamatos gyalogos- és autós forgalom mellett eladó egy tágas, utcafronti üzlethelyiség, kiváló láthatósággal és üzleti potenciállal.
A környezetben több jól működő üzlet található, így a lokáció stabil alapot ad egy sikeres működéshez.
FŐBB JELLEMZŐK
- 72 nm alapterület + 12,17 nm-es, kizárólagos használatú terasz
- 2021-ben épült, modern társasház
- Tégla falazat, hőszigetelt kivitel
- Hatalmas utcafronti kirakat – az egyik legnagyobb az utcában
- 3 rétegű hőszigetelt műanyag nyílászárók
- Padlófűtés minden helyiségben
- Vaillant kondenzációs gázkazán
- Riasztó- és kamerarendszer előkészítés
- Belső udvari kapcsolattal rendelkező hátsó rész
ELRENDEZÉS ÉS LEHETŐSÉGEK
Az ingatlan jól átgondolt kialakításának köszönhetően többféle funkcióra is alkalmas:
- tágas, világos ügyféltér / üzlettér
- külön leválasztható szolgáltatói rész
- tároló + WC
- zuhanyzós fürdőszoba
- hátsó, külön helyiség (tárgyaló / iroda / raktár)
- belső udvari kapcsolattal, külön megközelítési lehetőséggel
AJÁNLOM
- orvosi rendelőnek
- szépségszalonnak
- irodának
- boutique-nak / üzletnek
- szolgáltató tevékenységre
EXTRA
Belső udvari parkoló külön megvásárolható
Irányár: 68.500.000 Ft + ÁFA
Tulajdonságok
Üzlet
3
Újszerű
Gázkazán
2021
Nem adta meg a hirdető
Vedd fel a kapcsolatot a hirdetővel
DoraLi'ingatlan Az iroda összes hirdetése
+36 30 567 6
Vedd fel a kapcsolatot a hirdetővel
DoraLi'ingatlan Az iroda összes hirdetése
+36 30 567 6
Vedd fel a kapcsolatot a hirdetővel
DoraLi'ingatlan Az iroda összes hirdetése
+36 30 567 6
UI_KIT.CHARACTER_COUNTER__COMPONENT.ACTUAL_CHARACTER__SR_ONLY UI_KIT.CHARACTER_COUNTER__COMPONENT.MAXIMUM_CHARACTER__SR_ONLY
Hasonló eladó ingatlanok Belváros városrészben
Frissítve: 3 éve
16
62,9 M Ft 459 124 Ft/m²
Eladó kereskedelmi és ipari ingatlan, Nyíregyháza, Belváros
Frissítve: 11 napja
10
73 M Ft 1 089 552 Ft/m²
Eladó kereskedelmi és ipari ingatlan, Nyíregyháza
Frissítve: 12 napja
0
73 M Ft 1 089 552 Ft/m²
Eladó kereskedelmi és ipari ingatlan, Nyíregyháza

Fedezd fel a
hasonló hirdetéseket!Még további kereskedelmi és ipari ingatlanok Szabolcs-Szatmár-Bereg megyében 68,5 M Ft körüli értékben
Tovább a hirdetésekhez Feltöltve: 1 éve
20
68,9 M Ft 172 250 Ft/m²
Eladó kereskedelmi és ipari ingatlan, Nyíregyháza, Felsőpázsit
Frissítve: 12 napja
4
68 M Ft 800 000 Ft/m²
Eladó kereskedelmi és ipari ingatlan, Nyíregyháza, Kállói út

Feltöltve: 9 hónapja
19
69,9 M Ft 349 500 Ft/m²
Eladó kereskedelmi és ipari ingatlan, Nyíregyháza, Repülőtér

