+4 fotó
Hirdetéskód: 8821558
Referenciaszám: 137512
Frissítve: 16 napja
Szeged eladó üzlet 53 m² alapterületű: 86,8 millió Ft
86,8 millió Ft
1,64 millió Ft/m²
53 m²
1 szoba
Most még időben lefoglalhatja üzletét!
Most még időben lefoglalhatja üzletét az új, rókusi társasházban!
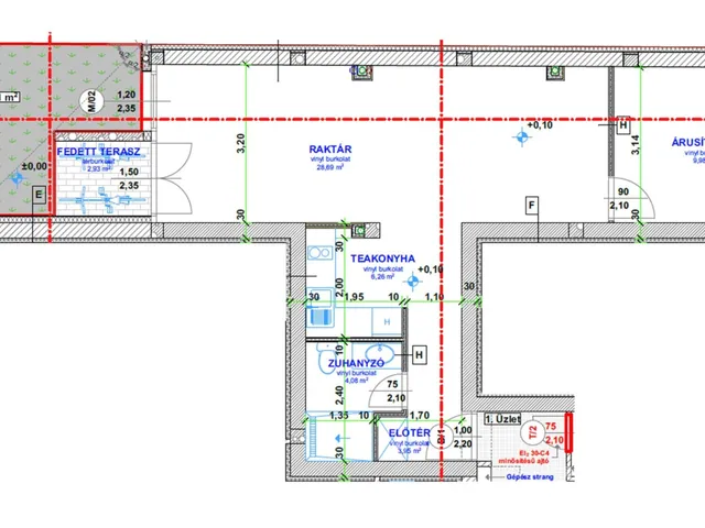
Épülő, modern társasház földszintjén eladó egy 52,96 m²-es üzlethelyiség, 2,93 m² fedett terasszal és saját kertrésszel – ideális választás, ha értékálló, korszerű és energiatakarékos ingatlant keres vállalkozása számára.
Az épület magas műszaki tartalommal és kiemelkedő energetikai megoldásokkal készül:
-Falazat: 30 cm-es klíma- és hanggátló tégla, 20 cm hőszigeteléssel
-Nyílászárók: 3 rétegű üvegezésű, hőszigetelt műanyag ablakok és bejárati ajtók, előregyártott, dekorfóliás beltéri ajtók
-Fűtés és hűtés: központi hőszivattyús rendszer, egyedi mérővel, padlófűtéssel és fancoil hűtéssel
-Tető: Terran Protector tetőcserép, kiváló hő- és hangszigeteléssel
-Várható befejezés: 2027. Nyár vége
A helyiség világos, jól alakítható, így tökéletes irodának, szolgáltatónak, rendelőnek vagy bemutatóteremnek. Kérlek tekintsd meg az alaprajzot az elrendezés miatt!
A meghirdetett ár az ÁFA-t nem tartalmazza! (27%)
A társasházban elérhetőek még a következő lakások, garázsok, árakról kérlek a lent megadott elérhetőségeken érdeklődj!
1. Lakás 82,17 m2 + 11,42 m2 (erkély)
1.a Lakás 38,45 m2 +3,23 m2 (erkély)
1.b Lakás 43,72 m2+ 8,19 (erkély)
2. Lakás 44,97 m2+ 4,75+3,04 (erkély)
5.b Lakás 42,8 m2 + 3,76 m2 erkély
6. Lakás 76,87 m2 + 10,45 m2 (erkély)
6.a Lakás 42,71 m2 + 3,44 m2 (erkély)
6.b Lakás 34,16 m2+ 2,26 (erkély)
7. Lakás 44,89 m2 + 7,79 m2 (loggia, erkély)
8. Lakás 100,18 m2 + 56,56 m2 (loggia, terasz, erkély)
1. Garázs 17,10 m2
2. Garázs 22,72 m2
3. Garázs 23,25 m2
Udvari parkolók
További információ:
Járai Viktória- Prémium Ingatlanértékesítő, Hiteltanácsadó +36307053426 jarai.viktoria@varos.hu
Kulcsra kész ügyintézés – Neked csak költöznöd kell!
Lakásvásárlás előtt állsz? Nálunk nemcsak a tökéletes otthont találod meg, hanem a teljes háttérmunkát is levesszük a válladról:
-Díjmentes banki hitelügyintézés – több bank ajánlata egy helyen, személyre szabottan
-Ügyvédi háttér – biztos kezekben a szerződéskötés és a teljes jogi folyamat
-Teljeskörű támogatás – az első érdeklődéstől a birtokba adásig végigkísérünk
-Egyetlen kapcsolattartó, gördülékeny ügyintézés, maximális biztonság
Célunk, hogy a lakásvásárlás ne stressz, hanem élmény legyen!
Írj, hívj, és kezdjük el a közös munkát!
Járai Viktória- Prémium Ingatlanértékesítő, Hiteltanácsadó +36307053426 jarai.viktoria@varos.hu
Tulajdonságok
Üzlet
4
Új építésű
Elektromos
2025
Nem adta meg a hirdető
Vedd fel a kapcsolatot a hirdetővel
+36 30 705 3
Vedd fel a kapcsolatot a hirdetővel
+36 30 705 3
Vedd fel a kapcsolatot a hirdetővel
+36 30 705 3
UI_KIT.CHARACTER_COUNTER__COMPONENT.ACTUAL_CHARACTER__SR_ONLY UI_KIT.CHARACTER_COUNTER__COMPONENT.MAXIMUM_CHARACTER__SR_ONLY
Hasonló eladó ingatlanok Rókus városrészben
Frissítve: 25 napja
20
89,9 millió Ft 3 millió Ft/m²
Eladó kereskedelmi és ipari ingatlan, Szeged
Frissítve: 9 napja
11
80 millió Ft 708 ezer Ft/m²
Eladó kereskedelmi és ipari ingatlan, Szeged, Belváros
Frissítve: 25 napja
11
90,5 millió Ft 1,09 millió Ft/m²
Eladó kereskedelmi és ipari ingatlan, Szeged, Alsóváros

Fedezd fel a
hasonló hirdetéseket!Még további kereskedelmi és ipari ingatlanok Csongrád megyében 86,8 M Ft körüli értékben
Tovább a hirdetésekhez Frissítve: 25 napja
5
89 millió Ft 1,35 millió Ft/m²
Eladó kereskedelmi és ipari ingatlan, Szeged, Felsőváros
Frissítve: 25 napja
12
79,9 millió Ft 508,9 ezer Ft/m²
Eladó kereskedelmi és ipari ingatlan, Szeged, Szőreg
Frissítve: 25 napja
0
79,8 millió Ft 950 ezer Ft/m²
Eladó kereskedelmi és ipari ingatlan, Szeged, Felsőváros
