+14 fotó
Hirdetéskód: 8975952
Referenciaszám: M326243
Feltöltve: 1 napja
Tótkomlós eladó üzlet 205 m² alapterületű: 34,9 millió Ft
34,9 millió Ft
170 244 Ft/m² *
* A m² árat a hirdető adta meg.
205 m²
5 szoba
Leírás
Többféle hasznosítási lehetőséget kínáló üzlethelyiség eladó Tótkomlós belvárosában, frekventált helyen.
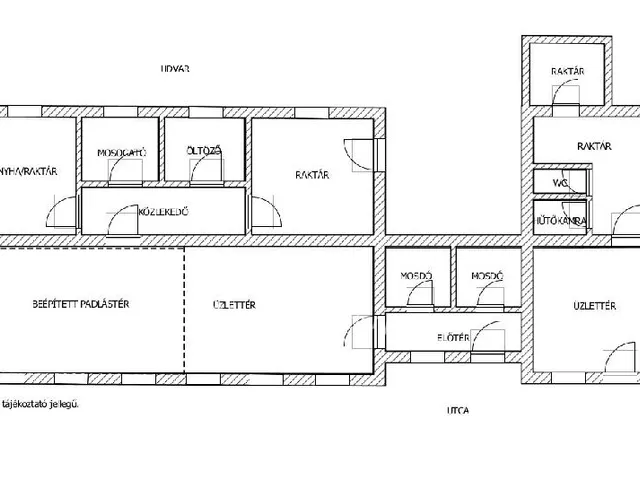
Az 1988-ban épült kifogástalan szerkezeti állapotú tégla főépület egy sarok telken áll, forgalmas főút mellett. Ennek köszönhetően kiválóan megközelíthető és könnyű parkolási és rakodási lehetőséget kínál. A főépület mögött egy kisebb vályog építésű épület is található, amely felújítandó, de jelenlegi állapotában akár raktárként hasznosítható. A telek területe 552m2, autó beállási lehetőség adott. Található még rajta egy közel 50m2-es fedett beálló, ami akár parkolásra, akár raktározásra alkalmas.
A főépület 2 üzlethelyiségből áll, amely egybe is nyitható. A legutóbbi hasznosítás szerint 2 utcai bejáratú üzlethelyiség van kialakítva külön vizes helyiségekkel, raktárakkal, kiszolgáló helyiségekkel. A nagyobb üzlet tetőterének egy része be van építve, amely tovább növelheti a vendégteret, de iroda, tárgyaló kialakítására is alkalmas.
Fűtése gázkonvektorokkal megoldott, a melegvíz ellátást villanybojlerek biztosítják. A telken minden közmű megtalálható, 2 gázóra és 3 villanyóra (ipari áram), víz, csatorna rendelkezésre áll.
Az ingatlan alkalmas üzletnek, vendéglátó egységnek, közösségi háznak, irodának, vagy akár nagyobb rendezvények lebonyolítására is, de kisebb átalakítással különböző helyi koncertek, közérdekű városi rendezvények, vagy kulturális (irodalmi estek, vagy más jellegű) összejövetelek alkalmából is bérbe adható. Lakóingatlanná is átalakítható.
A tulajdoni lapon Kivett lakóház, udvar, kereskedelmi egység.
Tótkomlós Békés megyében található, Szegedtől 62km, Hódmezővásárhelytől 33km, Orosházától 20km, Aradtól 57km távolságra. A Békés megyei kisváros élhető lakókörnyezetet biztosít, óvoda, iskola, üzletek, egészségügyi ellátás, gyógyfürdő helyben megtalálhatók.
További információért hívjon bizalommal!
Az OTP Ingatlanpont teljes körű ügyintézéssel áll az eladók és vevők rendelkezésére. A kínálatunkból választott ingatlan finanszírozásához kedvezményes hitelkonstrukciót biztosítunk. Az OTP Banknál elérhető Otthon Start Program, Babaváró, falusi CSOK, CSOK Plusz hitel és egyéb kölcsönök intézését díjmentesen vállaljuk. Az adásvételi szerződés megkötéséhez igény szerint ügyvédet biztosítunk. Irodáink Szentes, Petőfi utca 12. a buszmegálló felől, és Csongrád, Fő utca 54. szám alatt várjuk a személyes érdeklődőket. Válasszuk ki együtt az Önnek legmegfelelőbb ajánlatot banki sorban állás nélkül! Legyen Ön is megbízónk, és adja el rajtunk keresztül ingatlanát!
Tulajdonságok
Üzlet
2
Felújítandó
Gáz (konvektor)
1988
Nem adta meg a hirdető
Vedd fel a kapcsolatot a hirdetővel
+36 70 402 4
Vedd fel a kapcsolatot a hirdetővel
+36 70 402 4
Vedd fel a kapcsolatot a hirdetővel
+36 70 402 4
UI_KIT.CHARACTER_COUNTER__COMPONENT.ACTUAL_CHARACTER__SR_ONLY UI_KIT.CHARACTER_COUNTER__COMPONENT.MAXIMUM_CHARACTER__SR_ONLY
Hasonló eladó ingatlanok Tótkomlóson
Frissítve: 3 napja
1
34 M Ft 340 000 Ft/m²
Eladó kereskedelmi és ipari ingatlan, Tótkomlós
Frissítve: 3 napja
20
37,7 M Ft 1 256 667 Ft/m²
Eladó kereskedelmi és ipari ingatlan, Békéscsaba
Frissítve: 12 napja
19
35,2 M Ft 214 635 Ft/m²
Eladó kereskedelmi és ipari ingatlan, Újkígyós

Frissítve: 3 napja
10
37 M Ft 493 333 Ft/m²
Eladó kereskedelmi és ipari ingatlan, Orosháza
Frissítve: 12 napja
13
36,9 M Ft 625 424 Ft/m²
Eladó kereskedelmi és ipari ingatlan, Gyula
Frissítve: 12 napja
20
37,9 M Ft 151 600 Ft/m²
Eladó kereskedelmi és ipari ingatlan, Szeghalom

