+5 fotó
Hirdetéskód: 8919879
Referenciaszám: M324068
Frissítve: 2 napja
Göd kiadó gyárépület 513 m² alapterületű: 734 ezer Ft
733,9 ezer Ft/hó
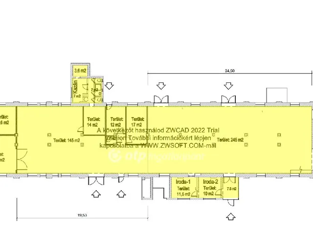
513 m²
Leírás
Göd ipari részén hatalmas telephelyen bérbeadásra kínálunk különböző méretű és állapotú gyártócsarnokokat, raktárakat, irodákat.
Ez a csarnok átlagos állapotú, 320 cm magas, 3 db 320x270 ipari kapuval rendelkezik, gáz fűtés nem megoldott, külön öltözők, irodák,rendelkezésre állnak, teherforgalommal korlátozottan megközelíthető.
Lehetőség van akár autószerelő műhely kialakítására, tárolásra, gyártásra. Az ingatlanok egy része targoncázható, teherautóval megközelíthető, fűthető, ipari kapuval ellátott, több bejárattal rendelkezik.
Kialakítástól és elhelyezkedéstől függően az itt megadott árak, alaprajzok esetlegesen változhatnak, eltérhetnek az itt megadottól (a konkrét igények alapján tud a tulajdonos megadni végleges árat és tudja kialakítani az elrendezést.)
Egyes esetekben közös területi szorzó is felszámolásra kerülhet.
A feltüntetett bérleti díjak nettók, NEM tartalmazzák az ÁFÁ-t, + 27 % ÁFA fizetendő!
Bérléshez szükséges 2 illetve kaució + 1 havi bérleti díj.
A tulajdonos a bérlő választás jogát fenntartja és a bérleti szerződést közjegyzői okiratba foglaltatja.
Tulajdonságok
Gyárépület
Átlagos
Nincs fűtés
1963
Nem adta meg a hirdető
Vedd fel a kapcsolatot a hirdetővel

Takács Zsuzsanna
Budapest XIII. kerület Lehel utca 50 - OTP Ingatlanpont Iroda
Az iroda összes hirdetése +36 30 495 3
Vedd fel a kapcsolatot a hirdetővel

Takács Zsuzsanna
Budapest XIII. kerület Lehel utca 50 - OTP Ingatlanpont Iroda
Az iroda összes hirdetése +36 30 495 3
Vedd fel a kapcsolatot a hirdetővel

Takács Zsuzsanna
Budapest XIII. kerület Lehel utca 50 - OTP Ingatlanpont Iroda
Az iroda összes hirdetése +36 30 495 3
UI_KIT.CHARACTER_COUNTER__COMPONENT.ACTUAL_CHARACTER__SR_ONLY UI_KIT.CHARACTER_COUNTER__COMPONENT.MAXIMUM_CHARACTER__SR_ONLY
Hasonló kiadó ingatlanok Gödön
Frissítve: 2 napja
4
693,5 ezer Ft/hó
Kiadó kereskedelmi és ipari ingatlan, Göd

Frissítve: 20 napja
4
1 890 Euro/hó
727,7 ezer Ft/hó
Kiadó kereskedelmi és ipari ingatlan, Göd

Frissítve: 2 napja
15
690,2 ezer Ft/hó
Kiadó kereskedelmi és ipari ingatlan, Göd


Fedezd fel a
hasonló hirdetéseket!Még további kereskedelmi és ipari ingatlanok Pest megyében 734 ezer Ft/hó körüli értékben
Tovább a hirdetésekhez Frissítve: 6 napja
7
799 ezer Ft/hó
Kiadó kereskedelmi és ipari ingatlan, Felsőpakony, Nincs utca

Frissítve: 11 napja
5
800 ezer Ft/hó
Kiadó kereskedelmi és ipari ingatlan, Szentendre
Frissítve: 5 napja
5
800 ezer Ft/hó
Kiadó kereskedelmi és ipari ingatlan, Törökbálint

