+6 fotó
Hirdetéskód: 8919881
Referenciaszám: M324110
Frissítve: ma
Göd kiadó gyárépület 563 m² alapterületű: 1,01 millió Ft
1,01 millió Ft/hó
563 m²
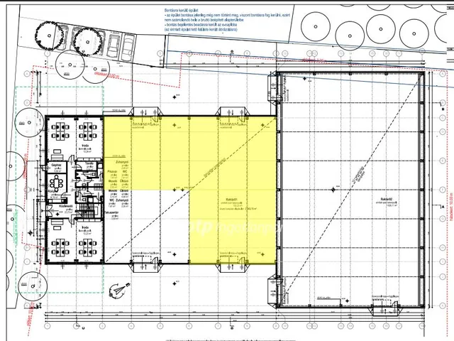
Leírás
Göd ipari részén hatalmas telephelyen bérbeadásra kínálunk különböző méretű és állapotú gyártócsarnokokat, raktárakat, irodákat.
Ez egy új építésű üzemcsarnok, az emeleten lehetőség van iroda bérlésére is.
3 db 350x410-es ipar kapuval rendelkezik, belmagassága 480 cm, teherforgalommal megközelíthető.
A telephelyen rendelkezésre állnak még különböző méretű egyéb csarnokok is.
Lehetőség van akár autószerelő műhely kialakítására, tárolásra, gyártásra. Az ingatlanok egy része targoncázható, teherautóval megközelíthető, fűthető, ipari kapuval ellátott, több bejárattal rendelkezik.
Kialakítástól és elhelyezkedéstől függően az itt megadott árak, alaprajzok esetlegesen változhatnak, eltérhetnek az itt megadottól (a konkrét igények alapján tud a tulajdonos megadni végleges árat és tudja kialakítani az elrendezést.)
Egyes esetekben közös területi szorzó is felszámolásra kerülhet. A bérleti díj tartalmazza az üzemeltetési költséget is.
A feltüntetett bérleti díjak nettók, NEM tartalmazzák az ÁFÁ-t, + 27 % ÁFA fizetendő!
Bérléshez szükséges 2 illetve kaució + 1 havi bérleti díj.
A tulajdonos a bérlő választás jogát fenntartja és a bérleti szerződést közjegyzői okiratba foglaltatja.
Tulajdonságok
Gyárépület
1
Újszerű
Elektromos
2020
Nem adta meg a hirdető
Vedd fel a kapcsolatot a hirdetővel

Takács Zsuzsanna
Budapest XIII. kerület Lehel utca 50 - OTP Ingatlanpont Iroda
Az iroda összes hirdetése +36 30 495 3
Vedd fel a kapcsolatot a hirdetővel

Takács Zsuzsanna
Budapest XIII. kerület Lehel utca 50 - OTP Ingatlanpont Iroda
Az iroda összes hirdetése +36 30 495 3
Vedd fel a kapcsolatot a hirdetővel

Takács Zsuzsanna
Budapest XIII. kerület Lehel utca 50 - OTP Ingatlanpont Iroda
Az iroda összes hirdetése +36 30 495 3
UI_KIT.CHARACTER_COUNTER__COMPONENT.ACTUAL_CHARACTER__SR_ONLY UI_KIT.CHARACTER_COUNTER__COMPONENT.MAXIMUM_CHARACTER__SR_ONLY
Hasonló kiadó ingatlanok Gödön
Frissítve: 1 éve
1
980 ezer Ft/hó
Kiadó kereskedelmi és ipari ingatlan, Pusztazámor
Frissítve: 22 napja
20
1 millió Ft/hó
Kiadó kereskedelmi és ipari ingatlan, Bugyi

Frissítve: 8 napja
11
1 millió Ft/hó
Kiadó kereskedelmi és ipari ingatlan, Alsónémedi


Fedezd fel a
hasonló hirdetéseket!Még további kereskedelmi és ipari ingatlanok Pest megyében 1,01 M Ft/hó körüli értékben
Tovább a hirdetésekhez Frissítve: 22 napja
20
2 500 Euro/hó
962,5 ezer Ft/hó
Kiadó kereskedelmi és ipari ingatlan, Biatorbágy
Frissítve: ma
18
1,05 millió Ft/hó
Kiadó kereskedelmi és ipari ingatlan, Diósd

Frissítve: 22 napja
10
1 millió Ft/hó
Kiadó kereskedelmi és ipari ingatlan, Zsámbék
