+11 fotó
Hirdetéskód: 8983356
Referenciaszám: M327800
Feltöltve: ma
Budapest XX. kerület kiadó műhely 206 m² alapterületű: 453 ezer Ft
453,2 ezer Ft/hó
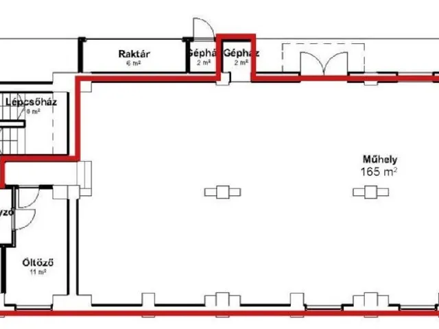
206 m²
Leírás
Kiadó ipari ingatlan - Budapest XX. kerület!
Zárt, rendezett telephelyen bérbeadó egy sokoldalúan hasznosítható ipari ingatlan, amely legutóbb nyomdaként üzemelt. Ideális választás lehet gyártási, raktározási vagy egyéb ipari tevékenységekhez.
Választható alapterület:
- 260 m2 - 2.000 Ft/m2 + ÁFA.
- 206 m2 - 2.200 Ft/m2 + ÁFA.
Műszaki jellemzők:
- Ipari áram: 3×150 A.
- Kiépített sűrített levegő hálózat.
- Fűtés: gázcirkó + klíma.
- 20 cm vastag, dupla vasalású ipari padló (műgyantázott).
- Szigetelt, műanyag nyílászárók.
- 10 cm külső hőszigetelés.
- Összes közmű az ingatlanon belül.
Kiegészítő helyiségek:
- Öltöző, WC és zuhanyzó.
Költségek:
- Közös költség: 150 Ft/m2 + ÁFA.
- Közművek egyedi mérés alapján fizetendők.
Egyéb előnyök:
- Az épület mellett 2 autó számára parkolási lehetőség.
- Zárt telephely, a kapu munkaidőben nyitva.
- Üzemidőn kívül távirányítóval biztosított bejutás.
Az ingatlan kiváló infrastruktúrával és rugalmas kialakítással várja új bérlőjét. Ha egy jól megközelíthető, ipari célokra optimalizált helyet keres, ez a lehetőség ideális választás lehet.
Érdeklődés esetén keressen bizalommal!
Tulajdonságok
Műhely
Átlagos
Gázkazán
1950
Nem adta meg a hirdető
Vedd fel a kapcsolatot a hirdetővel
Fodor Zoltán
Budapest XIII. kerület Pannónia utca 25 - OTP Ingatlanpont Iroda
Az iroda összes hirdetése +36 70 675 2
Vedd fel a kapcsolatot a hirdetővel
Fodor Zoltán
Budapest XIII. kerület Pannónia utca 25 - OTP Ingatlanpont Iroda
Az iroda összes hirdetése +36 70 675 2
Vedd fel a kapcsolatot a hirdetővel
Fodor Zoltán
Budapest XIII. kerület Pannónia utca 25 - OTP Ingatlanpont Iroda
Az iroda összes hirdetése +36 70 675 2
UI_KIT.CHARACTER_COUNTER__COMPONENT.ACTUAL_CHARACTER__SR_ONLY UI_KIT.CHARACTER_COUNTER__COMPONENT.MAXIMUM_CHARACTER__SR_ONLY
Hasonló kiadó ingatlanok Budapest XX. kerületben
Frissítve: 3 napja
20
490 ezer Ft/hó
Kiadó kereskedelmi és ipari ingatlan, Budapest VIII. kerület

Frissítve: 1 napja
10
479,2 ezer Ft/hó
Kiadó kereskedelmi és ipari ingatlan, Budapest XXI. kerület

Frissítve: 17 napja
4
1 260 Euro/hó
485,1 ezer Ft/hó
Kiadó kereskedelmi és ipari ingatlan, Budapest VII. kerület, Keleti Pályaudvar közeli bevásárlóközpont

Fedezd fel a
hasonló hirdetéseket!Még további kereskedelmi és ipari ingatlanok Budapesten 453 ezer Ft/hó körüli értékben
Tovább a hirdetésekhez Frissítve: ma
4
462,8 ezer Ft/hó
Kiadó kereskedelmi és ipari ingatlan, Budapest III. kerület, Bécsi út

Frissítve: 2 napja
12
476,2 ezer Ft/hó
Kiadó kereskedelmi és ipari ingatlan, Budapest XIII. kerület

Frissítve: 17 napja
2
440 ezer Ft/hó
Kiadó kereskedelmi és ipari ingatlan, Budapest XI. kerület, Fehérvári út
