+9 fotó
Hirdetéskód: 8985921
Referenciaszám: 394806
Frissítve: ma
Budapest XXIII. kerület kiadó üzlet 300 m² alapterületű: 1,2 millió Ft
1,2 millió Ft/hó
300 m²
Kiadó üzlet Budapest, XXIII. kerület, 300nm, 1.200.000Ft - Hősök tere
Kiadó Üzlethelyiség Soroksár Hősök terén!
SOROKSÁR KÖZPONTI RÉSZÉN, utcafrontra nyíló összesen 300 m2-es üzlethelyiség kiadó.
Elhelyezkedése miatt számos vállalkozás részére jó lehetőséget nyújt (élelmiszer kiskereskedelem, bank, pénzügyi- és egészségügyi szolgáltatás nyújtás, bemutatóterem, iroda, felnőttképzés).
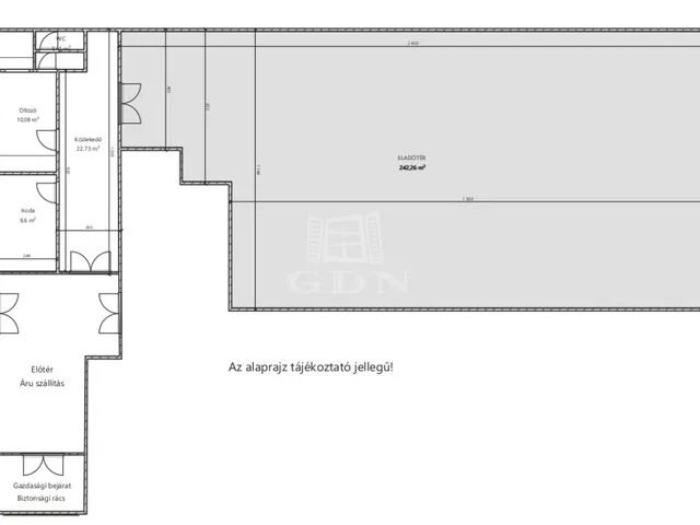
AZ INGATLAN BEOSZTÁSA:
- üzlethelyiség az utcafrontról 242 m2,
- iroda,
- teakonyha + öltöző,
- WC,
- közlekedő,
- gazdasági bejárat.
FELSZERELTSÉGE:
- fali klíma és mennyezeti fan-coil,
- tűzjelző,
- riasztó kiállás,
- biztonsági rács a hátsó gazdasági bejáratnál,
- fotocellás ajtó utcafrontról.
Víz- villany fogyasztás mérőóra alapján kerül számlázásra.
Fűtés - hűtés fan coil-okkal történik, ami légköbméter alapján kerül számlázásra.
KÖZLEKEDÉS + környezet:
Busz és H6-os HÉV megálló közelében, forgalmas helyen található, jól látható autóból és nagy gyalogosforgalom halad át előtte.
Közvetlen szomszédságában kormányablak és OTP bank. Közelben rendelőintézet és számos szolgáltató egység, bankok. Parkolás díjmentes az üzlet mellett a mellékutcákban.
BÉRLETI SZERZŐDÉS feltételei:
- Bérleti díj: 1.200.000Ft + Áfa /hó + rezsi,
- Ingatlanüzemeltetési-karbantartási díj: 100.000Ft + Áfa /hó,
- min. 2 év bérleti idő,
- szerződéskötéskor 1 havi bérleti díj áfával növelt összege,
- 2 havi kaució,
- közjegyző előtti nyilatkozat aláírása szükséges.
Irodánk 30 éves szakmai tapasztalattal áll ügyfelei rendelkezésére!
Várom szíves megkeresését! ...TOVÁBBI, TÖBBEZRES INGATLAN KÍNÁLAT: www.gdn-ingatlan.hu - GDN azonosító: 394806
Tulajdonságok
Üzlet
Jó állapotú
Egyéb
1968
Nem adta meg a hirdető
Vedd fel a kapcsolatot a hirdetővel
+36 20 268 3
Vedd fel a kapcsolatot a hirdetővel
+36 20 268 3
Vedd fel a kapcsolatot a hirdetővel
+36 20 268 3
UI_KIT.CHARACTER_COUNTER__COMPONENT.ACTUAL_CHARACTER__SR_ONLY UI_KIT.CHARACTER_COUNTER__COMPONENT.MAXIMUM_CHARACTER__SR_ONLY
Hasonló kiadó ingatlanok Soroksár városrészben
Frissítve: 22 napja
5
3 290 Euro/hó
1,27 millió Ft/hó
Kiadó kereskedelmi és ipari ingatlan, Budapest XI. kerület, Gazdagrét, Gazdagréti üzletközpont
Frissítve: 22 napja
3
2 988 Euro/hó
1,15 millió Ft/hó
Kiadó kereskedelmi és ipari ingatlan, Budapest II. kerület
Frissítve: 22 napja
2
3 464 Euro/hó
1,33 millió Ft/hó
Kiadó kereskedelmi és ipari ingatlan, Budapest XI. kerület

Fedezd fel a
hasonló hirdetéseket!Még további kereskedelmi és ipari ingatlanok Budapesten 1,2 M Ft/hó körüli értékben
Tovább a hirdetésekhez Frissítve: 5 napja
5
1,17 millió Ft/hó
Kiadó kereskedelmi és ipari ingatlan, Budapest XIII. kerület

Frissítve: 22 napja
2
1,27 millió Ft/hó
Kiadó kereskedelmi és ipari ingatlan, Budapest XII. kerület, Csörsz utca
Frissítve: 1 napja
8
1,2 millió Ft/hó
Kiadó kereskedelmi és ipari ingatlan, Budapest XVII. kerület

