+9 fotó
Hirdetéskód: 8921846
Referenciaszám: 393446
Feltöltve: 7 napja
Gárdony kiadó üzlet 38 m² alapterületű: 220 ezer Ft
220 ezer Ft/hó
5 789 Ft/m²
38 m²
Kiadó üzlet Gárdony, 38nm, 220.000Ft - Vízparthoz közel
Bvip-004758. Gárdonyban, a Velencei-tó partjától mindössze 100 méterre ÚJ ÉPÍTÉSŰ társasház földszintjén 38m2-es, utcafronti üzlethelyiség/irodahelyiség eladó!
Az ingatlan kiváló elhelyezkedésű: mindössze 100 méterre található a Velencei-tó partjától, valamint a vasúti megálló is pár perc sétatávolságra elérhető.
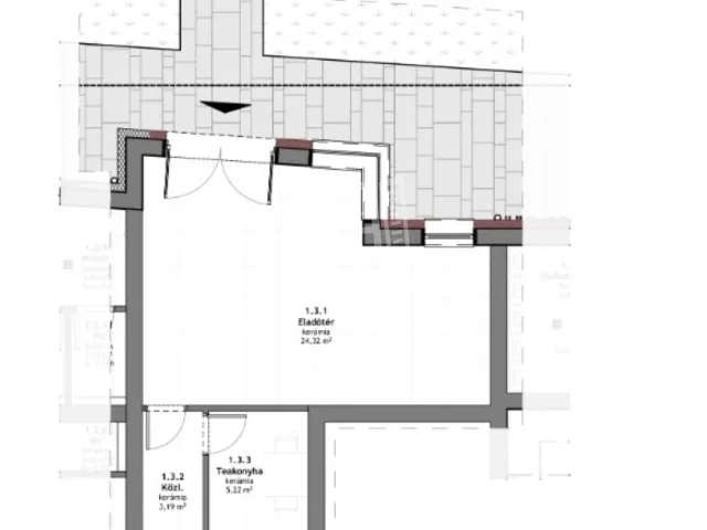
Beltéri elosztás:
Eladótér(nettó) 24,32 m²
Közlekedő(nettó) 3,19 m²
Teakonyha(nettó) 5,22 m²
Öltöző(nettó) 3,42 m²
WC(nettó) 1,93 m²
Összesen38,08 m²
Tájolása: ÉK
Minden közmű önállóan mérhető, fogyasztás alapján fizetendő.
A fűtést hőszivattyú biztosítja padlófűtéses hőleadással, klíma előkészítés kialakított.
Ingyenes parkolási lehetőség rendelkezésre áll a társasház környezetében, illetve lehetőség van felszíni parkolóhely megvásárlására a lakópark területén 2,5 M Ft-tól.
A társasház összesen 12 lakásból és 4 üzlethelyiségből áll –
tervezett műszaki átadás: 2026. szeptember.
Főbb műszaki paraméterek:
– padlófűtés
– klíma előkészítés
– egyéni mérőórák
– minőségi anyagok felhasználása
– felsőkategóriás belsőépítészeti kialakítás
– motoros redőnyök
– nyílászárók 3 rétegű üveggel
– választható hideg- és melegburkolat
– CPL fóliás beltéri ajtó választható színben
(Részletes műszaki leírás kérés esetén elérhető)
Bérleti díja: 220.000,- Ft + Áfa/ hó + rezsiköltség, illetve 2 havi kaució
Az ingatlan meg is vásárolható, eladási ára: 44,5 M Ft +Áfa
Elérhető földszinti, utcafronti irodák/üzlethelyiségek melyek megvásárolhatók, vagy kibérelhetők:
1. számú helyiség: 43m2 Eladási ára: 51.000.000.- forint / Bérleti díja: 250.000,- Ft + Áfa/ hó + rezsiköltség, illetve 2 havi kaució
2. számú helyiség: 127,9m2 Eladási ára: 130.000.000.- forint / Bérleti díja: 540.000,-Ft + Áfa/ hó + rezsiköltség, illetve 2 havi kaució
3. számú helyiség: 38m2 Eladási ára: 44.500.000.- forint / Bérleti díja: 220.000,-Ft + Áfa/ hó + rezsiköltség, illetve 2 havi kaució
4. számú helyiség: 36m2 Eladási ára: 45.000.000.- forint / Bérleti díja: 250.000,-Ft + Áfa/ hó + rezsiköltség, illetve 2 havi kaució
Ha felkeltette érdeklődését, hívja irodánkat bizalommal, éljen ingyenes, személyre szabott hitelügyintézés szolgáltatásunkkal. Segítünk továbbá adásvételhez szükséges ügyvédi közreműködésben, energetikai tanúsítvány, valamint értékbecslés elkészítésében.
For English details please send us a message or an e-mail, thank you. ...TOVÁBBI, TÖBBEZRES INGATLAN KÍNÁLAT: www.gdn-ingatlan.hu - GDN azonosító: 393446
Tulajdonságok
Üzlet
Új építésű
Hőszivattyú
2026
Nem adta meg a hirdető
Vedd fel a kapcsolatot a hirdetővel
+36 20 583 7
Vedd fel a kapcsolatot a hirdetővel
+36 20 583 7
Vedd fel a kapcsolatot a hirdetővel
+36 20 583 7
UI_KIT.CHARACTER_COUNTER__COMPONENT.ACTUAL_CHARACTER__SR_ONLY UI_KIT.CHARACTER_COUNTER__COMPONENT.MAXIMUM_CHARACTER__SR_ONLY
Hasonló kiadó ingatlanok Gárdonyban
Frissítve: 3 hónapja
16
220 000 Ft/hó 2 651 Ft/m²
Kiadó kereskedelmi és ipari ingatlan, Pákozd
Frissítve: 11 napja
6
225 000 Ft/hó 849 Ft/m²
Kiadó kereskedelmi és ipari ingatlan, Székesfehérvár

Frissítve: 11 napja
19
208 190 Ft/hó 1 910 Ft/m²
Kiadó kereskedelmi és ipari ingatlan, Székesfehérvár

Frissítve: 11 napja
6
200 000 Ft/hó 40 Ft/m²
Kiadó kereskedelmi és ipari ingatlan, Székesfehérvár

Frissítve: 2 éve
0
218 775 Ft/hó 1 552 Ft/m²
Kiadó kereskedelmi és ipari ingatlan, Székesfehérvár, Hosszúsétatér
Frissítve: 2 napja
15
237 371 Ft/hó 3 923 Ft/m²
Kiadó kereskedelmi és ipari ingatlan, Budapest IX. kerület

