+7 fotó
Hirdetéskód: 8844604
Referenciaszám: 585731
Feltöltve: 2 napja
Ózd kiadó üzlet 31 m² alapterületű: 98 ezer Ft
98 ezer Ft/hó
3 171 Ft/m²
31 m²
Kiadó üzlethelyiség forgalmas belvárosi környezetben!
Kiadó üzlethelyiség forgalmas belvárosi környezetben!
A belváros egyik legélénkebb részén, nagy gyalogos- és autós forgalom mellett kínálunk bérbe egy igényes üzlethelyiséget. Közvetlenül az épülettel szemben ingyenes, tágas parkoló áll az ügyfelek rendelkezésére.
A helyiség klimatizált, saját villany- és vízórával felszerelt, így a rezsiköltségek pontosan nyomon követhetők. A közös területek használatának közös költsége 17.283 Ft + ÁFA/hó.
Tökéletes választás üzletnek, irodának vagy szolgáltató tevékenységre – kiváló láthatósággal és elérhetőséggel!
Bérleti díj: 98.304 Ft/hó + ÁFA + rezsi
Bérlés feltétele: 3 havi kaució
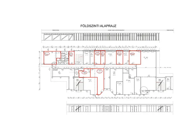
A képek között az alaprajzon a 7-es számú üzlethelyiség jelöli a kiadó egységet.
Vevőink részére INGYENES, banksemleges hiteltanácsadást és ügyintézést biztosítunk!
Párhuzamosan az ingatlanvásárlással eladná jelenlegi lakását, de nem tudja, hol kezdje? Ne habozzon, hívjon bizalommal!
További információért és megtekintésért keressen minket bizalommal!
Tulajdonságok
Üzlet
Átlagos
Nem adta meg a hirdető
Vedd fel a kapcsolatot a hirdetővel
+36 30 289 6
Vedd fel a kapcsolatot a hirdetővel
+36 30 289 6
Vedd fel a kapcsolatot a hirdetővel
+36 30 289 6
UI_KIT.CHARACTER_COUNTER__COMPONENT.REMAINING_SPACE__SR_ONLYUI_KIT.CHARACTER_COUNTER__COMPONENT.MAXIMUM_CHARACTER__SR_ONLY
Hasonló kiadó ingatlanok Ózdon
Frissítve: 29 napja
10
98 304 Ft/hó 3 171 Ft/m²
Kiadó kereskedelmi és ipari ingatlan, Ózd

Frissítve: 29 napja
10
91 200 Ft/hó 3 145 Ft/m²
Kiadó kereskedelmi és ipari ingatlan, Ózd

Feltöltve: 2 napja
10
91 200 Ft/hó 3 145 Ft/m²
Kiadó kereskedelmi és ipari ingatlan, Ózd

Frissítve: 29 napja
5
95 000 Ft/hó 6 786 Ft/m²
Kiadó kereskedelmi és ipari ingatlan, Miskolc

Feltöltve: 2 napja
5
95 000 Ft/hó 6 786 Ft/m²
Kiadó kereskedelmi és ipari ingatlan, Miskolc

Frissítve: 6 napja
2
96 300 Ft/hó 3 009 Ft/m²
Kiadó kereskedelmi és ipari ingatlan, Debrecen

