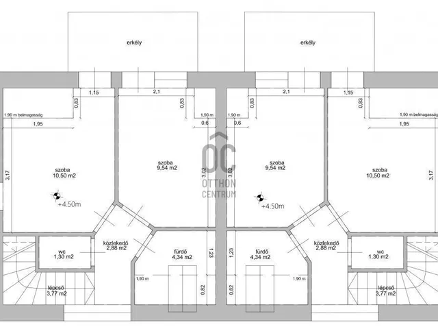
Eladó téglalakás Budapest XIX. kerületben
521 találat

Friss hirdetések, amiket nem találsz meg más ingatlankereső portálon.
Fedezd fel elsőként a Zenga Premier címkés eladó ingatlanokat! További részletek A Duna House, OTP Ingatlanpont, Otthon Centrum és további hálózatok új, kizárólagos hirdetéseinek nagy részét a zenga.hu és koltozzbe.hu ingatlankeresőn láthatod legelőször, és a feltöltéstől két hétig nem érhetők el más ingatlankeresőn!

Milyen vételárban gondolkozhatok?
Az OTP Bank hitelezési szakértői személyre szabott kalkulációval, és előminősítéssel támogatják a biztosabb keresésedet.

Regisztrálj az extra funkciókért
Eladó téglalakások széles választékban elérhetőek Budapest XIX. kerületben a hirdetések között. Eladó Budapest XIX. kerületi tégla építésű lakások iránt érdeklődve rendszerint egy sor elvárással rendelkezünk, és korántsem mindegy, hogy milyen környezetet választunk leendő otthonunknak. Az ingatlanhirdetések egyszerű lehetőséget kínálnak mindazok számára, akik szeretnének széles választékban keresgélni, és egyéni igényeik szerint szűrni a találatokat. Akár ma is megtalálhatod az ideális téglalakást Budapest XIX. kerületben, tulajdonosok és ingatlanközvetítő irodák kínálatai között.



