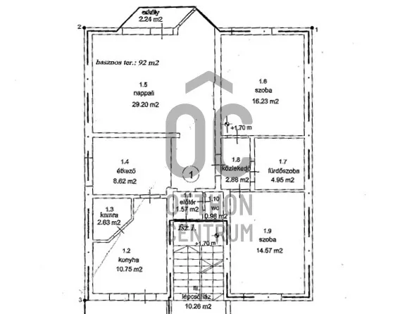
Eladó ház Budapest XVI. kerületben
95 találat

Friss hirdetések, amiket nem találsz meg más ingatlankereső portálon.
Fedezd fel elsőként a Zenga Premier címkés eladó ingatlanokat! További részletek A Duna House, OTP Ingatlanpont, Otthon Centrum és további hálózatok új, kizárólagos hirdetéseinek nagy részét a zenga.hu és koltozzbe.hu ingatlankeresőn láthatod legelőször, és a feltöltéstől két hétig nem érhetők el más ingatlankeresőn!

Már most stresszelsz a lakáshitelen?
Segít az OTP Bank szakértője. Telefonos hitel előminősítéssel biztosra mehetsz!



