Eladó ház Érden - 2. oldal
204 találat

Friss hirdetések, amiket nem találsz meg más ingatlankereső portálon.
Fedezd fel elsőként a Zenga Premier címkés eladó ingatlanokat! További részletek A Duna House, OTP Ingatlanpont, Otthon Centrum és további hálózatok új, kizárólagos hirdetéseinek nagy részét a zenga.hu és koltozzbe.hu ingatlankeresőn láthatod legelőször, és a feltöltéstől két hétig nem érhetők el más ingatlankeresőn!
Frissítve: ma
20
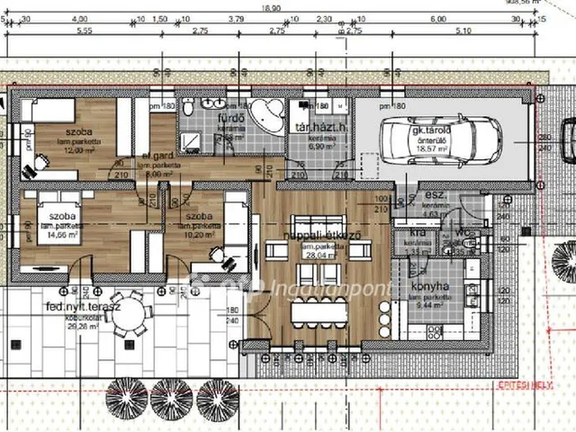
126 millió Ft 969,2 ezer Ft/m²

Eladó ikerház, Érd
Frissítve: ma
20
126 millió Ft 969,2 ezer Ft/m²

Eladó ikerház, Érd



