+17 fotó
Hirdetéskód: 8915739
Referenciaszám: M317352-5166483
Frissítve: 16 napja
Ásványráró eladó családi ház 2 szobás: 38,8 millió Ft
38,8 millió Ft
517,3 ezer Ft/m²
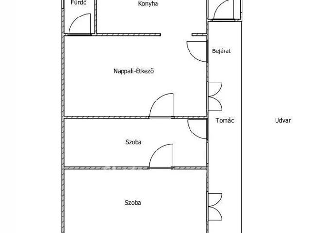
75 m²
1284 m²
2 szoba
Eladó Ház, Ásványráró
Eladó családi ház Ásványrárón nagy telekkel, remek lehetőségekkel!
Ásványráró központi részén, Győrhöz és a főúthoz közel, eladásra kínálunk egy felújítandó, 75 nm-es családi házat tágas, 1284 nm-es saroktelken!
A ház 1956-ban épült, masszív szerkezetű, korához képest jó statikai állapotban. A tető cserépfedésű, stabil, így kiváló alapot ad egy teljesen személyre szabható felújításhoz.
Főbb jellemzői a 75 nm -es lakótér, 2 szoba + nappali, 1284 nm-es gondozott saroktelek, több autó számára is kényelmes parkolási lehetőséggel, ideális családoknak vagy kertkedvelőknek egyaránt, csendes, mégis jól megközelíthető környéken, Győrtől alig 20 km autóval.
Ez az ingatlan kivételes lehetőség azoknak, akik szeretnének saját ízlésük szerint kialakítani egy családi otthont, vagy akár befektetésben gondolkodnak egy folyamatosan fejlődő településen.
További információért kérem hívjon bizalommal!
M317352
Tulajdonságok
Családi ház
Felújítandó
Egyéb
1956
Nem adta meg a hirdető
Vedd fel a kapcsolatot a hirdetővel

+36 70 341 7
Hitelkalkulátor
Második évtől
166 978 Ft A 13. hónaptól
7,99%
Végig fix Futamidő: 20 év Banki visszahívás
Az OTP Bank munkatársai a neked megfelelő napszakban veszik fel veled a kapcsolatot. A becslés a hirdető által megadott adatokon alapul. A jelen tájékoztatás nem minősül ajánlattételnek és nem teljes körű, az egyes feltételek a hitelbírálat eredményétől függően változhatnak. Kérjük, a részletekről tájékozódj az OTP Bank fiókjaiban vagy az OTP Bank honlapján közzétett vonatkozó Üzletszabályzatokból és Hirdetményekből.
Vedd fel a kapcsolatot a hirdetővel

+36 70 341 7
Vedd fel a kapcsolatot a hirdetővel

+36 70 341 7
UI_KIT.CHARACTER_COUNTER__COMPONENT.ACTUAL_CHARACTER__SR_ONLY UI_KIT.CHARACTER_COUNTER__COMPONENT.MAXIMUM_CHARACTER__SR_ONLY
Hasonló eladó ingatlanok Ásványrárón
Frissítve: 16 napja
12
42,5 millió Ft 615,9 ezer Ft/m²
Eladó családi ház, Ásványráró
Frissítve: 2 napja
9
35 millió Ft 466,7 ezer Ft/m²
Eladó családi ház, Ásványráró, Egres utca

Frissítve: 2 napja
19
35 millió Ft 500 ezer Ft/m²
Eladó családi ház, Ásványráró, Egres utca


Fedezd fel a
hasonló házakat!Még további házak Győr-Moson-Sopron megyében 38,8 M Ft körüli értékben
Tovább a hirdetésekhez Frissítve: 11 napja
20
38,8 millió Ft 517,3 ezer Ft/m²
Eladó családi ház, Ásványráró

Frissítve: 16 napja
4
42,5 millió Ft 566,7 ezer Ft/m²
Eladó családi ház, Ásványráró
Frissítve: 7 napja
20
38,8 millió Ft 517,3 ezer Ft/m²
Eladó családi ház, Ásványráró

