+12 fotó
Zenga
Premier
Hirdetéskód: 8977901
Referenciaszám: M327519
Feltöltve: 4 napja
Aszaló eladó családi ház 4 szobás: 15,99 millió Ft
15,99 millió Ft
114,2 ezer Ft/m² *
* A m² árat a hirdető adta meg.
140 m²
1991 m²
4 szoba

Friss hirdetések, amiket nem találsz meg más ingatlankereső portálon.
Fedezd fel elsőként a Zenga Premier címkés eladó ingatlanokat! További részletek A Duna House, OTP Ingatlanpont, Otthon Centrum és további hálózatok új, kizárólagos hirdetéseinek nagy részét a zenga.hu és koltozzbe.hu ingatlankeresőn láthatod legelőször, és a feltöltéstől két hétig nem érhetők el más ingatlankeresőn!
Leírás
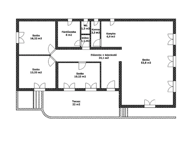
Eladó Aszaló csendes, nyugodt részén egy 140 nm-es, szerkezetkész családi ház, amely ideális választás mindazok számára, akik saját elképzeléseik szerint szeretnék kialakítani otthonukat.
Az ingatlan tetőszerkezete 2023 őszén készült el, masszív, prémium minőségű anyagok felhasználásával. A főfalak már állnak, a belső tér teljes mértékben szabadon formálható, így a leendő tulajdonos saját igényeihez igazíthatja a helyiségek elrendezését és funkcióit. A szükséges közműkiállások a házon belül már kialakításra kerültek, ami jelentősen megkönnyíti a további munkálatokat.
A telken belül elérhető a víz, csatorna és villamos energia, a gázellátás jelenleg nincs bevezetve. A falazat korszerű Porotherm téglából épült, ami hosszú távon is megbízható szerkezeti stabilitást biztosít.
A település kiváló elhelyezkedésű: az M30-as autópálya néhány percen belül elérhető, így Miskolc, Szikszó és Encs gyorsan megközelíthető. A faluban elérhető a vasúti és buszközlekedés is, amely további kényelmet biztosít a mindennapok során.
Ez az ingatlan kiváló lehetőség építkezni vágyók számára, akik nem szeretnének a teljes kivitelezési folyamat elejéről indulni, ugyanakkor fontos számukra, hogy otthonukat saját ízlésük szerint alakítsák ki.
Amennyiben felkeltette érdeklődését, keressen bizalommal, és tekintsük meg együtt ezt a sok lehetőséget rejtő ingatlant. OTP Banki hátterünknek köszönhetően finanszírozási igényekben (pl. Otthon Start Hitelprogram, Babaváró, Falusi CSOK, CSOK Plusz, Lakáshitel, Személyi kölcsön stb.), illetve biztosítások tekintetében is díjmentesen, soron kívüli ügyintézéssel segítem ügyfeleim! Referenciaszám: M327519
Tulajdonságok
Családi ház
Új építésű
2026
Nem adta meg a hirdető
Vedd fel a kapcsolatot a hirdetővel
+36 30 469 5
Hitelkalkulátor
Második évtől
68 814 Ft A 13. hónaptól
7,99% 8,49%
Végig fix Futamidő: 20 év Banki visszahívás
Az OTP Bank munkatársai a neked megfelelő napszakban veszik fel veled a kapcsolatot. A becslés a hirdető által megadott adatokon alapul. A jelen tájékoztatás nem minősül ajánlattételnek és nem teljes körű, az egyes feltételek a hitelbírálat eredményétől függően változhatnak. Kérjük, a részletekről tájékozódj az OTP Bank fiókjaiban vagy az OTP Bank honlapján közzétett vonatkozó Üzletszabályzatokból és Hirdetményekből.
Vedd fel a kapcsolatot a hirdetővel
+36 30 469 5
Vedd fel a kapcsolatot a hirdetővel
+36 30 469 5
UI_KIT.CHARACTER_COUNTER__COMPONENT.ACTUAL_CHARACTER__SR_ONLY UI_KIT.CHARACTER_COUNTER__COMPONENT.MAXIMUM_CHARACTER__SR_ONLY
Hasonló eladó ingatlanok Aszalón
Frissítve: 2 napja
14
16 millió Ft 136,8 ezer Ft/m²
Eladó családi ház, Aszaló

Frissítve: 3 napja
20
15,49 millió Ft 138,3 ezer Ft/m²
Eladó családi ház, Aszaló

Frissítve: 5 hónapja
9
15,5 millió Ft 184,5 ezer Ft/m²
Eladó családi ház, Aszaló

Fedezd fel a
hasonló házakat!Még további házak Borsod-Abaúj-Zemplén megyében 15,99 M Ft körüli értékben
Tovább a hirdetésekhez Feltöltve: 1 éve
0
15,5 millió Ft 103,3 ezer Ft/m²
Eladó családi ház, Mád, Kossuth Lajos utca 41.
Frissítve: 1 éve
11
15 millió Ft 156,3 ezer Ft/m²
Eladó családi ház, Sárospatak, Budai Nagy Antal utca

Frissítve: 17 napja
10
15,99 millió Ft 266,5 ezer Ft/m²
Eladó családi ház, Mezőkövesd

