Hirdetéskód: 8689604
Referenciaszám: 34_osz
Frissítve: 12 napja
Aszód eladó családi ház 2+1 fél szobás: 56,7 millió Ft
56,7 millió Ft
683 133 Ft/m²
83 m²
1000 m²
2+1 fél szoba
Eladó családi ház Aszód Nincs megadva 83m2 56700000 Ft
Újépítésű otthon, ott, ahol Ön szeretné!
Megvételre kínálunk egy modern, újépítésű ingatlant, amelyet teljes mértékben az Ön igényeihez igazítunk. A generálkivitelező több mint 25 éves szakmai tapasztalattal rendelkezik, és évtizedek óta bizonyítja megbízhatóságát és magas színvonalú munkáját a piacon.
AZ ÁR CSAK A HÁZ FELÉPÍTÉSÉRE VONATKOZIK. Portfóliónkban több olyan telek is megtalálható, ahol a vásárlást követően azonnal megkezdhető az építkezés — például Lőrinci, Dány, Valkó, Kerepes, Vácszentlászló, Galgahévíz vagy Szarvasgede településeken.
Emellett Aszód 25 km-es körzetében is vállaljuk telkek felkutatását.
Ha már rendelkezik saját telekkel, de még keresi a megbízható, megfizethető és korrekt kivitelezőt, ebben is örömmel állunk rendelkezésére.
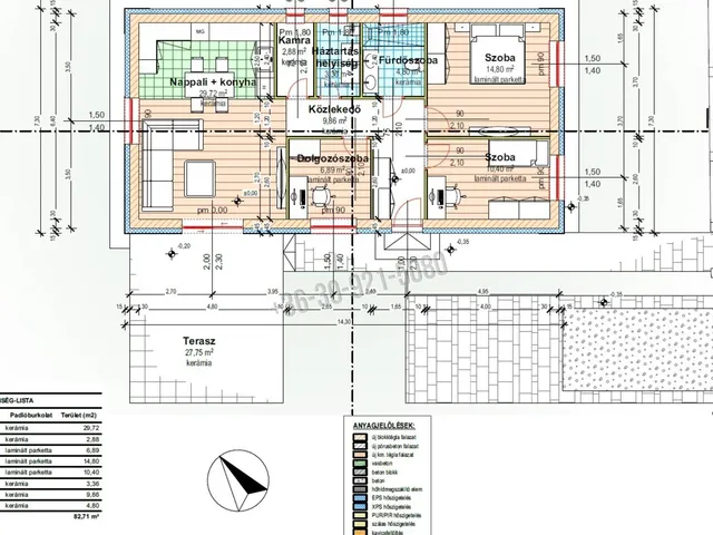
Az alaprajz és a látványtervek rugalmasan alakíthatók, így az otthona minden részlete az Ön elképzeléseit tükrözheti. Válassza a biztos szakértelmet és a személyre szabott megoldásokat – építse meg álmai otthonát ott, ahol mindig is szerette volna!
Fontosabb műszaki leírások :
- Alapok: vasalt sávalap 12-es futó és 6-os kengyel vasalattal, C16-24 KK mixerbetonnal
- Falazatok: teherhordó falazatok 37,5cm vastag Ytong Lambda NF+GT falazóelemből válaszfalak 12,5cm vastag gipszkarton falszerkezet 50dB léghang gátlással
- Fűtési, hűtési rendszer: szobákban és nappaliban 1-1 darab parapett fan coil, monoblokk hőszivattyú megtáplálással (10kw) fürdőszobában és háztartási helyiségben elektromos törölköző szárató radiátor
- Szellőzési rendszer: 1db hővisszanyerős szellőztető rendszer nappaliban
- Tetőfedés: beton tetőcserép fedés rendszertartozékokkal antracit színben
- Erősáram: szabvány villanyóra szekrény 3x20A és H tarifa fogadására alkalmas kivitelben
Kialakítható fedett garázs, beálló, udvar térkövezése, elülső kerítés, redőny és szúnyoghálók a vevők igényei alapján magas minőségben választhatóak.
Ingatlantól függetlenül támogatjuk ügyfeleinket HITELFELVÉTEL intézésében!
Rajtunk keresztül kedvezőbb feltételekhez juthat a hitelfelvétel során, ráadásul közvetítői díj nélkül!
Emiatt is forduljon hozzánk bizalommal.
Tulajdonságok
Családi ház
16
Újszerű
Hőszivattyú
2026
A++
Vedd fel a kapcsolatot a hirdetővel
+36 30 921 5
Hitelkalkulátor
Második évtől
244 011 Ft A 13. hónaptól
7,99%
Végig fix Futamidő: 20 év Banki visszahívás
Az OTP Bank munkatársai a neked megfelelő napszakban veszik fel veled a kapcsolatot. A becslés a hirdető által megadott adatokon alapul. A jelen tájékoztatás nem minősül ajánlattételnek és nem teljes körű, az egyes feltételek a hitelbírálat eredményétől függően változhatnak. Kérjük, a részletekről tájékozódj az OTP Bank fiókjaiban vagy az OTP Bank honlapján közzétett vonatkozó Üzletszabályzatokból és Hirdetményekből.
Vedd fel a kapcsolatot a hirdetővel
+36 30 921 5
Vedd fel a kapcsolatot a hirdetővel
+36 30 921 5
UI_KIT.CHARACTER_COUNTER__COMPONENT.REMAINING_SPACE__SR_ONLYUI_KIT.CHARACTER_COUNTER__COMPONENT.MAXIMUM_CHARACTER__SR_ONLY
Hasonló eladó ingatlanok Aszódon
Frissítve: 4 napja
20
61,49 M Ft 963 340 Ft/m²
Eladó családi ház, Aszód

Frissítve: ma
20
61,49 M Ft 976 032 Ft/m²
Eladó családi ház, Aszód

Frissítve: 29 napja
20
61,49 M Ft 976 032 Ft/m²
Eladó családi ház, Aszód


Fedezd fel a
hasonló házakat!Még további házak Pest megyében 56,7 M Ft körüli értékben
Tovább a hirdetésekhez Frissítve: 16 napja
20
61,49 M Ft 976 032 Ft/m²
Eladó családi ház, Aszód

Frissítve: 11 napja
9
54 M Ft 981 818 Ft/m²
Eladó családi ház, Aszód
Frissítve: 27 napja
15
55,9 M Ft 465 833 Ft/m²
Eladó családi ház, Aszód

Töltsd fel hirdetésed ingyenesen!
Egyszerű