

+10 fotó
Hirdetéskód: 8459888
Referenciaszám: BL132-4891393
Frissítve: 18 napja
Balatonkenese eladó családi ház 2+1 fél szobás: 65 millió Ft
65 millió Ft
601 852 Ft/m²
108 m²
523 m²
2+1 fél szoba
Balatonkenesén családi ház eladó
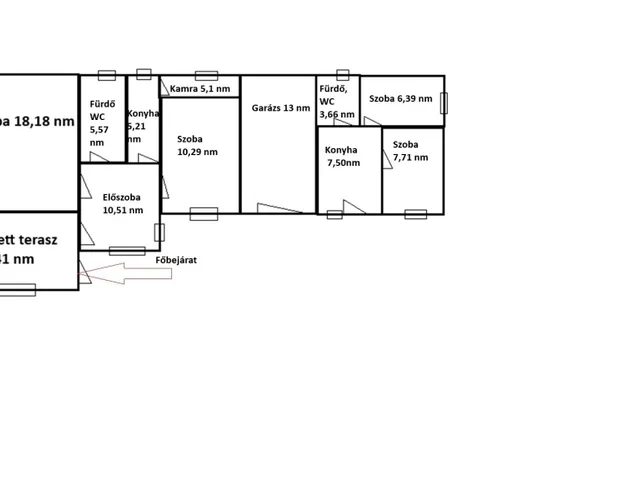
Balatonkenesén csendes utcába eladó egy felújításra szoruló családi ház. Hasznos alapterület 108 nm. A ház tégla falazatú, kő alapra épült. Tetőzete fa, héjazat bitumenes zsindely. A fő épületben kettő szoba összkomfort található, előszoba és egy fedett terasz is épült ehhez a részhez, a csatolt alaprajz szerint. Az épület folytatásában egy garázs található, majd közvetlen mellé, két szoba összkomfortos lakrész is épült. A tulajdonos elkezdte a felújítást, de nem szeretné azt befejezni.
A ház az 1960-as években készült, a telek mérete 523 nm, teljes közmű.
A fűtést gázkonvektor biztosítja, a melegvizet villanybojler adja.
Csendes környék nem messze a vasútállomástól, de mégis nyugodt környezetben, nincs átmenő forgalom.
Hívjon bizalommal, visszahívom.
Referencia szám: BL132-ZE
Tulajdonságok
Családi ház
Felújítandó
Gáz (konvektor)
1960
F
Vedd fel a kapcsolatot a hirdetővel
+36 70 241 6
Hitelkalkulátor
Második évtől
279 730 Ft A 13. hónaptól
7,99%
Végig fix Futamidő: 20 év Banki visszahívás
Az OTP Bank munkatársai a neked megfelelő napszakban veszik fel veled a kapcsolatot. A becslés a hirdető által megadott adatokon alapul. A jelen tájékoztatás nem minősül ajánlattételnek és nem teljes körű, az egyes feltételek a hitelbírálat eredményétől függően változhatnak. Kérjük, a részletekről tájékozódj az OTP Bank fiókjaiban vagy az OTP Bank honlapján közzétett vonatkozó Üzletszabályzatokból és Hirdetményekből.
Vedd fel a kapcsolatot a hirdetővel
+36 70 241 6
Vedd fel a kapcsolatot a hirdetővel
+36 70 241 6
UI_KIT.CHARACTER_COUNTER__COMPONENT.REMAINING_SPACE__SR_ONLYUI_KIT.CHARACTER_COUNTER__COMPONENT.MAXIMUM_CHARACTER__SR_ONLY
Hasonló eladó ingatlanok Balatonkenesén
Frissítve: 19 napja

20
63,5 M Ft 2 116 666 Ft/m²
Eladó családi ház, Balatonkenese
Frissítve: 2 hónapja

14
69 M Ft 485 915 Ft/m²
Eladó családi ház, Balatonkenese
Frissítve: 14 napja

20
69,5 M Ft 556 000 Ft/m²
Eladó családi ház, Balatonkenese


Fedezd fel a
hasonló házakat!Még további házak Veszprém megyében 65 M Ft körüli értékben
Tovább a hirdetésekhez Frissítve: 19 napja

9
59,9 M Ft 880 882 Ft/m²
Eladó ikerház, Révfülöp

Frissítve: 10 napja

20
64,9 M Ft 889 041 Ft/m²
Eladó családi ház, Nemesgulács

Frissítve: 3 napja

20
71 M Ft 645 455 Ft/m²
Eladó családi ház, Pápa


Töltsd fel hirdetésed ingyenesen!
Egyszerű