+12 fotó
Hirdetéskód: 8871112
Referenciaszám: 730400083
Frissítve: 27 napja
Becsvölgye eladó családi ház 3 szobás: 4,5 millió Ft
4,5 millió Ft
51,7 ezer Ft/m²
87 m²
4572 m²
3 szoba
Fiatal családoknak idelis alap - befejezésre váró családi ház Becsvölgye csendes utcájában!
Befejezésre váró családi ház Göcsej szívében, Becsvölgye csendes utcájában
Becsvölgye Zala megye egyik legszebb fekvésű települése, Göcsej szívében, ahol a dombos táj, az erdők és a nyugalom tökéletes harmóniában találkoznak. A település Zalaegerszegtől mindössze kb. 20 perces autóútra található, könnyen megközelíthető, mégis távol a város zajától - ideális választás azoknak, akik természetközeli, nyugodt életre vágynak.
Az ingatlan jellemzői:
A telken egy befejezésre váró, statikailag megerősített téglaépület található, amely egy korábbi családi ház teljes újjáépítésének alapját képezi.
Telekméret összesen: 4 572 m²
A meglévő épület szerkezete vasbeton alappal és új betonkoszorúval készült, a falak visszabontás után újraépítettek, így az épület stabil, a további kivitelezés biztonságosan folytatható.
A ház újraengedélyeztethető tervrajzzal rendelkezik, mely lehetőséget ad arra, hogy az új tulajdonos tetőtér-beépítéssel vagy egyszintes családi házként fejezze be az építkezést.
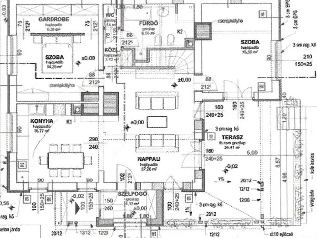
Tervezett helyiségek:
- Szoba: 14,29 m²
- Szoba: 16,39 m²
- Nappali: 27,26 m²
- Konyha: 16,77 m²
- Fürdőszoba: 8,56 m²
- Előszoba: 4,12 m²
- Terasz: 34,41 m²
A belső hasznos alapterület: 87,39m², ehhez jón mégg a 34,41m²-es terasz.
Összesen: 11,8m²
A telken megtalálható víz-, gáz- és villanyvezeték, az órák jelenleg le vannak szerelve.
A településen csatornahálózat nincs, az ingatlan szennyvízkezelése egyedi megoldással oldható meg.
A telekrendezés és kitűzés az elmúlt két hónapban megtörtént, a dokumentáció rendelkezésre áll.
Előnyök:
- Gyönyörű, zöldövezeti környezet, friss levegő, madárcsicsergés
- Tágas telek két helyrajzi számon - kiváló lehetőség kert, gyümölcsös vagy gazdálkodás kialakítására
- Biztonságos szerkezeti alap, azonnal folytatható építkezés
- Csendes, rendezett utca, kedves szomszédság
- Kiváló ár-érték arány
Becsvölgye és Göcsej hangulata
Becsvölgye igazi göcseji gyöngyszem: lankás dombok, erdők, patakvölgyek és hagyományos vidéki hangulat jellemzi. A környéken túraútvonalak, horgásztavak és kis helyi termelők teszik élhetővé a mindennapokat - ideális választás azoknak, akik nyugalmat, természetet és szabadságot keresnek.
Ez az ingatlan egyedülálló lehetőség azoknak, akik szeretnék saját ízlésük szerint befejezni álmaik otthonát, egy stabil alapokra épült, hangulatos göcseji környezetben.
További információért és a megtekintés egyeztetéséhez keress bizalommal!
Az ingatlanban otthon
Myhome
Tulajdonságok
Családi ház
1
Szerkezetkész
Egyéb
Nem adta meg a hirdető
Vedd fel a kapcsolatot a hirdetővel
+36 20 461 9
Hitelkalkulátor
Második évtől
13 005 Ft A 13. hónaptól
3,0%
Fix: 2 évig Futamidő: 20 év Banki visszahívás
Az OTP Bank munkatársai a neked megfelelő napszakban veszik fel veled a kapcsolatot. A becslés a hirdető által megadott adatokon alapul. A jelen tájékoztatás nem minősül ajánlattételnek és nem teljes körű, az egyes feltételek a hitelbírálat eredményétől függően változhatnak. Kérjük, a részletekről tájékozódj az OTP Bank fiókjaiban vagy az OTP Bank honlapján közzétett vonatkozó Üzletszabályzatokból és Hirdetményekből.
Vedd fel a kapcsolatot a hirdetővel
+36 20 461 9
Vedd fel a kapcsolatot a hirdetővel
+36 20 461 9
UI_KIT.CHARACTER_COUNTER__COMPONENT.ACTUAL_CHARACTER__SR_ONLY UI_KIT.CHARACTER_COUNTER__COMPONENT.MAXIMUM_CHARACTER__SR_ONLY
Hasonló eladó ingatlanok Becsvölgyén
Frissítve: 1 hónapja
20
4,5 millió Ft 93,8 ezer Ft/m²
Eladó családi ház, Becsvölgye

Frissítve: 22 napja
8
4,3 millió Ft 122,9 ezer Ft/m²
Eladó családi ház, Zalaszentjakab

Frissítve: 2 napja
12
4,8 millió Ft 137,1 ezer Ft/m²
Eladó családi ház, Becsehely

Frissítve: 2 napja
16
4,9 millió Ft 70 ezer Ft/m²
Eladó családi ház, Gelse

Frissítve: 3 napja
20
4,65 millió Ft 75 ezer Ft/m²
Eladó családi ház, Bánokszentgyörgy

Frissítve: 1 hónapja
9
4,9 millió Ft 98 ezer Ft/m²
Eladó családi ház, Csömödér

