+14 fotó
Hirdetéskód: 8588010
Referenciaszám: U0048218
Frissítve: 1 napja
Bocskaikert eladó családi ház 4 szobás: 75,9 millió Ft
75,9 millió Ft
998 684 Ft/m²
76 m²
120 m²
4 szoba
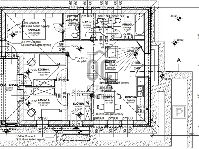
Bocskaikert központjában újépítésű, nappali+3 szobás, földszintes ház eladó!
Bocskaikert központjában 2026. tavaszi átadással eladó egy nettó 75 m2-es, földszintes, nappali-amerikai konyha - étkező + 3 külön nyíló szobás ház, saját kis kertrésszel, gépkocsibeállóval, az alábbi paraméterekkel:
-Nappali-amerikai konyha + 3 külön nyíló szoba
-Földszintes kialakítás
-Porotherm 30 falazóblokkból + 15 cm hőszigetelés
-Gázcirkó fűtés, igény szerint padlófűtés
-Betoncserép fedés
-Fedett terasz, épített tároló
-Saját kertrész, gépkocsibeállási lehetőséggel
-Második gépkocsinak van hely az épület előtt
-Klíma, 3 rétegű, hőszigetelt műanyag nyílászárók, minimális rezsi
-Társasház alapító okirattal, önálló helyrajzi számra kerülő lakások, CSOK+ alkalmasak
-A lakóegységek csak a tárolóknál csatlakoznak, ebből fakadóan a lakások teljesen különálló épületek, külön tetőszerkezettel
-Az átgondolt tervezésnek köszönhetően dupla komfortos ingatlanok épülnek, a szülői hálóból külön zuhanyzó és WC nyílik a közös fürdőszoba mellett. A különálló 2. WC mellett még egy háztartási helyiség is helyet kapott.
-A tárolónak vasbeton alap készül, egybe lesz öntve az épülettel, igényesen kerül kivitelezésre
-A középső lakásban a szülői hálóban master bedroom kerül kialakításra, gardrób és fürdő épül, a konyhából pedig egy kamra és háztartási helyiség is nyílik.
Minden helyi célpont kényelmes sétatávolságra található, Debrecen központja még a reggeli csúcsban is 13 perc alatt elérhető.
Az építkezés elkezdődött, 2026. tavaszán költözhető, hitel, CSOK+ igényelhető.
Részletes műszaki tartalommal, megtekintési időponttal kapcsolatban várjuk hívását a hét minden napján!
Tulajdonságok
Családi ház
Új építésű
Gázkazán
2026
6,8 m²
Nem adta meg a hirdető
Vedd fel a kapcsolatot a hirdetővel
+36 70 465 6
Hitelkalkulátor
Második évtől
326 639 Ft A 13. hónaptól
7,99% 8,49%
Végig fix Futamidő: 20 év Banki visszahívás
Az OTP Bank munkatársai a neked megfelelő napszakban veszik fel veled a kapcsolatot. A becslés a hirdető által megadott adatokon alapul. A jelen tájékoztatás nem minősül ajánlattételnek és nem teljes körű, az egyes feltételek a hitelbírálat eredményétől függően változhatnak. Kérjük, a részletekről tájékozódj az OTP Bank fiókjaiban vagy az OTP Bank honlapján közzétett vonatkozó Üzletszabályzatokból és Hirdetményekből.
Vedd fel a kapcsolatot a hirdetővel
+36 70 465 6
Vedd fel a kapcsolatot a hirdetővel
+36 70 465 6
UI_KIT.CHARACTER_COUNTER__COMPONENT.REMAINING_SPACE__SR_ONLYUI_KIT.CHARACTER_COUNTER__COMPONENT.MAXIMUM_CHARACTER__SR_ONLY
Hasonló eladó ingatlanok Bocskaikertben
Frissítve: 3 hónapja
20
79,99 M Ft 769 135 Ft/m²
Eladó ikerház, Bocskaikert

Frissítve: 7 hónapja
1
69,9 M Ft 428 834 Ft/m²
Eladó családi ház, Bocskaikert, Csillag 17
Frissítve: 9 napja
1
83 M Ft 813 725 Ft/m²
Eladó ikerház, Bocskaikert

Fedezd fel a
hasonló házakat!Még további házak Hajdú-Bihar megyében 75,9 M Ft körüli értékben
Tovább a hirdetésekhez Frissítve: 15 napja
20
81,9 M Ft 593 478 Ft/m²
Eladó családi ház, Bocskaikert

Frissítve: 9 napja
17
69,9 M Ft 517 778 Ft/m²
Eladó családi ház, Bocskaikert

Frissítve: 1 hónapja
16
72,3 M Ft 850 588 Ft/m²
Eladó ikerház, Bocskaikert

Töltsd fel hirdetésed ingyenesen!
Egyszerű