

 +18 fotó 
Zenga 
Hirdetéskód: 8768328
Referenciaszám: M316420
 Feltöltve: ma 
Bogács eladó családi ház 2 szobás: 37,9 millió Ft
 37,9 millió Ft 
 495 425 Ft/m² *
 * A m² árat a hirdető adta meg. 
 76 m²  
 791 m²  
 2 szoba 

 Friss hirdetések, amiket nem találsz meg más ingatlankereső portálon. 
Fedezd fel elsőként a Zenga Premier címkés eladó ingatlanokat! További részletek A Duna House, OTP Ingatlanpont, Otthon Centrum és további hálózatok új, kizárólagos hirdetéseinek nagy részét a zenga.hu és koltozzbe.hu ingatlankeresőn láthatod legelőször, és a feltöltéstől két hétig nem érhetők el más ingatlankeresőn!
Leírás
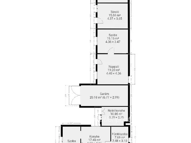
 A település kedvelt részén kínálok megvételre egy 2 szobás, vegyestüzelésű fűtéssel rendelkező házat, jó állapotú burkolatokkal és nyílászárókkal, réz vezetékekkel.
A telken több melléképület, nyári konyha, garázs, valamint egy nappali + szobás különálló lakrész is található, ami akár több generáció együttélésére vagy apartmanok kialakítására is kiváló alap lehet.
Bogács a Bükkalja egyik legkedveltebb üdülőfaluja, gyógyfürdővel, borospincékkel és természetközeli hangulattal, itt a nyugalom és a lehetőségek egyszerre adottak. Ideális választás állandó otthonnak vagy befektetésnek egyaránt.
OTP Banki hátterünknek köszönhetően finanszírozási igényekben (pl. Otthon Start Program, Babaváró, Falusi CSOK, CSOK Plusz, Lakáshitel, Személyi kölcsön stb.), illetve biztosítások tekintetében is díjmentesen, soron kívüli ügyintézéssel segítem ügyfeleim! Referenciaszám: M316420 
Tulajdonságok
Családi ház
1
Átlagos
Egyéb kazán
2002
Nem adta meg a hirdető
Vedd fel a kapcsolatot a hirdetővel
 +36 30 181 2 
Hitelkalkulátor
 Második évtől 
 163 104 Ft  A 13. hónaptól 
 7,99% 
 Végig fix  Futamidő: 20 év Banki visszahívás
Az OTP Bank munkatársai a neked megfelelő napszakban veszik fel veled a kapcsolatot. A becslés a hirdető által megadott adatokon alapul. A jelen tájékoztatás nem minősül ajánlattételnek és nem teljes körű, az egyes feltételek a hitelbírálat eredményétől függően változhatnak. Kérjük, a részletekről tájékozódj az OTP Bank fiókjaiban vagy az OTP Bank honlapján közzétett vonatkozó Üzletszabályzatokból és Hirdetményekből. 
Vedd fel a kapcsolatot a hirdetővel
 +36 30 181 2 
Vedd fel a kapcsolatot a hirdetővel
 +36 30 181 2 
UI_KIT.CHARACTER_COUNTER__COMPONENT.REMAINING_SPACE__SR_ONLYUI_KIT.CHARACTER_COUNTER__COMPONENT.MAXIMUM_CHARACTER__SR_ONLY
Hasonló eladó ingatlanok Bogácson
 Frissítve: 16 napja 

 14 
 35 M Ft  357 143 Ft/m² 
 Eladó családi ház, Bogács 

 Feltöltve: 1 hónapja 

 7 
 39 M Ft  433 334 Ft/m² 
 Eladó családi ház, Bogács 
 Frissítve: 6 napja 

 20 
 36,8 M Ft  575 000 Ft/m² 
 Eladó családi ház, Bogács 

Fedezd fel a 
hasonló házakat!Még további házak Borsod-Abaúj-Zemplén megyében 37,9 M Ft körüli értékben
 Tovább a hirdetésekhez  Frissítve: 3 napja 

 20 
 36,7 M Ft  262 143 Ft/m² 
 Eladó családi ház, Mezőkövesd 

 Frissítve: 3 napja 

 13 
 40 M Ft  307 692 Ft/m² 
 Eladó családi ház, Borsodnádasd 

 Frissítve: 1 napja 

 20 
 39,9 M Ft 
 Eladó családi ház, Ózd, 48-as út 


Töltsd fel hirdetésed ingyenesen!
Egyszerű 

