+17 fotó
Hirdetéskód: 8866192
Referenciaszám: M310558-5133164
Feltöltve: ma
Bököny eladó családi ház 3 szobás: 24,5 millió Ft
24,5 millió Ft
263 441 Ft/m²
93 m²
1325 m²
3 szoba
Eladó Ház, Bököny
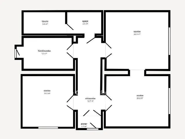
Eladásra kínálunk Bököny központi főutcáján, mindössze fél órára Debrecentől egy 93,2 négyzetméteres, kiváló állapotban lévő, hagyományos Kádár-kocka jellegű családi házat, amely tökéletes választás lehet családok számára. Az ingatlan elhelyezkedése rendkívül előnyös, hiszen néhány perc sétával elérhető az óvoda, az iskola, a buszmegálló és a boltok, így minden fontos szolgáltatás kényelmes közelségben található. A ház praktikus elrendezésű, három tágas és világos szoba, különálló konyha, fürdőszoba, spájz és pince biztosítja a kényelmet. A lakóépülethez tartozik garázs, több tárolóhelyiség, valamint egy állattartásra is alkalmas melléképület, a gondozott kertben pedig egy kis veteményes is helyet kapott, amely ideális lehet saját termesztéshez. A fűtés gáz-központi rendszerrel megoldott, ugyanakkor a hangulatos cserépkályha és a vegyes tüzelési lehetőség is rendelkezésre áll. Az épület vegyes falazatú, beton alapra épült, szerkezetileg kifogástalan állapotban van, modern műanyag nyílászárókkal felszerelve, így hosszú távon is megbízható otthont nyújt. Az ingatlan minimálisan alku képes, ezért most remek lehetőséget kínál mindazoknak, akik egy nyugodt, barátságos falusi környezetben szeretnének új otthonra találni.
OTP Banki hátterünknek köszönhetően a finanszírozási igényekben ? legyen szó Babaváróról, Falusi CSOK-ról, CSOK Pluszról, lakáshitelről vagy személyi kölcsönről ?, valamint a biztosítások intézésében is díjmentes, soron kívüli ügyintézést biztosítok ügyfeleim számára.
Referenciaszám: M310558
Tulajdonságok
1973
Nem adta meg a hirdető
Vedd fel a kapcsolatot a hirdetővel
+36 30 464 5
Hitelkalkulátor
Második évtől
105 437 Ft A 13. hónaptól
7,99%
Végig fix Futamidő: 20 év Banki visszahívás
Az OTP Bank munkatársai a neked megfelelő napszakban veszik fel veled a kapcsolatot. A becslés a hirdető által megadott adatokon alapul. A jelen tájékoztatás nem minősül ajánlattételnek és nem teljes körű, az egyes feltételek a hitelbírálat eredményétől függően változhatnak. Kérjük, a részletekről tájékozódj az OTP Bank fiókjaiban vagy az OTP Bank honlapján közzétett vonatkozó Üzletszabályzatokból és Hirdetményekből.
Vedd fel a kapcsolatot a hirdetővel
+36 30 464 5
Vedd fel a kapcsolatot a hirdetővel
+36 30 464 5
UI_KIT.CHARACTER_COUNTER__COMPONENT.REMAINING_SPACE__SR_ONLYUI_KIT.CHARACTER_COUNTER__COMPONENT.MAXIMUM_CHARACTER__SR_ONLY
Hasonló eladó ingatlanok Bökönyön
Frissítve: 18 napja
20
24,5 M Ft 263 441 Ft/m²
Eladó családi ház, Bököny

Feltöltve: 3 napja
10
24 M Ft 320 000 Ft/m²
Eladó családi ház, Bököny

Frissítve: 13 napja
20
24,5 M Ft 263 441 Ft/m²
Eladó családi ház, Bököny


Fedezd fel a
hasonló házakat!Még további házak Szabolcs-Szatmár-Bereg megyében 24,5 M Ft körüli értékben
Tovább a hirdetésekhez Frissítve: 6 napja
20
24,5 M Ft 262 876 Ft/m²
Eladó családi ház, Bököny

Frissítve: 3 hónapja
1
23 M Ft 242 105 Ft/m²
Eladó családi ház, Bököny, Dózsa György
Frissítve: 1 napja
18
24,5 M Ft 263 441 Ft/m²
Eladó családi ház, Bököny

