+17 fotó
Hirdetéskód: 8900278
Referenciaszám: M323139
Feltöltve: 1 napja
Budapest II. kerület eladó családi ház 5 szobás: 259 millió Ft
259 millió Ft
1 918 519 Ft/m² *
* A m² árat a hirdető adta meg.
135 m²
674 m²
5 szoba
Leírás
RITKA LEHETŐSÉG, SZÁZADFORDULÓS, FELÚJÍTOTT VILLA HIDEGKÚTON, ERDŐSZÉLÉN!
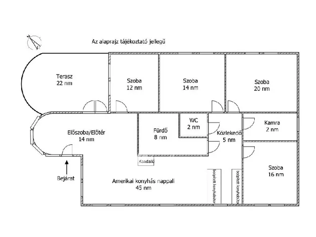
Eladásra kínálunk Budapest II/A. kerületének egyik legexkluzívabb, legzöldebb részén, Hársakalján, egy igazi építészeti ékkövet! Ez a 135 nm-es, századfordulós stílusban épült, 2022-ben modernizált villa tökéletes harmóniát teremt a klasszikus elegancia és a mai kor kényelme között, amely egy 674 négyzetméteres, parkosított telken helyezkedik el, egy csendes, erdőszéli zsákutcában.
Az ingatlanban négy tágas szoba, valamint egy amerikai konyhás nappali található, ahol egy gyönyörű kandalló gondoskodik az otthonos, meghitt hangulatról. A ház fűtését korszerű kombi gázkazán biztosítja radiátoros hőleadással, a nyári komfortot pedig légkondicionáló berendezések szolgálják.
Az épületet utoljára 2022-ben korszerűsítették, ennek köszönhetően kívül-belül kiváló állapotnak örvend, hőszigetelt, energiahatékony.
A házhoz tartozik egy kétállásos garázs, egy száraz pince, valamint egy beépített, gondozott medence is, amely a hatalmas terasz és a gyönyörű kert mellett tökéletes lehetőséget kínál a pihenésre és kikapcsolódásra.
Az ingatlan elhelyezkedése is elsőrangú, hiszen pár perc sétára található a legközelebbi buszmegálló, ahol éjszakai járat is közlekedik, a közelben pedig számos bevásárlási lehetőség, gyógyszertár, rendelő, iskola, óvoda és bölcsőde könnyíti meg a mindennapokat. A Hűvösvölgyi végállomás pedig 5 perc sétára található.
Ez a villa nem csupán egy otthon, hanem egy életérzés, ahol a természet közelsége, a nyugalom és a kifinomult elegancia találkozik.
Tulajdonságok
Családi ház
1
Átlagos
Gázkazán
1920
25 m²
Nem adta meg a hirdető
Vedd fel a kapcsolatot a hirdetővel
Heuszler Annamária Budapest VII. kerület Murányi utca 20 - OTP Ingatlanpont Iroda Az iroda összes hirdetése
+36 30 580 4
Hitelkalkulátor
Második évtől
1 114 618 Ft A 13. hónaptól
7,99%
Végig fix Futamidő: 20 év Banki visszahívás
Az OTP Bank munkatársai a neked megfelelő napszakban veszik fel veled a kapcsolatot. A becslés a hirdető által megadott adatokon alapul. A jelen tájékoztatás nem minősül ajánlattételnek és nem teljes körű, az egyes feltételek a hitelbírálat eredményétől függően változhatnak. Kérjük, a részletekről tájékozódj az OTP Bank fiókjaiban vagy az OTP Bank honlapján közzétett vonatkozó Üzletszabályzatokból és Hirdetményekből.
Vedd fel a kapcsolatot a hirdetővel
Heuszler Annamária Budapest VII. kerület Murányi utca 20 - OTP Ingatlanpont Iroda Az iroda összes hirdetése
+36 30 580 4
Vedd fel a kapcsolatot a hirdetővel
Heuszler Annamária Budapest VII. kerület Murányi utca 20 - OTP Ingatlanpont Iroda Az iroda összes hirdetése
+36 30 580 4
UI_KIT.CHARACTER_COUNTER__COMPONENT.ACTUAL_CHARACTER__SR_ONLY UI_KIT.CHARACTER_COUNTER__COMPONENT.MAXIMUM_CHARACTER__SR_ONLY
Hasonló eladó ingatlanok Hársakalja városrészben
Feltöltve: 1 éve
15
250 M Ft 757 576 Ft/m²
Eladó családi ház, Budapest II. kerület, Hársakalja, Szilágy Erzsébet u 2
Frissítve: 4 napja
20
274,9 M Ft 1 832 667 Ft/m²
Eladó ikerház, Budapest II. kerület, Hársakalja

Frissítve: 5 hónapja
0
270 M Ft 1 421 053 Ft/m²
Eladó családi ház, Budapest II. kerület, Széphalom

Fedezd fel a
hasonló házakat!Még további házak Budapest II. kerületben 259 M Ft körüli értékben
Tovább a hirdetésekhez Feltöltve: 2 éve
14
270,2 M Ft 1 228 182 Ft/m²
Eladó családi ház, Budapest II. kerület, Máriaremete

Frissítve: ma
20
240 M Ft 839 161 Ft/m²
Eladó családi ház, Budapest II. kerület

Frissítve: ma
8
690 000 Euro
262,89 M Ft 1 194 955 Ft/m²
Eladó családi ház, Budapest II. kerület

