+17 fotó
Hirdetéskód: 8790822
Referenciaszám: 389758
Feltöltve: 1 napja
Budapest X. kerület eladó családi ház 7 szobás: 265 millió Ft
265 millió Ft
1 456 044 Ft/m²
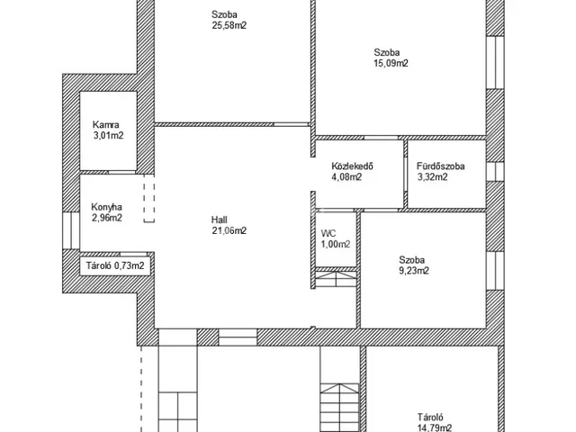
182 m²
729 m²
7 szoba
Eladó családi ház Budapest, X. kerület, 182nm, 265.000.000Ft - Mádi utca
Prémium nagypolgári villa Óhegyen – frissen felújítva, azonnal költözhető, akadálymentesített/ vállalkozásra is tökéletes
Budapest X. kerületének egyik legkedveltebb kertvárosi részén, Óhegyen eladó egy pompásan felújított, kiváló műszaki állapotú, két szintes nagypolgári villa, 729 m²-es gondozott saroktelken.
A ház azonnal költözhető, világos, reprezentatív terekkel és időtálló eleganciával várja új tulajdonosát.
A két szint teljesen külön bejárattal és önálló funkcióval is használható, közöttük mozgáskorlátozott lépcsőlift biztosít akadálymentes közlekedést.
Ideális: prémium otthonnak, exkluzív irodának vagy kétlakásos befektetésnek
A ház mérete és kialakítása miatt tökéletes választás:
elegáns városi villának,
exkluzív irodának / cégközpontnak,
rendelőnek, praxisnak,
két külön lakás bérbeadására,
vagy többgenerációs együttélésre.
Főbb előnyök
5 szoba, 2 konyha, 2 fürdő, nagy hallak és reprezentatív terek
Prémium szintű friss felújítás, korszerű gépészet
Körbenapozott, világos helyiségek
729 m²-es saroktelek több autóbeállóval
Motoros kapu, intim hátsó kert, külön tároló
Azonnal birtokba vehető, újszerű állapot
Különleges érték
A ház megjelenése, műszaki állapota és elrendezése ritka kombinációt kínál: egyszerre nyújt otthont, reprezentációt és üzleti lehetőséget egy csendes, mégis kiválóan megközelíthető környéken. ...TOVÁBBI, TÖBBEZRES INGATLAN KÍNÁLAT: www.gdn-ingatlan.hu - GDN azonosító: 389758
Tulajdonságok
Családi ház
2
Felújított
Gázkazán
1966
14 m²
D
Vedd fel a kapcsolatot a hirdetővel
+36 20 525 4
Hitelkalkulátor
Második évtől
1 140 439 Ft A 13. hónaptól
7,99%
Végig fix Futamidő: 20 év Banki visszahívás
Az OTP Bank munkatársai a neked megfelelő napszakban veszik fel veled a kapcsolatot. A becslés a hirdető által megadott adatokon alapul. A jelen tájékoztatás nem minősül ajánlattételnek és nem teljes körű, az egyes feltételek a hitelbírálat eredményétől függően változhatnak. Kérjük, a részletekről tájékozódj az OTP Bank fiókjaiban vagy az OTP Bank honlapján közzétett vonatkozó Üzletszabályzatokból és Hirdetményekből.
Vedd fel a kapcsolatot a hirdetővel
+36 20 525 4
Vedd fel a kapcsolatot a hirdetővel
+36 20 525 4
UI_KIT.CHARACTER_COUNTER__COMPONENT.REMAINING_SPACE__SR_ONLYUI_KIT.CHARACTER_COUNTER__COMPONENT.MAXIMUM_CHARACTER__SR_ONLY
Hasonló eladó ingatlanok Óhegy városrészben
Frissítve: 24 napja
20
289 M Ft 1 179 592 Ft/m²
Eladó családi ház, Budapest X. kerület, Óhegy

Frissítve: 26 napja
20
249 M Ft 1 338 710 Ft/m²
Eladó családi ház, Budapest X. kerület, Óhegy

Frissítve: 23 napja
20
265 M Ft 1 656 250 Ft/m²
Eladó családi ház, Budapest X. kerület, Óhegy


Fedezd fel a
hasonló házakat!Még további házak Budapest X. kerületben 265 M Ft körüli értékben
Tovább a hirdetésekhez Frissítve: ma
20
265 M Ft 1 656 250 Ft/m²
Eladó családi ház, Budapest X. kerület, Óhegy

Frissítve: ma
20
265 M Ft 1 656 250 Ft/m²
Eladó családi ház, Budapest X. kerület, Óhegy

Frissítve: ma
17
265 M Ft 1 338 384 Ft/m²
Eladó családi ház, Budapest X. kerület, Óhegy


Töltsd fel hirdetésed ingyenesen!
Egyszerű
