+18 fotó
Hirdetéskód: 8761432
Referenciaszám: 17-5545
Frissítve: 1 napja
Budapest XI. kerület eladó családi ház 3 szobás: 127 millió Ft
127 millió Ft
* A m² árat a hirdető adta meg.
105 m²
1356 m²
3 szoba
XI. Kerület, Laska utca, 105 m²-es, családi ház, 3 szobás, kiváló állapotú
Körpanorámás, két szintes lakóház Kamaraerdő szívében, ahol a csend és a természet valódi otthont teremt
Budapest XI. kerületének egyik legcsendesebb, átmenő forgalomtól mentes utcájában, Kamaraerdő üdülőövezetében kínálunk megvételre egy különleges hangulatú, két szintes, erkélyes lakóházat. A 1356 m²-es, déli fekvésű, parkosított kerttel rendelkező ingatlan valódi menedék a természet szerelmeseinek: gyümölcsfák, örökzöldek, virágok és barátságos szomszédok teszik teljessé az idilli környezetet.
Az ingatlan zártkerti besorolású, de lakóházként funkcionál, és minden komfortot biztosít, amit egy modern otthontól elvárhatunk.
Napfényes terek, körpanorámás felső szint
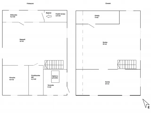
Az épület az 1980-as években épült szendvicsbeton technológiával, amely ma is korszerűnek számít. Az 1990-es években bővítették, majd 2020 és 2025 között teljes körű felújításon esett át. A 90 m²-es lakóterület két szinten oszlik meg:
• A földszinten egy 2,2 m²-es teraszon keresztül jutunk be az előszobába, ahonnan egy közel 30 m²-es nappali-étkezőbe érkezünk. Itt található a konyha és a fürdőszoba is.
• Az emeletre a nappali sarkából induló lépcső vezet. Itt egy tágas, 35 m²-es szoba és egy 20 m²-es hálószoba található. A nagyobbik szoba a ház legvilágosabb pontja, egész nap besüt a nap, és innen nyílik az 5 m²-es erkély is, ahonnan körpanoráma tárul elénk. A szoba mérete és geometriája lehetővé teszi két kisebb hálószoba kialakítását is.
A ház alatt egy 6 m²-es pince is található, amely tárolásra vagy akár borospinceként is hasznosítható.
Korszerű gépészet, alacsony fenntartási költségek
A ház 25 cm vastag szigeteléssel rendelkezik, így energetikailag rendkívül hatékony. A fűtést és hűtést jelenleg két inverteres klíma biztosítja, de a radiátorokkal kiépített központi fűtés is elő van készítve. Bár gáz közmű nincs a telken, gáztartállyal vagy palackkal is üzemeltethető a rendszer. A nappaliban egy kiváló állapotú, használaton kívüli kémény is rendelkezésre áll, így kandalló beépítése is lehetséges.
Az elektromos betáplálás 1×25A, amely minden háztartási funkcióhoz elegendő kapacitást biztosít.
A szennyvízelvezetés modernizált, a vízellátást egy 50 méter mély, iható, tiszta vizű fúrt kút biztosítja. A teljes víz- és csatornarendszer önellátásra és fenntarthatóságra lett kialakítva.
Rezsiköltség: Az elektromos áram havi átlagban 25.000 Ft, amely minden funkciót (fűtés, hűtés, főzés, világítás) kiszolgál. Internet: T-Home. Egyéb rezsiköltség nincs.
Melléképületek és kert
• 25 m²-es garázs elektromos árammal, akár két autó számára is elegendő
• 28 m²-es melléképület víz-, csatorna- és áramcsatlakozással, zuhanyzós fürdőszobával és WC-vel, vendégháznak, műhelynek is ideális
• 2 db zárható tároló a kertben
A kert mérete és kialakítása lehetőséget ad saját termesztésre, pihenésre, vagy akár kisállattartásra is.
Természetközeli, mégis jól kapcsolódó
Az ingatlan elhelyezkedése ideális: 5 perc sétára az erdő, ahol túraösvények, madárdal és friss levegő vár. Kelenföld autóval 6–7 perc, busszal 10–13 perc alatt elérhető. A balatoni és régi 7-es út 3 perc autóval, gyalogosan 7–8 perc kényelmes séta. Tömegközlekedés: BKV (101E, 101B, 150, 150B, 141, 58, 158, 941 éjszakai), Volánbusz (722, 727, 710), a megálló kb. 600 méterre található.
Ez az ingatlan azoknak szól, akik nem csupán házat keresnek, hanem életminőséget. Egy helyet, ahol a természet közelsége, a csend és a tágas tér valódi értéket képvisel. A ház kizárólag készpénzes vevők számára elérhető, ha Ön az új tulajdonos, örömmel mutatjuk meg, milyen érzés lehet itt élni.
Tulajdonságok
Családi ház
Újszerű
Elektromos
1980
B
Nincs
Vedd fel a kapcsolatot a hirdetővel
Szimeth Norbert Balla Ingatlan - XVIII. kerület, Gyál, Üllő, Vecsés, Péteri Az iroda összes hirdetése
+36 70 383 3
Hitelkalkulátor
Második évtől
546 550 Ft A 13. hónaptól
7,99%
Végig fix Futamidő: 20 év Banki visszahívás
Az OTP Bank munkatársai a neked megfelelő napszakban veszik fel veled a kapcsolatot. A becslés a hirdető által megadott adatokon alapul. A jelen tájékoztatás nem minősül ajánlattételnek és nem teljes körű, az egyes feltételek a hitelbírálat eredményétől függően változhatnak. Kérjük, a részletekről tájékozódj az OTP Bank fiókjaiban vagy az OTP Bank honlapján közzétett vonatkozó Üzletszabályzatokból és Hirdetményekből.
Vedd fel a kapcsolatot a hirdetővel
Szimeth Norbert Balla Ingatlan - XVIII. kerület, Gyál, Üllő, Vecsés, Péteri Az iroda összes hirdetése
+36 70 383 3
Vedd fel a kapcsolatot a hirdetővel
Szimeth Norbert Balla Ingatlan - XVIII. kerület, Gyál, Üllő, Vecsés, Péteri Az iroda összes hirdetése
+36 70 383 3
UI_KIT.CHARACTER_COUNTER__COMPONENT.REMAINING_SPACE__SR_ONLYUI_KIT.CHARACTER_COUNTER__COMPONENT.MAXIMUM_CHARACTER__SR_ONLY
Hasonló eladó ingatlanok Budapest XI. kerületben
Frissítve: 7 napja
20
129 M Ft 1 343 750 Ft/m²
Eladó házrész, Budapest XI. kerület, Hunyadi Mátyás út

Frissítve: 3 napja
20
129 M Ft 1 343 750 Ft/m²
Eladó házrész, Budapest XI. kerület

Frissítve: 4 napja
20
129 M Ft 1 343 750 Ft/m²
Eladó házrész, Budapest XI. kerület


Fedezd fel a
hasonló házakat!Még további házak Budapesten 127 M Ft körüli értékben
Tovább a hirdetésekhez Frissítve: 7 napja
20
127 M Ft 1 058 333 Ft/m²
Eladó családi ház, Budapest XI. kerület

Frissítve: 29 napja
19
127 M Ft 1 058 333 Ft/m²
Eladó családi ház, Budapest XI. kerület, Fény

Frissítve: 2 napja
20
127 M Ft 1 058 333 Ft/m²
Eladó családi ház, Budapest XI. kerület


Töltsd fel hirdetésed ingyenesen!
Egyszerű
