+17 fotó
Hirdetéskód: 8820162
Referenciaszám: 17-5566
Feltöltve: 4 napja
Budapest XIX. kerület eladó családi ház 3 szobás: 129,9 millió Ft
129,9 millió Ft
* A m² árat a hirdető adta meg.
82 m²
575 m²
3 szoba
XIX. Kerület, Jókai utca, 82 m²-es, 2 generációs, családi ház
Eladó földszintes családi ház Kispest Óvárosában - csendes mellékutcában, kiváló közlekedéssel
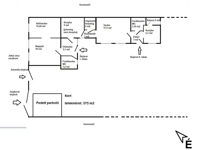
Kispest Óváros kerületrészében, a Jókai utcában kínálunk megvételre egy földszintes, téglafalazatú családi házat, amely élhető, kisvárosi környezetben, forgalommentes mellékutcában helyezkedik el. A környék hangulata barátságos, kertvárosias: rendezett házak, zöld kertek és nyugodt utcák jellemzik, miközben a főváros közelsége minden kényelmet biztosít.
Telek és kert
• Telek mérete: 575 m², 15 m széles utcafronttal
• Beépíthetőség: 30%
• Gépjárművel bejárható a telek végéig
• Fedett gépkocsi-beálló: belső szélessége 330 cm, belső magassága 250 cm
• Különálló tároló: 8 m², elektromos közművel, 250 cm belmagassággal
• Kerti kút: ásott, betongyűrűs, bőséges vízhozammal, ideális öntözéshez tavasszal és nyáron
Ház és lakrészek
Az ingatlan a földhivatali nyilvántartás szerint kétlakásos, külön bejárattal. Jelenleg a lakrészek össze vannak nyitva, de igény szerint visszaállíthatók. A terhelhető, szigetelt födém lehetőséget ad tetőtér-beépítésre.
• Nagyobb lakrész:
◦ 50,5 m², kétszobás
◦ Belmagasság: 315 cm
◦ Szobák az utcafront (nyugati oldal) felé néznek
◦ Szobák egymásba nyílók, de külön bejárat kialakítható
◦ Légkondicionáló: hűtő-fűtő típusú
• Kisebb lakrész:
◦ 31,5 m², egyszobás
◦ Belmagasság: 245 cm
◦ 90-es években épült, betonfödémes
Fűtés és energiaellátás
• Fűtés és melegvíz: napkollektoros rendszer + kondenzációs gázkazán
• Kiegészítő fűtés: fatüzelésű cserépkályha a kétszobás lakrészben
• Gazdaságos üzemeltetés: gázfogyasztás havi átlagban 14.000 Ft alatt tartható
• Elektromos betáplálás: 3×16A nappali, 1×25A vezérelt (éjszakai) áram
• Internet: optikai kábel (Telekom)
Közlekedés és környezet
A ház elhelyezkedése fővárosi viszonylatban kiemelkedően jó közlekedést biztosít:
• Villamos: 42-es
• Busz: 68-as, 268-as
• Metró: M3 (Határ út, KÖKI) 10 percen belül elérhető
• Parkolás: Kispesten közterületen ingyenes
A környék csendes, családbarát, ugyanakkor minden fontos szolgáltatás - bevásárlási lehetőségek, iskola, óvoda, orvosi rendelő - rövid sétával vagy néhány perces utazással elérhető. A kertvárosi nyugalom és a fővárosi infrastruktúra ritka kombinációját kínálja ez az ingatlan.
Ez a ház ideális választás lehet családoknak, akik szeretnének nyugodt környezetben élni, de nem akarnak lemondani a főváros közelségéről és a kiváló közlekedési kapcsolatról. A kétlakásos kialakítás, a tetőtér-beépítés lehetősége és a gazdaságos fűtési rendszer hosszú távon is értékálló befektetést jelent.
A képek között látványtervek is szerepelnek.
Tulajdonságok
Családi ház
Átlagos
Gázkazán
1940
D
Nincs
Vedd fel a kapcsolatot a hirdetővel
Szimeth Norbert Balla Ingatlan - XVIII. kerület, Gyál, Üllő, Vecsés, Péteri Az iroda összes hirdetése
+36 70 383 3
Hitelkalkulátor
Második évtől
559 030 Ft A 13. hónaptól
7,99%
Végig fix Futamidő: 20 év Banki visszahívás
Az OTP Bank munkatársai a neked megfelelő napszakban veszik fel veled a kapcsolatot. A becslés a hirdető által megadott adatokon alapul. A jelen tájékoztatás nem minősül ajánlattételnek és nem teljes körű, az egyes feltételek a hitelbírálat eredményétől függően változhatnak. Kérjük, a részletekről tájékozódj az OTP Bank fiókjaiban vagy az OTP Bank honlapján közzétett vonatkozó Üzletszabályzatokból és Hirdetményekből.
Vedd fel a kapcsolatot a hirdetővel
Szimeth Norbert Balla Ingatlan - XVIII. kerület, Gyál, Üllő, Vecsés, Péteri Az iroda összes hirdetése
+36 70 383 3
Vedd fel a kapcsolatot a hirdetővel
Szimeth Norbert Balla Ingatlan - XVIII. kerület, Gyál, Üllő, Vecsés, Péteri Az iroda összes hirdetése
+36 70 383 3
UI_KIT.CHARACTER_COUNTER__COMPONENT.REMAINING_SPACE__SR_ONLYUI_KIT.CHARACTER_COUNTER__COMPONENT.MAXIMUM_CHARACTER__SR_ONLY
Hasonló eladó ingatlanok Budapest XIX. kerületben
Frissítve: 9 napja
20
139,9 M Ft 777 222 Ft/m²
Eladó családi ház, Budapest XIX. kerület

Frissítve: 14 napja
13
120 M Ft
Eladó házrész, Budapest XIX. kerület, Felső-Kispesten

Frissítve: 3 napja
20
139,9 M Ft 777 222 Ft/m²
Eladó családi ház, Budapest XIX. kerület


Fedezd fel a
hasonló házakat!Még további házak Budapest XIX. kerületben 129,9 M Ft körüli értékben
Tovább a hirdetésekhez Frissítve: 14 napja
18
139,5 M Ft
Eladó családi ház, Budapest XIX. kerület, KÖ-KI közeli utca

Frissítve: 2 napja
20
139,9 M Ft 777 222 Ft/m²
Eladó családi ház, Budapest XIX. kerület

Frissítve: ma
20
139,9 M Ft 777 222 Ft/m²
Eladó családi ház, Budapest XIX. kerület


Töltsd fel hirdetésed ingyenesen!
Egyszerű