+17 fotó
Hirdetéskód: 8932822
Referenciaszám: 11-2963
Frissítve: 2 napja
Budapest XVI. kerület eladó családi ház 2 szobás: 98,5 millió Ft
98,5 millió Ft
1 492 424 Ft/m²
66 m²
781 m²
2 szoba
XVI. Kerület, Rákosszentmihály, 66 m²-es, családi ház, 2 szobás
Rendkívüli lehetőség befektetőknek, családoknak!
HANGULATOS HÁZ • NAGY TELKEN • RÁKOSSZENTMIHÁLY KÖZPONTJÁBAN
Eladóvá vált a XVI. kerület nyugodt, családi házas környezetében, Rákosszentmihály frekventált részén egy közepes állapotú, a századelő stílusjegyeit hordozó családi ház.
Az ingatlan az 1930-as években épült.
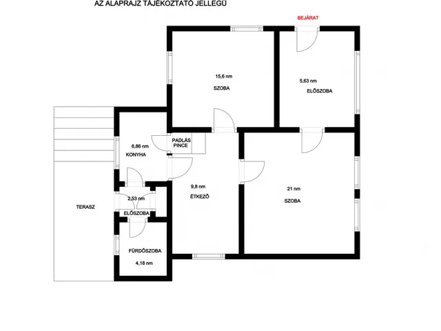
A lakótér: 66 nm.
A telek: 781 nm.
Az ingatlan szerkezetileg jól megépített, masszív, de részben felújításra szorul, körbejárható.
Az eredeti állapot visszaállításával múlt századi hangulatot idéző otthont alakíthatunk ki.
Adottságait tekintve jó alap lehet korszerű modern élettér létrehozásához is.
A ház tovább bővíthető, a telek méretéből eredő beépítési lehetőség (25%) jól kihasználható.
Építési övezet: Lke-1/XVI/Sz3
Jelenleg emésztő van a telken, de könnyen csatornára köthető.
FELÚJÍTÁS:
- 2000-ben teljes nyílászárócsere - 2 rétegű hő- és hangszigetelt
ablakokra
- bejárati és belső fa nyílászárók cseréje
- hajópadló- és burkolatcsere
- 2008-ban külső szigetelés (8 cm)
HÁZ:
- 2 előtér/előszoba
- 2 szoba (16 nm, 21 nm)
- konyha, kamra, padlásfeljáró
- étkező
- fürdő vécével, káddal
- nagy terasz
A belmagasság: 3,2 m.
Pinceszint:
- részben alápincézve, száraz, boltíves pince
A fűtést (radiátor) és a meleg vizet cirkó gázkazán biztosítja.
A szobák tájolása nyugati - délnyugati, ennek és nagy ablakainak köszönhetően világos, napfényes.
KERT:
A fákkal, bokrokkal beültetett hatalmas kerti környezet az új tulajdonos igényei szerint továbbalakítható.
A terasz mellett locsolásra alkalmas ásott kút van. Hátsó részében egy 30 nm-es tárolásra alkalmas faház található.
A kertbe több autóval is be lehet állni, és a ház előtt is lehet parkolni.
INFRASTRUKTÚRA:
A környék csendes, biztonságos, kertvárosi övezet.
Az ingatlan közlekedése kiváló, buszok állnak rendelkezésre, az Örs vezér tér tömegközlekedéssel is kb. 10 perc alatt elérhető.
Gyalogos távolságon belül minden megtalálható, óvoda, bölcsőde, iskola, orvos, gyógyszertár, bank és bevásárlási lehetőségek.
Energetikai tanúsítvány és villamos biztonsági felülvizsgálat rendelkezésre áll.
Az ingatlan jelenleg nem lakott, beköltözés megegyezés szerint.
Amennyiben felkeltette érdeklődését, hívjon bizalommal, akár hétvégén is!
• ASZÓD KÖZPONTJÁBAN • NAGY HÁZ • MŰHELY •
• BEFEKTETŐKNEK • VÁLLALKOZÓKNAK •
Eladóvá vált Aszód családi házas környezetében, központi részen egy részben felújítandó, összközműves, földszintes családi ház.
Az ingatlant az 1950-es években építették.
A lakótér: 100 nm. A telek: 504 nm.
A ház:
- 2 előszoba (új nyílászárókkal)
- 3 szoba
- 2 konyha
- kamra
- fürdő vécével
- terasz (beépített)
- csarnok/műhely/garázs – 70 nm
- kazánház
- pince
Fekvése nyugati.
A fűtést gázkazán, a meleg vizet villanybojler biztosítja.
Áram: rézvezetékek, a műhely áramellátása: 380 V.
Az ingatlan szerkezetileg jól megépített, masszív, száraz, jó állapotú.
A lakás fölött nagy padlástér található, amely beépíthető.
Az elmúlt években az eredeti állapothoz képest tovább bővítették.
Az ingatlan adottságait tekintve jó alap lehet korszerű, modern élettér kialakításához is.
Központi elhelyezkedéséből adódóan alkalmas szolgáltatást nyújtó VÁLLALKOZÁSOK üzemeltetésére is.
A KERT gyümölcsfákkal, bokrokkal beültetett, kerti csapról locsolható.
Az ingatlan közlekedése kiváló, buszok állnak rendelkezésre, és a vasútállomás is kb. 10 perc alatt elérhető.
A közelben megtalálható óvoda, bölcsőde, iskola és bevásárlási lehetőségek.
Amennyiben felkeltette érdeklődését, hívjon bizalommal, akár hétvégén is!
Tulajdonságok
Családi ház
Átlagos
Gázkazán
1935
Nem adta meg a hirdető
Nincs
Vedd fel a kapcsolatot a hirdetővel
Czakó Gabriella Balla Ingatlan - XVI. kerület, Kistarcsa, Csömör, Kerepes, Mogyoród, Gödöllő Az iroda összes hirdetése
+36 70 366 0
Hitelkalkulátor
Második évtől
423 899 Ft A 13. hónaptól
7,99%
Végig fix Futamidő: 20 év Banki visszahívás
Az OTP Bank munkatársai a neked megfelelő napszakban veszik fel veled a kapcsolatot. A becslés a hirdető által megadott adatokon alapul. A jelen tájékoztatás nem minősül ajánlattételnek és nem teljes körű, az egyes feltételek a hitelbírálat eredményétől függően változhatnak. Kérjük, a részletekről tájékozódj az OTP Bank fiókjaiban vagy az OTP Bank honlapján közzétett vonatkozó Üzletszabályzatokból és Hirdetményekből.
Vedd fel a kapcsolatot a hirdetővel
Czakó Gabriella Balla Ingatlan - XVI. kerület, Kistarcsa, Csömör, Kerepes, Mogyoród, Gödöllő Az iroda összes hirdetése
+36 70 366 0
Vedd fel a kapcsolatot a hirdetővel
Czakó Gabriella Balla Ingatlan - XVI. kerület, Kistarcsa, Csömör, Kerepes, Mogyoród, Gödöllő Az iroda összes hirdetése
+36 70 366 0
UI_KIT.CHARACTER_COUNTER__COMPONENT.ACTUAL_CHARACTER__SR_ONLY UI_KIT.CHARACTER_COUNTER__COMPONENT.MAXIMUM_CHARACTER__SR_ONLY
Hasonló eladó ingatlanok Rákosszentmihály városrészben
Frissítve: 3 hónapja
1
98,9 M Ft 1 476 119 Ft/m²
Eladó ikerház, Budapest XVI. kerület, Rákosszentmihály, Mátyás király utca 34
Frissítve: 1 hónapja
13
88,9 M Ft 1 433 871 Ft/m²
Eladó családi ház, Budapest XVI. kerület, Rákosszentmihály
Frissítve: 2 hónapja
1
99 M Ft 1 192 771 Ft/m²
Eladó családi ház, Budapest XVI. kerület, Jenőhalom utca 7

Fedezd fel a
hasonló házakat!Még további házak Budapest XVI. kerületben 98,5 M Ft körüli értékben
Tovább a hirdetésekhez Frissítve: 1 hónapja
17
94,99 M Ft 708 881 Ft/m²
Eladó családi ház, Budapest XVI. kerület, Csömöri út

Frissítve: 1 hónapja
1
92,99 M Ft 1 021 868 Ft/m²
Eladó ikerház, Budapest XVI. kerület, Árpádföld, Cibakháza u
Frissítve: 20 napja
11
90 M Ft 1 071 429 Ft/m²
Eladó családi ház, Budapest XVI. kerület
