+10 fotó
Hirdetéskód: 8980854
Referenciaszám: M327531
Feltöltve: 2 napja
Budapest XVI. kerület eladó családi ház 5 szobás: 253,5 millió Ft
253,5 millió Ft
1,55 millió Ft/m² *
* A m² árat a hirdető adta meg.
164 m²
1075 m²
5 szoba
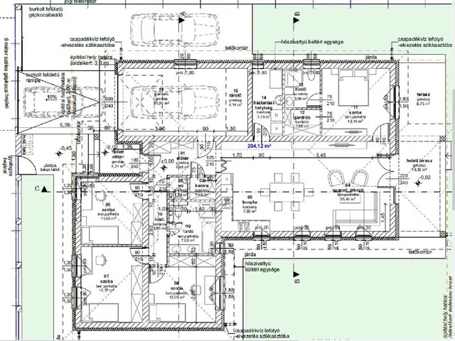
Leírás
Modern, energiatakarékos családi ház eladó Budapest nyugodt kertvárosi részén ? Rákosszentmihályon !
Csendes, rendezett, igényes családi házas övezetben, Rákosszentmihály kedvelt részén kínálunk megvételre egy új építésű, modern kialakítású családi házat, amelyet referenciákkal rendelkező, megbízható kivitelező épít.
Kulcsrakész átadás várhatóan az ősz végén.
Az ingatlan praktikus, családbarát alaprajzzal készül, ahol minden négyzetméter átgondoltan került kialakításra.
Főbb jellemzők :
- 4 szoba
- tágas, világos amerikai konyhás nappali
- külön szülői / vendég háló, saját fürdőszobával, WC-vel és gardróbbal
- praktikus kamra a garázs közelében
- kényelmes garázs, további tárolási lehetőséggel
A nappaliból és a szülői hálóból közvetlen kijárat nyílik a 23 m?-es, részben fedett, nyugati fekvésű teraszra, amely ideális helyszín családi pihenéshez vagy baráti grillezésekhez.
A házhoz közel 800 m?-es zöldterület tartozik, amely bőséges helyet biztosít kertnek, játszótérnek vagy akár medencének is.
Műszaki tartalom :
- 30 cm Porotherm falazat
- 15 cm külső hőszigetelés
- korszerű hőszivattyús fűtésrendszer
- padlófűtés minden helyiségben
- 3×20 A elektromos áramellátás
Nyílászárók és komfort :
- színezett műanyag nyílászárók
- rejtett redőnytok
- elektromos redőny és szúnyogháló előkészítés
Előkészített kényelmi rendszerek :
- riasztórendszer előkészítés
- internet csatlakozási lehetőség
- kapucsengő előkészítés
- kapunyitó automatika kialakításának lehetősége
Az ingatlan ápolást nem igénylő kerítéssel készül, így a karbantartási igény minimális.
Ez a ház tökéletes választás azoknak a családoknak, akik modern, energiatakarékos otthont, nagy kertet és nyugodt kertvárosi környezetet keresnek Rákosszentmihály közkedvelt részén.
Teljes körű ügyintézéssel várjuk! Az OTP Ingatlanpont segítségével kedvező hitel- és finanszírozási lehetőségek, valamint szakértő támogatás áll rendelkezésre a vásárlás teljes folyamatában.
M327531
Tulajdonságok
Családi ház
1
Új építésű
2026
23,1 m²
Nem adta meg a hirdető
Vedd fel a kapcsolatot a hirdetővel

Tamásné Mocsári Ildikó
Budapest XIV. kerület Vezér utca 147 - OTP Ingatlanpont Iroda
Az iroda összes hirdetése +36 70 206 2
Hitelkalkulátor
Második évtől
1 090 948 Ft A 13. hónaptól
7,99% 8,49%
Végig fix Futamidő: 20 év Banki visszahívás
Az OTP Bank munkatársai a neked megfelelő napszakban veszik fel veled a kapcsolatot. A becslés a hirdető által megadott adatokon alapul. A jelen tájékoztatás nem minősül ajánlattételnek és nem teljes körű, az egyes feltételek a hitelbírálat eredményétől függően változhatnak. Kérjük, a részletekről tájékozódj az OTP Bank fiókjaiban vagy az OTP Bank honlapján közzétett vonatkozó Üzletszabályzatokból és Hirdetményekből.
Vedd fel a kapcsolatot a hirdetővel

Tamásné Mocsári Ildikó
Budapest XIV. kerület Vezér utca 147 - OTP Ingatlanpont Iroda
Az iroda összes hirdetése +36 70 206 2
Vedd fel a kapcsolatot a hirdetővel

Tamásné Mocsári Ildikó
Budapest XIV. kerület Vezér utca 147 - OTP Ingatlanpont Iroda
Az iroda összes hirdetése +36 70 206 2
UI_KIT.CHARACTER_COUNTER__COMPONENT.ACTUAL_CHARACTER__SR_ONLY UI_KIT.CHARACTER_COUNTER__COMPONENT.MAXIMUM_CHARACTER__SR_ONLY
Hasonló eladó ingatlanok Rákosszentmihály városrészben
Frissítve: 15 napja
20
254,9 millió Ft 772,4 ezer Ft/m²
Eladó családi ház, Budapest XVI. kerület, Rákosszentmihály
Frissítve: 17 napja
20
249,9 millió Ft 694,2 ezer Ft/m²
Eladó családi ház, Budapest XVI. kerület, Rákosszentmihály

Frissítve: 3 napja
20
255 millió Ft 550,8 ezer Ft/m²
Eladó családi ház, Budapest XVI. kerület, Rákosszentmihály


Fedezd fel a
hasonló házakat!Még további házak Budapest XVI. kerület, Rákosszentmihály városrészben 253,5 M Ft körüli értékben
Tovább a hirdetésekhez Frissítve: 3 napja
10
249,9 millió Ft 833 ezer Ft/m²
Eladó családi ház, Budapest XVI. kerület, Rákosszentmihály

Frissítve: 3 napja
7
230 millió Ft 479,2 ezer Ft/m²
Eladó családi ház, Budapest XVI. kerület, Rákosszentmihály

Frissítve: 9 hónapja
1
259 millió Ft 1,19 millió Ft/m²
Eladó családi ház, Budapest XVI. kerület, Rákosszentmihály
