+17 fotó
Hirdetéskód: 8892225
Referenciaszám: H494083
Feltöltve: 1 napja
Budapest XVI. kerület eladó családi ház 7 szobás: 190 millió Ft
190 millió Ft
950 000 Ft/m²
200 m²
578 m²
7 szoba
Többgenerációs családi ház
Figyelemfelkeltő ajánlat Rákosszentmihály szívében!
Eladó a XVI. kerület Rákosszentmihályi részén, egy csendes mellékutcában található, 3 szintes, 7 szobás családi ház, melyet számtalan lehetőség és kényelmi funkció tesz igazán különlegessé.
Miért pont Rákosszentmihály?
Nyugodt, zöldövezeti környezet: tökéletes választás családoknak, akik a város közelségét és a természet harmóniáját keresik.
Kiváló infrastruktúra: a közelben óvodák, iskolák, bevásárlási lehetőségek és tömegközlekedési kapcsolatok is megtalálhatók.
Az ingatlan főbb jellemzői:
1992-ben épült, téglaépítésű ház, mely teljesen körbejárható, 578 m²-es telekkel.
Többgenerációs kialakítás: a külön bejáratú szintek lehetővé teszik a családtagok kényelmes elszeparálódását.
Bővítési lehetőségek: a tetőtér beépíthető, így akár egy újabb lakás is kialakítható.
Különleges extrák:
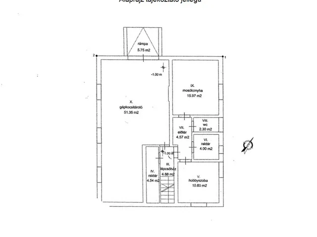
Félszuterén: 51 m²-es garázs, ahol akár 3 autó is kényelmesen parkolhat, plusz mosókonyha, kamra, hobbiszoba, fürdőszoba és WC.
Műhely vagy extra lakrész: A telken egy 60 m²-es műhely található, amely 380V ipari árammal felszerelt – garázsként vagy önálló lakásként is hasznosítható.
Szintenkénti elosztás:
Magasföldszint: nappali, 2 hálószoba, konyha, kamra, étkező, fürdőszoba, külön WC.
Első emelet: nappali, 2 hálószoba, konyha, fürdőszoba és WC.
Modern kényelmi megoldások: fa nyílászárók, légkondicionálás, padlófűtés.
Ne hagyja ki ezt a kivételes lehetőséget! Egy tökéletes otthon Rákosszentmihály szívében, amely egyszerre kínál kényelmet, funkcionalitást és bővítési lehetőségeket. Éljen egy dinamikus, de mégis nyugodt környezetben, ahol minden adott a harmonikus családi élethez!
Érdeklődjön most, nehogy lemaradjon!
Tulajdonságok
Családi ház
3
Jó állapotú
Gázkazán
1992
Nem adta meg a hirdető
Vedd fel a kapcsolatot a hirdetővel
+36 70 465 6
Hitelkalkulátor
Második évtől
817 673 Ft A 13. hónaptól
7,99%
Végig fix Futamidő: 20 év Banki visszahívás
Az OTP Bank munkatársai a neked megfelelő napszakban veszik fel veled a kapcsolatot. A becslés a hirdető által megadott adatokon alapul. A jelen tájékoztatás nem minősül ajánlattételnek és nem teljes körű, az egyes feltételek a hitelbírálat eredményétől függően változhatnak. Kérjük, a részletekről tájékozódj az OTP Bank fiókjaiban vagy az OTP Bank honlapján közzétett vonatkozó Üzletszabályzatokból és Hirdetményekből.
Vedd fel a kapcsolatot a hirdetővel
+36 70 465 6
Vedd fel a kapcsolatot a hirdetővel
+36 70 465 6
UI_KIT.CHARACTER_COUNTER__COMPONENT.ACTUAL_CHARACTER__SR_ONLY UI_KIT.CHARACTER_COUNTER__COMPONENT.MAXIMUM_CHARACTER__SR_ONLY
Hasonló eladó ingatlanok Budapest XVI. kerületben
Frissítve: 27 napja
19
179 M Ft 1 387 597 Ft/m²
Eladó családi ház, Budapest XVI. kerület

Frissítve: 27 napja
10
180 M Ft 1 125 000 Ft/m²
Eladó családi ház, Budapest XVI. kerület, Csömöri út

Frissítve: 15 napja
20
177 M Ft 988 827 Ft/m²
Eladó családi ház, Budapest XVI. kerület


Fedezd fel a
hasonló házakat!Még további házak Budapest XVI. kerületben 190 M Ft körüli értékben
Tovább a hirdetésekhez Frissítve: 21 napja
9
180 M Ft 1 125 000 Ft/m²
Eladó családi ház, Budapest XVI. kerület

Frissítve: 27 napja
10
183,9 M Ft 1 027 374 Ft/m²
Eladó ikerház, Budapest XVI. kerület, Biztató út

Frissítve: 14 napja
20
199 M Ft 708 185 Ft/m²
Eladó családi ház, Budapest XVI. kerület


