+17 fotó
Hirdetéskód: 8838296
Referenciaszám: 25-5702
Frissítve: 1 napja
Budapest XVII. kerület eladó családi ház 4 szobás: 110 millió Ft
110 millió Ft
774 648 Ft/m²
142 m²
311 m²
4 szoba
XVII. Kerület, Csengés utca környéke utca, 142 m²-es, családi ház
FIX 3%-OS HITELRE ÉS CSOK PLUSZRA ALKALMAS! AZONNAL KÖLTÖZHETŐ!
Családosok figyelem! Azonnal költözhető, 4 szobás ikerház Rákoskerten – kiváló ár-érték aránnyal!
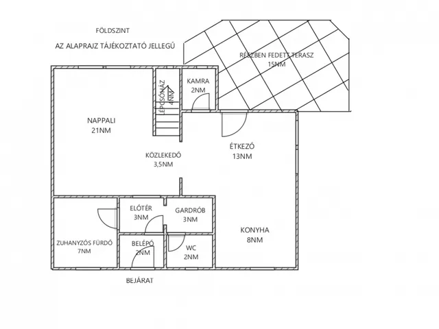
Budapest XVII. kerületének egyik legkedveltebb kertvárosi részén, Rákoskerten kínálunk megvételre egy 1997-ben épült, kétszintes ikerház-felet, amely ideális választás gyermekes családok számára, akik nyugodt környezetben, mégis kiváló infrastruktúrával szeretnének élni.
Az ingatlan 123 nm lakóterű, összesen 142 nm alapterülettel, 1+3 külön nyíló szobával, praktikus, jól működő elosztással.
A 311 nm-es saroktelek, a terasz és az erkély valódi kertvárosi életérzést biztosít – tökéletes hely családi reggelekhez, közös vacsorákhoz, gyerekek számára biztonságos kültéri játékhoz.
Praktikus elrendezés – családi életre tervezve
• Földszinten: előszoba, zuhanyzós fürdő, külön WC, kamra, konyha–étkező rálátás a nappalira, közvetlen kijárattal a 16 nm-es teraszra
• Emeleten: 3 hálószoba, kádas fürdőszoba két mosdóval, külön WC, erkély
• Alápincézett: 1 állásos garázs + tárolás
Műszaki tartalom – költséghatékony fenntartás
• Kondenzációs gázkazán + villany bojler
• Külön mérőórák
• Kiváló állapotú villanyhálózat
• Műanyag nyílászárók, redőny, részben szúnyogháló
• Légkondicionálás az emeleti szobákban
• D–NY-i tájolás → világos, napfényes terek
Elhelyezkedés – amit egy család keres
• Iskola, óvoda, orvosi rendelő, gyógyszertár, üzletek 5–10 perces sétával
• M0-ás körgyűrű 5 perc
• Kiváló közlekedés, gyors városi kapcsolat
• Nyugodt, biztonságos kertvárosi környezet
Miért jó döntés?
Ez az ingatlan nem kompromisszum, hanem okos választás:
jól működő alaprajz
stabil szerkezet
azonnal költözhető állapot
keresett lokáció
kifejezetten jó ár-érték arány a mérethez és felszereltséghez képest
Teljes műszaki dokumentáció megtekinthető.
Ideális családi otthon azoknak, akik hosszú távra, értékálló környezetben gondolkodnak.
Megtekintésért hívjon most!
Tulajdonságok
Családi ház
Átlagos
Gázkazán
1997
Nem adta meg a hirdető
Nincs
Vedd fel a kapcsolatot a hirdetővel
Takács Tünde Balla Ingatlan - X és XVII. kerület, Maglód, Gyömrő, Pécel, Isaszeg, Ecser Az iroda összes hirdetése
+36 70 374 9
Hitelkalkulátor
Második évtől
473 390 Ft A 13. hónaptól
7,99%
Végig fix Futamidő: 20 év Banki visszahívás
Az OTP Bank munkatársai a neked megfelelő napszakban veszik fel veled a kapcsolatot. A becslés a hirdető által megadott adatokon alapul. A jelen tájékoztatás nem minősül ajánlattételnek és nem teljes körű, az egyes feltételek a hitelbírálat eredményétől függően változhatnak. Kérjük, a részletekről tájékozódj az OTP Bank fiókjaiban vagy az OTP Bank honlapján közzétett vonatkozó Üzletszabályzatokból és Hirdetményekből.
Vedd fel a kapcsolatot a hirdetővel
Takács Tünde Balla Ingatlan - X és XVII. kerület, Maglód, Gyömrő, Pécel, Isaszeg, Ecser Az iroda összes hirdetése
+36 70 374 9
Vedd fel a kapcsolatot a hirdetővel
Takács Tünde Balla Ingatlan - X és XVII. kerület, Maglód, Gyömrő, Pécel, Isaszeg, Ecser Az iroda összes hirdetése
+36 70 374 9
UI_KIT.CHARACTER_COUNTER__COMPONENT.REMAINING_SPACE__SR_ONLYUI_KIT.CHARACTER_COUNTER__COMPONENT.MAXIMUM_CHARACTER__SR_ONLY
Hasonló eladó ingatlanok Budapest XVII. kerületben
Frissítve: ma
20
110 M Ft 728 477 Ft/m²
Eladó családi ház, Budapest XVII. kerület

Frissítve: ma
16
119,9 M Ft 689 080 Ft/m²
Eladó családi ház, Budapest XVII. kerület

Frissítve: 16 napja
20
119,9 M Ft 689 080 Ft/m²
Eladó családi ház, Budapest XVII. kerület


Fedezd fel a
hasonló házakat!Még további házak Budapest XVII. kerületben 110 M Ft körüli értékben
Tovább a hirdetésekhez Frissítve: 1 éve
1
110 M Ft 426 357 Ft/m²
Eladó családi ház, Budapest XVII. kerület
Frissítve: 2 napja
20
105 M Ft 905 172 Ft/m²
Eladó családi ház, Budapest XVII. kerület, Pesti út közeli utca

Frissítve: 19 napja
16
119,9 M Ft 689 080 Ft/m²
Eladó családi ház, Budapest XVII. kerület

