+17 fotó
Hirdetéskód: 8852517
Referenciaszám: HZ046088-5058193
Frissítve: ma
Budapest XVII. kerület eladó családi ház 5 szobás: 134,9 millió Ft
134,9 millió Ft
899 333 Ft/m²
150 m²
678 m²
5 szoba
Eladó ház, Budapest 17. ker.
Eladó igényesen felújított, kétgenerációs családi ház Rákoskerten, termő gyümölcsfákkal hívogató tágas kerttel
Budapest XVII. kerületének legkeresettebb részén, Rákoskerten, aszfaltozott mellékutcában kínálok megvételre egy nettó 150 m² (bruttó 180 m²-es), akár kétgenerációs együttélésre is alkalmas, pincével és beépített tetőtérrel rendelkező családi házat, parkosított közel 680 m²-es kerttel.
Az ingatlan az 1970-es években téglából épült, majd 2020-tól folyamatos, teljes körű felújításon esett át.
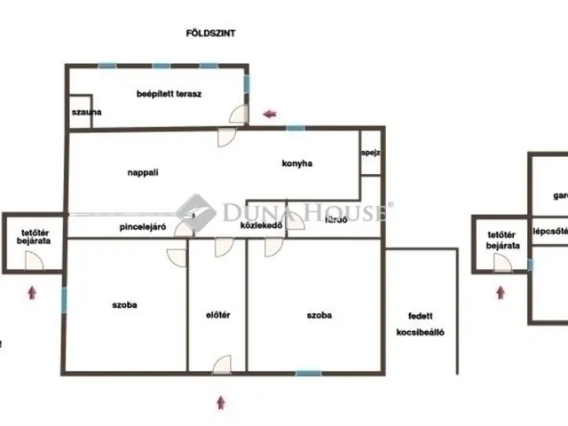
Kialakítás:
Földszint: nappali, konyha, 3 szoba, fürdőszoba + WC, közlekedő, beépített terasz szaunával
Beépített tetőtér: nappali, konyha, szoba, fürdőszoba + WC, közlekedő
Kert: parkosított kert tárolókkal, kutya kennellel, fedett kocsibeállóval
Pince + padlás: tárolási lehetőségek
Felújítás és felszereltség:
Teljes tetőszerkezet és a hideg-meleg burkolatok cseréje
10 cm külső hőszigetelés, tetőtér oldalán dupla gipszkartonos kialakítás és 25 cm, födémnél 30 cm szigetelés
Víz-, elektromos- és szennyvízhálózat teljesen felújítva
Új központi fűtésrendszer gázkazánnal, + kandalló
Korszerű műanyag nyílászárók szúnyoghálóval ellátva
Gépesített konyha, kamra
Szintenként hűtő-fűtő klíma
Elhelyezkedés:
A környék infrastruktúrája kiváló:
Néhány perc sétával elérhető iskola, óvoda, posta, orvosi rendelő és kisebb boltok
BKK buszmegálló és Rákoskert vasútállomás néhány perc sétára található,
Autóval 5 perc a maglódi Auchan bevásárlóközpont, az M0-s csomópontja
Ez a ház tökéletes választás azok számára, akik igényes, kétgenerációs otthont keresnek csendes, kertvárosi környezetben, de mégis kiváló közlekedési és infrastruktúra kapcsolattal. A ház minden részlete a minőséget, a kényelmet és a harmóniát szolgálja. Megegyezés alapján akár rövid határidővel költözhető.
Amennyiben felkeltettem érdeklődését, keressen bizalommal további információért a hét bármely napján!
A Duna House teljes kínálatával állok rendelkezésére!
Ingatlan eladás és vétel teljes körű ügyintézése, megbízható ügyvédi háttér biztosítása, ingyenes ingatlan tanácsadás, teljes körű és gyors bankfüggetlen hitelügyintézés, biztosítás, energetikai tanúsítvány akár hozott ingatlanra is az ország piacvezető ingatlanközvetítő hálózatának támogatásával!
Érd.: Janik Zsolt +36704279898
Referencia szám: HZ046088
Tulajdonságok
Családi ház
Jó állapotú
Gázkazán
1970
Nem adta meg a hirdető
Vedd fel a kapcsolatot a hirdetővel
+36 1 690 05
Hitelkalkulátor
Második évtől
580 548 Ft A 13. hónaptól
7,99%
Végig fix Futamidő: 20 év Banki visszahívás
Az OTP Bank munkatársai a neked megfelelő napszakban veszik fel veled a kapcsolatot. A becslés a hirdető által megadott adatokon alapul. A jelen tájékoztatás nem minősül ajánlattételnek és nem teljes körű, az egyes feltételek a hitelbírálat eredményétől függően változhatnak. Kérjük, a részletekről tájékozódj az OTP Bank fiókjaiban vagy az OTP Bank honlapján közzétett vonatkozó Üzletszabályzatokból és Hirdetményekből.
Vedd fel a kapcsolatot a hirdetővel
+36 1 690 05
Vedd fel a kapcsolatot a hirdetővel
+36 1 690 05
UI_KIT.CHARACTER_COUNTER__COMPONENT.REMAINING_SPACE__SR_ONLYUI_KIT.CHARACTER_COUNTER__COMPONENT.MAXIMUM_CHARACTER__SR_ONLY
Hasonló eladó ingatlanok Budapest XVII. kerületben
Frissítve: 24 napja
20
135 M Ft 771 429 Ft/m²
Eladó családi ház, Budapest XVII. kerület, Rózsaszál utca

Frissítve: 9 napja
19
136,9 M Ft 760 556 Ft/m²
Eladó családi ház, Budapest XVII. kerület
Frissítve: 13 napja
4
139 M Ft 1 674 699 Ft/m²
Eladó ikerház, Budapest XVII. kerület


Fedezd fel a
hasonló házakat!Még további házak Budapest XVII. kerületben 134,9 M Ft körüli értékben
Tovább a hirdetésekhez Frissítve: 18 napja
7
145 M Ft 1 082 090 Ft/m²
Eladó családi ház, Budapest XVII. kerület

Frissítve: ma
20
139 M Ft 534 615 Ft/m²
Eladó ikerház, Budapest XVII. kerület, Búbosbanka utca

Frissítve: 13 napja
4
139 M Ft 1 674 699 Ft/m²
Eladó ikerház, Budapest XVII. kerület

