+17 fotó
Hirdetéskód: 8863698
Referenciaszám: HZ046088-5130136
Frissítve: ma
Budapest XVII. kerület eladó családi ház 5 szobás: 125 millió Ft
125 millió Ft
833,3 ezer Ft/m²
150 m²
678 m²
5 szoba
Eladó ház, Budapest 17. ker.
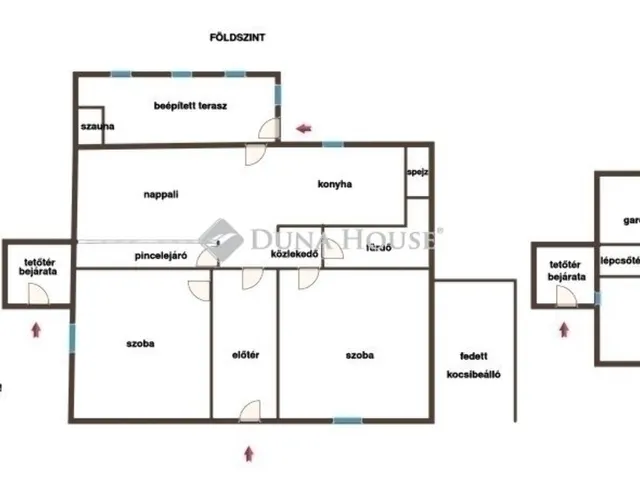
Eladó igényesen felújított, kétgenerációs családi ház Rákoskerten, termő gyümölcsfákkal hívogató tágas kerttelBudapest XVII. kerületének legkeresettebb részén, Rákoskerten, aszfaltozott mellékutcában kínálok megvételre egy nettó 150 m² (bruttó 180 m²-es), akár kétgenerációs együttélésre is alkalmas, pincével és beépített tetőtérrel rendelkező családi házat, parkosított közel 680 m²-es kerttel.Az ingatlan az 1970-es években téglából épült, majd 2020-tól folyamatos, teljes körű felújításon esett át. Kialakítás: Földszint: nappali, konyha, 3 szoba, fürdőszoba + WC, közlekedő, beépített terasz szaunával Beépített tetőtér: nappali, konyha, szoba, fürdőszoba + WC, közlekedő Kert: parkosított kert tárolókkal, kutya kennellel, fedett kocsibeállóval Pince + padlás: tárolási lehetőségekFelújítás és felszereltség: Teljes tetőszerkezet és a hideg-meleg burkolatok cseréje 10 cm külső hőszigetelés, tetőtér oldalán dupla gipszkartonos kialakítás és 25 cm, födémnél 30 cm szigetelés Víz-, elektromos- és szennyvízhálózat teljesen felújítva Új központi fűtésrendszer gázkazánnal, + kandalló Korszerű műanyag nyílászárók szúnyoghálóval ellátva Gépesített konyha, kamra Szintenként hűtő-fűtő klíma Elhelyezkedés:A környék infrastruktúrája kiváló: Néhány perc sétával elérhető iskola, óvoda, posta, orvosi rendelő és kisebb boltok BKK buszmegálló és Rákoskert vasútállomás néhány perc sétára található, Autóval 5 perc a maglódi Auchan bevásárlóközpont, az M0-s csomópontjaEz a ház tökéletes választás azok számára, akik igényes, kétgenerációs otthont keresnek csendes, kertvárosi környezetben, de mégis kiváló közlekedési és infrastruktúra kapcsolattal. A ház minden részlete a minőséget, a kényelmet és a harmóniát szolgálja. Megegyezés alapján akár rövid határidővel költözhető.Amennyiben felkeltettem érdeklődését, keressen bizalommal további információért a hét bármely napján! A Duna House teljes kínálatával állok rendelkezésére!Ingatlan eladás és vétel teljes körű ügyintézése, megbízható ügyvédi háttér biztosítása, ingyenes ingatlan tanácsadás, teljes körű és gyors bankfüggetlen hitelügyintézés, biztosítás, energetikai tanúsítvány akár hozott ingatlanra is az ország piacvezető ingatlanközvetítő hálózatának támogatásával!
Az energetikai tanúsítvány készítése folyamatban van, amint rendelkezésre áll, úgy azzal a hirdetés frissítésre kerül.
Keressen bizalommal schaffer.janos@dh.hu
06-20/5988-365
Referencia szám: HZ046088-ZE
Tulajdonságok
Családi ház
Jó állapotú
Gázkazán
1970
Nem adta meg a hirdető
Vedd fel a kapcsolatot a hirdetővel

+36 29 999 8
Hitelkalkulátor
Második évtől
537 943 Ft A 13. hónaptól
7,99%
Végig fix Futamidő: 20 év Banki visszahívás
Az OTP Bank munkatársai a neked megfelelő napszakban veszik fel veled a kapcsolatot. A becslés a hirdető által megadott adatokon alapul. A jelen tájékoztatás nem minősül ajánlattételnek és nem teljes körű, az egyes feltételek a hitelbírálat eredményétől függően változhatnak. Kérjük, a részletekről tájékozódj az OTP Bank fiókjaiban vagy az OTP Bank honlapján közzétett vonatkozó Üzletszabályzatokból és Hirdetményekből.
Vedd fel a kapcsolatot a hirdetővel

+36 29 999 8
Vedd fel a kapcsolatot a hirdetővel

+36 29 999 8
UI_KIT.CHARACTER_COUNTER__COMPONENT.ACTUAL_CHARACTER__SR_ONLY UI_KIT.CHARACTER_COUNTER__COMPONENT.MAXIMUM_CHARACTER__SR_ONLY
Hasonló eladó ingatlanok Budapest XVII. kerületben
Frissítve: 2 napja
19
136,9 millió Ft 760,6 ezer Ft/m²
Eladó családi ház, Budapest XVII. kerület
Feltöltve: 1 éve
1
120 millió Ft 736,2 ezer Ft/m²
Eladó családi ház, Budapest XVII. kerület
Frissítve: 1 hónapja
16
134,99 millió Ft 1,35 millió Ft/m²
Eladó ikerház, Budapest XVII. kerület


Fedezd fel a
hasonló házakat!Még további házak Budapest XVII. kerületben 125 M Ft körüli értékben
Tovább a hirdetésekhez Frissítve: 1 hónapja
16
134,99 millió Ft 1,35 millió Ft/m²
Eladó ikerház, Budapest XVII. kerület

Frissítve: 26 napja
13
129 millió Ft 921,4 ezer Ft/m²
Eladó családi ház, Budapest XVII. kerület, Zrínyi utca

Frissítve: 26 napja
20
125 millió Ft 833,3 ezer Ft/m²
Eladó családi ház, Budapest XVII. kerület

