+17 fotó
Hirdetéskód: 8818374
Referenciaszám: 42253
Feltöltve: 6 napja
Budapest XVIII. kerület eladó családi ház 10+1 fél szobás: 234,5 millió Ft
234,5 millió Ft
808 621 Ft/m²
290 m²
750 m²
10+1 fél szoba
Leírás
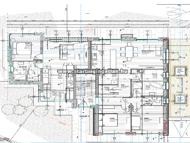
Hivatkozási szám: E-XVIII-10-480 Azonosító:E-XVIII-10-480Eladó a XVIII. kerület kedvelt, kertvárosias Almáskerti részén, az Alacskai úton egy 750 m²-es telken álló, 290 m²-es szerkezetkész ikerház, amely három lakás kialakításával készült. A hatalmas üvegfelületek, a modern építészeti megoldások és a kivételes térkapcsolatok egyedülálló lehetőséget kínálnak a jövő tulajdonosának.Az ingatlan 50 -os készültségi fokon áll, így a belső terek kialakítása még teljes mértékben az új tulajdonos igényeire szabható. Egy fontos előny azonban már biztos: a komplett tervezési és engedélyeztetési folyamat lezárult, így Önnek már nem kell időt, energiát és jelentős költségeket fordítania ezekre – a projekt azonnal és gördülékenyen folytatható.A ház összesen 10 és fél szobát, 4 fürdőszobát és egy 140 m²-es pincében elhelyezett, 3 autó befogadására alkalmas teremgarázst kínál, melyhez tárolók és a gépészet is tartozik. A földszinten egy külön bejáratú, belső kétszintes 87 m²-es lakás található. A másik két, összesen 203 m²-es lakóegység szintén külön bejárattal rendelkezik: egy 97,7 m²-es földszinti lakás, illetve egy 93,2 m²-es, felső szinti lakás, amelyet egy 12 m²-es galéria és egy impozáns üvegfal tesz igazán modernné és világossá.A tervezett gépészeti megoldások a jövőbe mutatnak: hőszivattyú-előkészítés, valamint a lapostetőn rejtett napelem-előkészítés biztosítják a hosszú távú fenntarthatóságot és az energiahatékonyságot. A korszerű, letisztult építészeti forma és a hatalmas üvegfelületek garantálják a modern megjelenést és a természetes fényáradatot.Elhelyezkedése kitűnő: csendes, nyugodt kertvárosi környezetben található, ugyanakkor egy folyamatosan fejlődő, keresett városrészben.Azon kedves ügyfelek, akik általunk találják meg leendő otthonukat, az ügyvédünk által szerkesztett adásvételi szerződés díjából kedvezményben részesülnek. Eladná ingatlanát? Bízza ránk! Nálunk az értékesítés átlátható, egyszerű és biztonságos folyamat. A vételt és az eladást egy kézben tartjuk - így Önnek csak a sikeres üzletet kell ünnepelnie. Hívjon minket még ma, és ingyenesen felmérjük ingatlana piaci értékét! Miért válasszon minket? Mert: Gyors értékesítés, Széles vevőkör, Tapasztalt értékesítők, Modern, kiemelt online megjelenés, Rugalmas jutalék, Teljes körű ügyintézés az első lépéstől a birtokbaadásig. Hívjon most, vagy Írjon üzenetet még ma, és indítsuk el az értékesítést! Mobil: +36-20-852-5207 További ajánlataim: startingingatlan.hu/ertekesitoink/206
Tulajdonságok
Családi ház
Új építésű
Nem adta meg a hirdető
Vedd fel a kapcsolatot a hirdetővel
+36 20 852 5
Hitelkalkulátor
Második évtől
1 009 181 Ft A 13. hónaptól
7,99% 8,49%
Végig fix Futamidő: 20 év Banki visszahívás
Az OTP Bank munkatársai a neked megfelelő napszakban veszik fel veled a kapcsolatot. A becslés a hirdető által megadott adatokon alapul. A jelen tájékoztatás nem minősül ajánlattételnek és nem teljes körű, az egyes feltételek a hitelbírálat eredményétől függően változhatnak. Kérjük, a részletekről tájékozódj az OTP Bank fiókjaiban vagy az OTP Bank honlapján közzétett vonatkozó Üzletszabályzatokból és Hirdetményekből.
Vedd fel a kapcsolatot a hirdetővel
+36 20 852 5
Vedd fel a kapcsolatot a hirdetővel
+36 20 852 5
UI_KIT.CHARACTER_COUNTER__COMPONENT.REMAINING_SPACE__SR_ONLYUI_KIT.CHARACTER_COUNTER__COMPONENT.MAXIMUM_CHARACTER__SR_ONLY
Hasonló eladó ingatlanok Almáskert városrészben
Frissítve: 6 napja
20
249 M Ft 1 518 293 Ft/m²
Eladó ikerház, Budapest XVIII. kerület, Almáskert

Frissítve: 9 napja
20
249 M Ft 1 518 293 Ft/m²
Eladó ikerház, Budapest XVIII. kerület, Almáskert

Frissítve: 17 napja
16
234,5 M Ft 808 621 Ft/m²
Eladó családi ház, Budapest XVIII. kerület, Almáskert


Fedezd fel a
hasonló házakat!Még további házak Budapest XVIII. kerületben 234,5 M Ft körüli értékben
Tovább a hirdetésekhez Frissítve: ma
16
234,5 M Ft 808 621 Ft/m²
Eladó családi ház, Budapest XVIII. kerület, Almáskert

Frissítve: ma
20
220 M Ft 1 100 000 Ft/m²
Eladó családi ház, Budapest XVIII. kerület, Ganzkertváros

Frissítve: 20 napja
19
215,84 M Ft 710 000 Ft/m²
Eladó családi ház, Budapest XVIII. kerület


Töltsd fel hirdetésed ingyenesen!
Egyszerű