

+11 fotó
Hirdetéskód: 8500847
Referenciaszám: HZ067330-4826287
Frissítve: ma
Budapest XVIII. kerület eladó családi ház 4 szobás: 79 millió Ft
79 millió Ft
897 727 Ft/m²
88 m²
710 m²
4 szoba
Eladó ház, Budapest 18. ker.
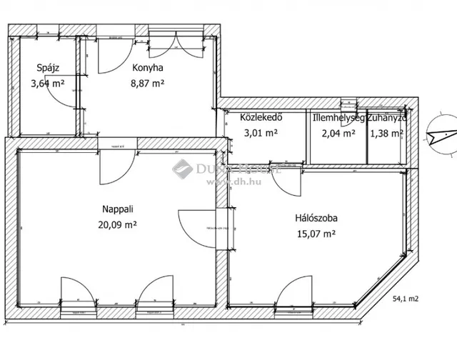
Eladó a 18. kerület közkedvelt részén, nyugodt, rendezett környezetben, egy 54 nm-es, és egy 33nm-es, két generációnak kiválóan alkalmas családi házak, 710 nm-es telken!Mindkét ház két szobás, és összkomfortos.A nagyobbik ingatlan felújított, a tetőre 5,8 KW 20 panel napelem került felszerelésre, ami mindkét otthont ellátja energiával.A kisebbik ingatlan felújítandó, alatta pince található.A kert kiválóan alkalmas baráti összejövetelekre, ásott kút, szaletli, sütögető, és egy kis játszótér szolgálja kényelmünket.Ha felkeltette érdeklődését ez a kiváló paraméterekkel rendelkező ingatlan, további kérdéseivel, megtekintésért kérem hívjon, akár hétvégén is!
Referencia szám: HZ067330
Tulajdonságok
Családi ház
Jó állapotú
Elektromos
1945
Nem adta meg a hirdető
Vedd fel a kapcsolatot a hirdetővel
+36 37 999 3
Hitelkalkulátor
Második évtől
339 980 Ft A 13. hónaptól
7,99%
Végig fix Futamidő: 20 év Banki visszahívás
Az OTP Bank munkatársai a neked megfelelő napszakban veszik fel veled a kapcsolatot. A becslés a hirdető által megadott adatokon alapul. A jelen tájékoztatás nem minősül ajánlattételnek és nem teljes körű, az egyes feltételek a hitelbírálat eredményétől függően változhatnak. Kérjük, a részletekről tájékozódj az OTP Bank fiókjaiban vagy az OTP Bank honlapján közzétett vonatkozó Üzletszabályzatokból és Hirdetményekből.
Vedd fel a kapcsolatot a hirdetővel
+36 37 999 3
Vedd fel a kapcsolatot a hirdetővel
+36 37 999 3
UI_KIT.CHARACTER_COUNTER__COMPONENT.REMAINING_SPACE__SR_ONLYUI_KIT.CHARACTER_COUNTER__COMPONENT.MAXIMUM_CHARACTER__SR_ONLY
Hasonló eladó ingatlanok Budapest XVIII. kerületben
Frissítve: 12 napja

13
79 M Ft 897 727 Ft/m²
Eladó családi ház, Budapest XVIII. kerület, Brigád utca

Frissítve: 18 napja

13
79 M Ft 897 727 Ft/m²
Eladó családi ház, Budapest XVIII. kerület

Frissítve: ma

12
79 M Ft 897 727 Ft/m²
Eladó családi ház, Budapest XVIII. kerület


Fedezd fel a
hasonló házakat!Még további házak Budapest XVIII. kerületben 79 M Ft körüli értékben
Tovább a hirdetésekhez Frissítve: 11 napja

13
79 M Ft 897 727 Ft/m²
Eladó családi ház, Budapest XVIII. kerület

Frissítve: 18 napja

20
82,9 M Ft 400 483 Ft/m²
Eladó családi ház, Budapest XVIII. kerület

Frissítve: 17 napja

12
79 M Ft 897 727 Ft/m²
Eladó családi ház, Budapest XVIII. kerület


Töltsd fel hirdetésed ingyenesen!
Egyszerű