+9 fotó
Hirdetéskód: 8765776
Referenciaszám: HZ026669-5071812
Frissítve: ma
Budapest XVIII. kerület eladó családi ház 5 szobás: 165 millió Ft
165 millió Ft
1 018 519 Ft/m²
162 m²
616 m²
5 szoba
Eladó ház, Budapest 18. ker.
18. kerületben két szintes új építésű családi ház eladó!
Budapest 18. kerület Kossuth Ferenc Telep városrészén, csendes mellékutcában, 162 nm-es új építésű családi ház hőszivattyús fűtéssel, 616 nm-es saját telken.
A családi otthon magas műszaki tartalommal épül, várható befejezés: 2026. I. NEGYEDÉV.
Megbízható építtető, a környéken is több referencia házzal rendelkezik.
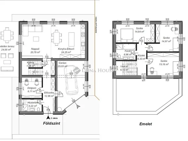
A földszinti szintre belépve tágas közlekedőből jutunk a 45 nm-es amerikai konyha nappaliba, mely a családi élet színtere lehet, ezenkívül, dolgozószoba, háztartási helyiség, tároló kerül kialakításra.
A nappaliból nyílik majd egy 24 nm es fedett terasz.
A földszinti szint 96 nm az emelti szint 64 nm-es.
A garázs 25 nm-es alapterülettel fog rendelkezni.
Az emeletre kényelmes lépcsőn jutunk fel, három teljes értékű szoba, fürdő szoba+wc várja új lakóit. A szobák méretei: 14,8 nm, 14,8 nm. 15,1 nm.
Az építkezés olyan fázisban van, hogy még egyedi megoldások is kivitelezhetőek.
Főbb műszaki tartalom:
- 30 cm-es Porotherm főfalak és 10 cm-es Porotherm válaszfalak
- 10 cm-es homlokzati szigetelés,
- a padló 12 cm lépésálló hő és hangszigetelő anyagból és terv szerinti vastagságú aljzatbeton rétegből áll,
- hőszivattyús fűtés, akár padlófűtéssel, akár radiátoros fűtéssel,
- a hálószobában és a nappaliban klíma előkészítés készül,
- a tető szigetelt lapostető, felár ellenében sátortető kérhető,
- a leendő épület elektromos kiszolgálása, 3x16 A ellátással történik,
- külső nyílászárók: 6 légkamrás ablakok, kívül belül fehér színű, műanyagból készülnek,
- felár ellenében redőny ész szúnyogháló beépíthető.
- beltéri ajtók 50.000 Ft / db árig
- belső felületképzések: vakolat felületek kétszeri gletteléssel, és 2 réteg fehér falfestékkel kezelve kerülnek kialakításra, színes festés lehetséges,
- hideg- és melegburkolatok 5.000 Ft / nm árig.
Komoly érdeklődés esetén a MŰSZAKI TARTALOM MEGTEKINTHETŐ!
Az infrastruktúra kivételes, séta távolságra bölcsőde, óvoda, általános iskola, játszótér, orvosi rendelő, posta, bevásárlási lehetőségek, pékségek.
Közelben buszmegálló, gépkocsival az M0, M4, M5 pár perc alatt elérhető.
A Duna House teljes kínálatával kapcsolatban forduljon hozzám bizalommal.
Hitel ügyintézés garantáltan a legjobb feltételekkel és a leggyorsabban.
Eladás és vétel teljes körű ügyintézése, ingyenes tanácsadás, értékbecslés, megbízható ügyvédi háttér biztosítása!
Várom megtisztelő hívását a hét minden napján.
A Duna House teljes kínálatával kapcsolatban forduljanak hozzám bizalommal!
Bankfüggetlen pénzügyi szakembereink tanácsadással, ügyintézéssel tudják segíteni Önöket álmaik, céljaik megvalósításában!
Vegye igénybe díjmentes konzultációinkat!
https://www.facebook.com/otthonkonnyeden
Referencia szám: HZ026669
Tulajdonságok
Családi ház
Új építésű
Hőszivattyú
2025
Nem adta meg a hirdető
Vedd fel a kapcsolatot a hirdetővel
+36 1 690 03
Hitelkalkulátor
Második évtől
710 085 Ft A 13. hónaptól
7,99% 8,49%
Végig fix Futamidő: 20 év Banki visszahívás
Az OTP Bank munkatársai a neked megfelelő napszakban veszik fel veled a kapcsolatot. A becslés a hirdető által megadott adatokon alapul. A jelen tájékoztatás nem minősül ajánlattételnek és nem teljes körű, az egyes feltételek a hitelbírálat eredményétől függően változhatnak. Kérjük, a részletekről tájékozódj az OTP Bank fiókjaiban vagy az OTP Bank honlapján közzétett vonatkozó Üzletszabályzatokból és Hirdetményekből.
Vedd fel a kapcsolatot a hirdetővel
+36 1 690 03
Vedd fel a kapcsolatot a hirdetővel
+36 1 690 03
UI_KIT.CHARACTER_COUNTER__COMPONENT.REMAINING_SPACE__SR_ONLYUI_KIT.CHARACTER_COUNTER__COMPONENT.MAXIMUM_CHARACTER__SR_ONLY
Hasonló eladó ingatlanok Budapest XVIII. kerületben
Frissítve: 27 napja
20
150 M Ft 707 547 Ft/m²
Eladó ikerház, Budapest XVIII. kerület

Frissítve: 22 napja
20
154,9 M Ft 900 581 Ft/m²
Eladó ikerház, Budapest XVIII. kerület
Frissítve: 27 napja
20
160 M Ft 727 273 Ft/m²
Eladó családi ház, Budapest XVIII. kerület, Szurmay tábornok utca


Fedezd fel a
hasonló házakat!Még további házak Budapest XVIII. kerületben 165 M Ft körüli értékben
Tovább a hirdetésekhez Frissítve: 27 napja
20
150 M Ft 707 547 Ft/m²
Eladó ikerház, Budapest XVIII. kerület

Frissítve: 6 napja
20
162 M Ft 830 769 Ft/m²
Eladó családi ház, Budapest XVIII. kerület

Frissítve: 22 napja
15
168 M Ft 913 043 Ft/m²
Eladó családi ház, Budapest XVIII. kerület
