Hirdetéskód: 8769320
Referenciaszám: HZ081612-5073502
Frissítve: ma
Budapest XVIII. kerület eladó családi ház 4 szobás: 159,9 millió Ft
159,9 millió Ft
975 000 Ft/m²
164 m²
500 m²
4 szoba
Eladó ház, Budapest 18. ker.
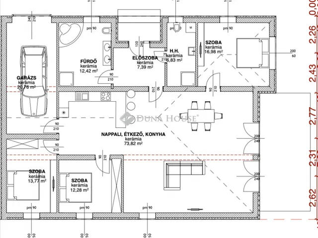
18.kerület legkedveltebb részén AlmáskertbenAlmáskertben modern környezetben eladó új építésű ikerházfél.A kivitelező sok éves múlttal és rengeteg elégedett ügyféllel rendelkezik, referenciák akár itt a lakóparkban is megtekinthetőek.164,25 négyzetméter hasznos lakótérrel rendelkezik, mely egy 500 négyzetméteres telken fekszik. Nappali+3hálószobával rendelkezik, a szobák minimum 12 négyzetméteresek. A földszinten elhelyezkedő 73négyzetméteres nappali+amerikai konyha tágas életteret biztosít, melyből egy csodás privát teraszon keresztül juthatunk ki a saját privát kertünkbe.Autóval garázsban és az udvaron is lehet parkolni.Műszaki adatok:-30-as Prototherm tégla falazat-15 cm-es homlokzati szigetelés-29 cm-es szigetelés az aljzat felől-35 cm-es szigetelés a födém felől-3 rétegű műanyag nyílászárók, fehér színnel-a tető szerkezete fafödém cserépfedéssel-elektromos garázskapu fehér színnel-elektromos kertikapu-Hőszivattyús fűtés, padlófűtéssel-1db hűtő-fűtő klíma-mosókonyha-riasztó és kamerarendszer-térkövezett autóbeállóBurkolatok/beltéri ajtók/szaniterek még választhatóak.A HÁZAK CSAK GARÁZZSAL ÉRINTKEZNEK!A lakópark teljesen új modern környezet, összetartó közösség jellemzi. Közlekedést tekintve autóval a Gyorsforgalmi út, Üllői út, Gyömrői út az M0-ás, M5-ös és a 4-es út mind-mind maximum 5 perc alatt megközelíthető.Tömegközlekedés 3 perc sétára, ahonnan a buszok Kőbánya Kispest vasútállomásig, illetve Határ úti metrómegálló, Ferihegyi vasútállomás is megközelíthető. 10 perc busz távolságra Ferihegyi vasútállomás, melyről a Nyugati pályaudvarig közlekedhetünk. Séta távolságra: Gyógyszertár, Spar, Iskola, Óvoda, PostaFelkeltette érdeklődését keressen bizalommal a hét bármely napján!
Referencia szám: HZ081612
Tulajdonságok
Családi ház
Új építésű
Hőszivattyú
2026
Nem adta meg a hirdető
Vedd fel a kapcsolatot a hirdetővel
+36 37 999 3
Hitelkalkulátor
Második évtől
688 137 Ft A 13. hónaptól
7,99% 8,49%
Végig fix Futamidő: 20 év Banki visszahívás
Az OTP Bank munkatársai a neked megfelelő napszakban veszik fel veled a kapcsolatot. A becslés a hirdető által megadott adatokon alapul. A jelen tájékoztatás nem minősül ajánlattételnek és nem teljes körű, az egyes feltételek a hitelbírálat eredményétől függően változhatnak. Kérjük, a részletekről tájékozódj az OTP Bank fiókjaiban vagy az OTP Bank honlapján közzétett vonatkozó Üzletszabályzatokból és Hirdetményekből.
Vedd fel a kapcsolatot a hirdetővel
+36 37 999 3
Vedd fel a kapcsolatot a hirdetővel
+36 37 999 3
UI_KIT.CHARACTER_COUNTER__COMPONENT.REMAINING_SPACE__SR_ONLYUI_KIT.CHARACTER_COUNTER__COMPONENT.MAXIMUM_CHARACTER__SR_ONLY
Hasonló eladó ingatlanok Budapest XVIII. kerületben
Frissítve: 28 napja
20
173 M Ft 1 351 563 Ft/m²
Eladó családi ház, Budapest XVIII. kerület

Frissítve: 6 napja
20
159 M Ft 1 325 000 Ft/m²
Eladó családi ház, Budapest XVIII. kerület

Frissítve: 15 napja
20
150 M Ft 707 547 Ft/m²
Eladó ikerház, Budapest XVIII. kerület


Fedezd fel a
hasonló házakat!Még további házak Budapest XVIII. kerületben 159,9 M Ft körüli értékben
Tovább a hirdetésekhez Frissítve: 9 napja
20
169,9 M Ft
Eladó családi ház, Budapest XVIII. kerület, Darányi Ignác utca

Frissítve: 15 napja
20
173 M Ft 1 351 563 Ft/m²
Eladó családi ház, Budapest XVIII. kerület

Frissítve: 15 napja
20
162 M Ft 830 343 Ft/m²
Eladó családi ház, Budapest XVIII. kerület


Töltsd fel hirdetésed ingyenesen!
Egyszerű