+14 fotó
Hirdetéskód: 8838914
Referenciaszám: M318635-5115631
Feltöltve: 2 napja
Budapest XVIII. kerület eladó családi ház 3+1 fél szobás: 78 millió Ft
78 millió Ft
709 091 Ft/m²
110 m²
412 m²
3+1 fél szoba
Eladó Ház, Budapest 18. ker.
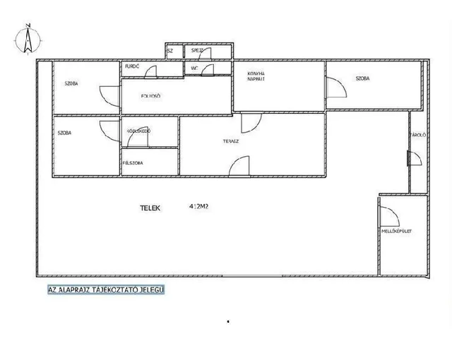
Eladó Budapest XVIII. kerületének kedvelt, családbarát részén, Pestszentlőrincen egy 110 m2-es, részlegesen felújított családi ház 412 m2-es telekkel.
Az ingatlan tágas és praktikus elrendezésű: három szoba + fél szoba, amerikai konyhás nappali, fürdőszoba, külön WC és spejz található benne. A 16 m2-es fedett terasz tökéletes helyszín közös családi pihenésekhez és kerti beszélgetésekhez.
A ház komfortjáról három hűtő-fűtő klíma gondoskodik, illetve H-tarifás besorolása miatt kedvező rezsiköltséget biztosít. A telken nyílt kocsibeálló áll rendelkezésre, így az autóval való beállás megoldott.
Elhelyezkedése kifejezetten előnyös: rövid sétával több buszjárat is elérhető, amelyek négy irányba biztosítanak gyors közlekedést , Pesterzsébet, Rákoskeresztúr, Kőbánya-Kispest és Ferihegy,Vecsés felé. A környék csendes, mégis központi, teljes infrastruktúrával: óvodák, iskolák, boltok, szolgáltatások könnyen megközelíthetők.
Ideális választás azoknak a családoknak, akik kényelmes, jó elhelyezkedésű, jól alakítható otthont keresnek Pestszentlőrinc szívében.
Referenciaszám, amire, hivatkozzon, kérem!: M318635
Tulajdonságok
Családi ház
Átlagos
Elektromos
1980
Nem adta meg a hirdető
Vedd fel a kapcsolatot a hirdetővel
Szabó Viktor OTPip - Dunaharaszti Bocskai utca 10 - OTP Ingatlanpont Iroda Az iroda összes hirdetése
+36 20 383 7
Hitelkalkulátor
Második évtől
335 676 Ft A 13. hónaptól
7,99%
Végig fix Futamidő: 20 év Banki visszahívás
Az OTP Bank munkatársai a neked megfelelő napszakban veszik fel veled a kapcsolatot. A becslés a hirdető által megadott adatokon alapul. A jelen tájékoztatás nem minősül ajánlattételnek és nem teljes körű, az egyes feltételek a hitelbírálat eredményétől függően változhatnak. Kérjük, a részletekről tájékozódj az OTP Bank fiókjaiban vagy az OTP Bank honlapján közzétett vonatkozó Üzletszabályzatokból és Hirdetményekből.
Vedd fel a kapcsolatot a hirdetővel
Szabó Viktor OTPip - Dunaharaszti Bocskai utca 10 - OTP Ingatlanpont Iroda Az iroda összes hirdetése
+36 20 383 7
Vedd fel a kapcsolatot a hirdetővel
Szabó Viktor OTPip - Dunaharaszti Bocskai utca 10 - OTP Ingatlanpont Iroda Az iroda összes hirdetése
+36 20 383 7
UI_KIT.CHARACTER_COUNTER__COMPONENT.REMAINING_SPACE__SR_ONLYUI_KIT.CHARACTER_COUNTER__COMPONENT.MAXIMUM_CHARACTER__SR_ONLY
Hasonló eladó ingatlanok Budapest XVIII. kerületben
Frissítve: 28 napja
13
74,5 M Ft 677 273 Ft/m²
Eladó ikerház, Budapest XVIII. kerület

Frissítve: 25 napja
12
79,99 M Ft 908 977 Ft/m²
Eladó családi ház, Budapest XVIII. kerület

Frissítve: 4 napja
12
79,99 M Ft 908 977 Ft/m²
Eladó családi ház, Budapest XVIII. kerület


Fedezd fel a
hasonló házakat!Még további házak Budapest XVIII. kerületben 78 M Ft körüli értékben
Tovább a hirdetésekhez Frissítve: 5 napja
13
79,99 M Ft 908 977 Ft/m²
Eladó családi ház, Budapest XVIII. kerület

Frissítve: 16 napja
13
79,99 M Ft 908 977 Ft/m²
Eladó családi ház, Budapest XVIII. kerület, Brigád utca

Frissítve: 9 napja
13
79,99 M Ft 908 977 Ft/m²
Eladó családi ház, Budapest XVIII. kerület


