+10 fotó
Hirdetéskód: 8929991
Referenciaszám: HZ067330-5174883
Frissítve: 24 napja
Budapest XVIII. kerület eladó családi ház 4 szobás: 79,99 millió Ft
79,99 millió Ft
909 ezer Ft/m²
88 m²
710 m²
4 szoba
Eladó ház, Budapest 18. ker.
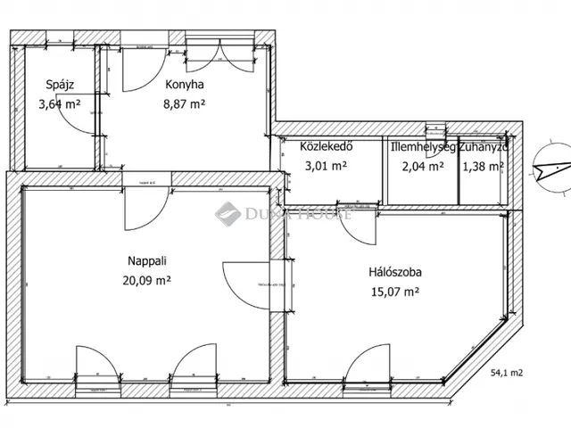
Eladó a 18. kerület közkedvelt részén, nyugodt, rendezett környezetben, egy 54 nm-es, és egy 33nm-es, két generációnak kiválóan alkalmas családi házak, 710 nm-es telken!Mindkét ház két szobás, és összkomfortos.A nagyobbik ingatlan felújított, a tetőre 5,8 KW 20 panel napelem került felszerelésre, ami mindkét otthont ellátja energiával.A kisebbik ingatlan felújítandó, alatta pince található.A kert kiválóan alkalmas baráti összejövetelekre, ásott kút, szaletli, sütögető, és egy kis játszótér szolgálja kényelmünket.Ha felkeltette érdeklődését ez a kiváló paraméterekkel rendelkező ingatlan, további kérdéseivel, megtekintésért kérem hívjon, akár hétvégén is!
Tulajdonságok
Családi ház
Jó állapotú
Elektromos
1945
B
Vedd fel a kapcsolatot a hirdetővel

+36 1 690 17
Hitelkalkulátor
Második évtől
344 240 Ft A 13. hónaptól
7,99%
Végig fix Futamidő: 20 év Banki visszahívás
Az OTP Bank munkatársai a neked megfelelő napszakban veszik fel veled a kapcsolatot. A becslés a hirdető által megadott adatokon alapul. A jelen tájékoztatás nem minősül ajánlattételnek és nem teljes körű, az egyes feltételek a hitelbírálat eredményétől függően változhatnak. Kérjük, a részletekről tájékozódj az OTP Bank fiókjaiban vagy az OTP Bank honlapján közzétett vonatkozó Üzletszabályzatokból és Hirdetményekből.
Vedd fel a kapcsolatot a hirdetővel

+36 1 690 17
Vedd fel a kapcsolatot a hirdetővel

+36 1 690 17
UI_KIT.CHARACTER_COUNTER__COMPONENT.ACTUAL_CHARACTER__SR_ONLY UI_KIT.CHARACTER_COUNTER__COMPONENT.MAXIMUM_CHARACTER__SR_ONLY
Hasonló eladó ingatlanok Budapest XVIII. kerületben
Frissítve: ma
12
79,99 millió Ft 909 ezer Ft/m²
Eladó családi ház, Budapest XVIII. kerület

Frissítve: 24 napja
13
79,99 millió Ft 909 ezer Ft/m²
Eladó családi ház, Budapest XVIII. kerület

Frissítve: 1 hónapja
1
75 millió Ft 681,8 ezer Ft/m²
Eladó családi ház, Budapest XVIII. kerület, Tünde utca

Fedezd fel a
hasonló házakat!Még további házak Budapest XVIII. kerületben 79,99 M Ft körüli értékben
Tovább a hirdetésekhez Frissítve: 24 napja
12
79,99 millió Ft 909 ezer Ft/m²
Eladó családi ház, Budapest XVIII. kerület

Frissítve: 24 napja
13
74,5 millió Ft 677,3 ezer Ft/m²
Eladó ikerház, Budapest XVIII. kerület

Frissítve: 24 napja
13
79,99 millió Ft 909 ezer Ft/m²
Eladó családi ház, Budapest XVIII. kerület

