Hirdetéskód: 8891996
Referenciaszám: 24726
Feltöltve: 1 napja
Budapest XXI. kerület eladó családi ház 4 szobás: 114,9 millió Ft
114,9 millió Ft
1 262 637 Ft/m²
91 m²
600 m²
4 szoba
Leírás
Eladó újépítésű önálló családi ház a XXI. kerület szomszédságában!
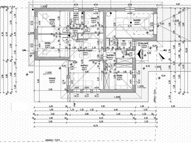
Eladásra kínálunk egy 91 négyzetméteres, földszintes, önálló családi házat Csepel agglomerációjában, a Dunapart csendes, kertvárosias részén. Az ingatlan 2026 év végéig kerül átadásra, így a leendő tulajdonos még lehetőséget kap arra, hogy belső kialakítását és burkolatait saját ízlése szerint válassza ki. A modern technológiákkal épülő otthon kiváló hőszigeteléssel, energiatakarékos megoldásokkal és praktikusan kialakított belső terekkel várja új lakóit.
Az elhelyezkedés ideális azok számára, akik nyugodt, családbarát környezetre vágynak, ugyanakkor fontos számukra a jó közlekedés és a főváros közelsége. Csepel autóval vagy tömegközlekedéssel néhány perc alatt elérhető, a környéken pedig iskola, óvoda, boltok és egyéb szolgáltatások is megtalálhatók. A közelben elterülő zöldövezetek és a Duna közelsége kellemes, természetközeli életérzést kínálnak.
Az ingatlan banki finanszírozással is megvásárolható, melyben irodánk ingyenes tanácsadással áll rendelkezésére, hogy a jelenleg piacon lévő hitelkonstrukciók közül a legkedvezőbbet sikerüljön választani.
További kérdés kapcsán keressen minket bizalommal!
Tulajdonságok
Családi ház
Új építésű
Hőszivattyú
2006
19 m²
Nem adta meg a hirdető
Vedd fel a kapcsolatot a hirdetővel
+36 30 260 0
Hitelkalkulátor
Második évtől
494 477 Ft A 13. hónaptól
7,99% 8,49%
Végig fix Futamidő: 20 év Banki visszahívás
Az OTP Bank munkatársai a neked megfelelő napszakban veszik fel veled a kapcsolatot. A becslés a hirdető által megadott adatokon alapul. A jelen tájékoztatás nem minősül ajánlattételnek és nem teljes körű, az egyes feltételek a hitelbírálat eredményétől függően változhatnak. Kérjük, a részletekről tájékozódj az OTP Bank fiókjaiban vagy az OTP Bank honlapján közzétett vonatkozó Üzletszabályzatokból és Hirdetményekből.
Vedd fel a kapcsolatot a hirdetővel
+36 30 260 0
Vedd fel a kapcsolatot a hirdetővel
+36 30 260 0
UI_KIT.CHARACTER_COUNTER__COMPONENT.ACTUAL_CHARACTER__SR_ONLY UI_KIT.CHARACTER_COUNTER__COMPONENT.MAXIMUM_CHARACTER__SR_ONLY
Hasonló eladó ingatlanok Budapest XXI. kerületben
Frissítve: 27 napja
8
120 M Ft 731 886 Ft/m²
Eladó családi ház, Budapest XXI. kerület

Frissítve: 7 napja
8
120 M Ft 736 196 Ft/m²
Eladó családi ház, Budapest XXI. kerület

Frissítve: 5 napja
18
124,9 M Ft 657 369 Ft/m²
Eladó családi ház, Budapest XXI. kerület


Fedezd fel a
hasonló házakat!Még további házak Budapest XXI. kerületben 114,9 M Ft körüli értékben
Tovább a hirdetésekhez Frissítve: ma
18
124,9 M Ft 832 667 Ft/m²
Eladó családi ház, Budapest XXI. kerület

Frissítve: 3 napja
18
124,9 M Ft 832 667 Ft/m²
Eladó családi ház, Budapest XXI. kerület

Frissítve: 27 napja
18
124,9 M Ft 832 667 Ft/m²
Eladó családi ház, Budapest XXI. kerület


