+17 fotó
Hirdetéskód: 8768641
Referenciaszám: M298131-5073927
Frissítve: 15 napja
Budapest XXII. kerület eladó családi ház 9+2 fél szobás: 163 millió Ft
163 millió Ft
673 554 Ft/m²
242 m²
728 m²
9+2 fél szoba
Eladó Ház, Budapest 22. ker.
A XXII. kerület legkedveltebb részén, DUNATELEPEN családiház eladó.
Az utca végén Duna part, Kis-Háros sziget, természetvédelmi terület, lovarda, kajak-kenu egyesület és SUP kölcsönzési lehetőség!
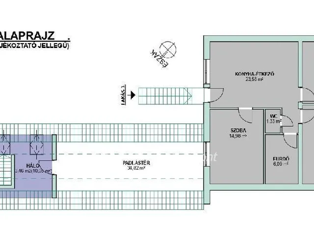
Eladásra kínálok egy nettó 242m2-es két szintes családi házat, melyben jelenleg három különálló lakás van kialakítva. A 724m2-es telken a házon felül fedett sütögető hely, tárolók, és mászóka is található.
Az épületen belül a három lakás a mellékelt alaprajz szerint helyezkedik el. Az 1. lakás 122m2, a 2. lakás, ami két szintes nettó 35m2-es, a 3. lakás pedig 86m2-es.
A fűtést automata váltókapcsolóval ellátott gáz cirko-, vagy vegyestüzelésű kazán biztosítja.
Az épület szigetelt, 2005-ben teljeskörűen felújították, azóta is folyamatosan karbantartják.
A parkolás a telken belül, és az utcán is lehetséges. Az utca zsákutca, átmenő forgalomtól mentes.
Lke-2/D/1-es övezeti besorolás alapján a telek 20%-os beépíthetőségi, 50% zöldterületi mutató, és 6 m-es építménymagassági maximummal rendelkezik.
Dunatelep lakó pihenő övezet, a lakók összetartóak, utcabálokat szerveznek, saját facebook csoportban segítik egymást. A Covid óta ez a legkedveltebb része a kerületnek.
Az ingatlan közvetlen közelében helyezkedik el a Dunapart ABC, mely élelmiszer kiskereskedés. 800m-re pedig két élelmiszer áruházlánci egység is elérhető (ALDI, LIDL). Bevásárló központ két kilométerre található, ahol a közműszolgáltatók, telefontársaságok kirendeltségein kívül posta, gyógyszertár, fodrász, fitnesz-terem, benzinkút is megtalálható (CAMPONA Bevásárló Központ)
Háziorvosi rendelő, bölcsőde, óvoda, iskola, 1 km távolságra.
A közelben éjszakai és nappali BKV járatok, agglomeráció felé közlekedő távolsági buszok megállói, és vasútállomás is található, a part mentén kerékpárút vezet, melyen szintén elérhetjük a belvárost.
Az ingatlan CSOK+-ra alkalmas, és a kiadható lakások a törlesztő részleteket is bőven fedezik.
Ne szalassza el ezt a lehetőséget.
Igény szerint hitelügyintézést, ügyvédi közreműködést biztosítunk, és segítséget nyújtunk az adásvétel folyamatának intézéséhez.
Otthon Start Hitelprogram
Amennyiben érdekli az ingatlan, vagy további kérdései vannak, hívjon telefonon kérem.
Tulajdonságok
Családi ház
Jó állapotú
Gázkazán
1970
Nem adta meg a hirdető
Vedd fel a kapcsolatot a hirdetővel
Szabó Zoltánné OTPip - Budapest II. kerület Szépvölgyi út 2 - OTP Ingatlanpont Iroda Az iroda összes hirdetése
+36 70 432 0
Hitelkalkulátor
Második évtől
701 478 Ft A 13. hónaptól
7,99%
Végig fix Futamidő: 20 év Banki visszahívás
Az OTP Bank munkatársai a neked megfelelő napszakban veszik fel veled a kapcsolatot. A becslés a hirdető által megadott adatokon alapul. A jelen tájékoztatás nem minősül ajánlattételnek és nem teljes körű, az egyes feltételek a hitelbírálat eredményétől függően változhatnak. Kérjük, a részletekről tájékozódj az OTP Bank fiókjaiban vagy az OTP Bank honlapján közzétett vonatkozó Üzletszabályzatokból és Hirdetményekből.
Vedd fel a kapcsolatot a hirdetővel
Szabó Zoltánné OTPip - Budapest II. kerület Szépvölgyi út 2 - OTP Ingatlanpont Iroda Az iroda összes hirdetése
+36 70 432 0
Vedd fel a kapcsolatot a hirdetővel
Szabó Zoltánné OTPip - Budapest II. kerület Szépvölgyi út 2 - OTP Ingatlanpont Iroda Az iroda összes hirdetése
+36 70 432 0
UI_KIT.CHARACTER_COUNTER__COMPONENT.REMAINING_SPACE__SR_ONLYUI_KIT.CHARACTER_COUNTER__COMPONENT.MAXIMUM_CHARACTER__SR_ONLY
Hasonló eladó ingatlanok Nagytétény-Dunatelep városrészben
Frissítve: 6 napja
20
163 M Ft 673 554 Ft/m²
Eladó családi ház, Budapest XXII. kerület, Nagytétény-Dunatelep

Frissítve: 2 napja
20
150 M Ft 1 250 000 Ft/m²
Eladó családi ház, Budapest XXII. kerület, Mátyás király utca

Frissítve: ma
19
149,9 M Ft 727 670 Ft/m²
Eladó ikerház, Budapest XXII. kerület, Nagytétény


Fedezd fel a
hasonló házakat!Még további házak Budapest XXII. kerületben 163 M Ft körüli értékben
Tovább a hirdetésekhez Frissítve: 2 napja
19
169,9 M Ft 918 378 Ft/m²
Eladó ikerház, Budapest XXII. kerület, Tatárka utca

Frissítve: 24 napja
20
149,9 M Ft 727 670 Ft/m²
Eladó ikerház, Budapest XXII. kerület, Nagytétény

Frissítve: 24 napja
20
175 M Ft 945 946 Ft/m²
Eladó ikerház, Budapest XXII. kerület, Budafok

