+4 fotó
Hirdetéskód: 8833822
Referenciaszám: HZ058383-5106871
Frissítve: ma
Ceglédbercel eladó családi ház 5 szobás: 89,99 millió Ft
89,99 millió Ft
818 091 Ft/m²
110 m²
1122 m²
5 szoba
Eladó ház, Ceglédbercel
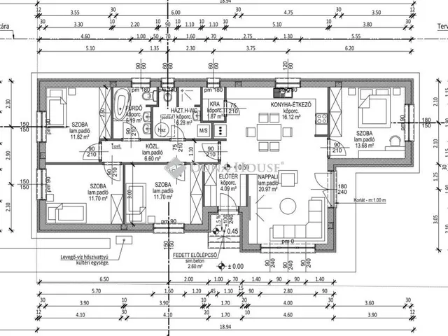
ÚJ ÉPÍTÉSŰ CSALÁDI HÁZ KULCSRAKÉSZEN Ceglédbercelen, Iskola utcában.Eladó egy 110m2-es családi ház, nappali + 4 szoba, nagy méretű, 1122 m²-es telken - az ár a telekkel együtt értendő!Ár: kulcsrakészen, terasz, konyhabútor és lámpatestek nélkülKiemelt előnyök:-ELŐFINANSZÍROZÁS lehetősége csak az elkészült ütemek után kell fizetni.-ÁRGARANCIA és kötbér vállalás a kivitelezőtől-Energiahatékony fűtés: BOSCH 3400 prémium levegő-víz hőszivattyú, vizes padlófűtéssel-3 rétegű prémium nyílászárók, választható belső burkolatok és ajtókMűszaki tartalom:Teherhordó falazat: Wienerberger Porotherm 30 N+FHomlokzati hőszigetelés: 15 cmTetőhéjazat választható: Leier Toscana tetőcserép választható színbenKülső nyílászárók: 3 réteg üvegezésű, kívül antracit, belül fehér prémium Gealan S8000 külső nyílászárók, 36 mm-es üvegezéssel + antracit, alumínium redőnyök + antracit műkő párkányVálaszfal: Wienerberger Porotherm 10 tégla válaszfalBejárati ajtó választható: Colorplast standard betéttelTeraszajtó: Dupla szárnyasBeltéri ajtó: Borovi Szicília (dekorfóliás) választható színbenHidegburkolat választható: 6.500 Ft / m2Melegburkolat választható: 6.000 Ft / m2Szaniterek választható: (kád, zuhanykabin, csaptelep stb.) 460.000Ft-igGépészet: Bosch 3400 levegő-víz hőszivattyú vizes padlófűtésselAz ár kulcsrakész állapotban történő átadással értendő, konyhabútor és lámpatestek nélkül!Közművek:Gáz: nincsVillany: ingatlanbanCsatorna: ingatlanbanVíz: ingatlanban
Érd.: Rizmayer Mária +36202114504 email: rizmayer.maria@dh.hu
Referencia szám: HZ058383
Tulajdonságok
Családi ház
Új építésű
Hőszivattyú
2026
Nem adta meg a hirdető
Vedd fel a kapcsolatot a hirdetővel
+36 29 619 0
Hitelkalkulátor
Második évtől
387 276 Ft A 13. hónaptól
7,99% 8,49%
Végig fix Futamidő: 20 év Banki visszahívás
Az OTP Bank munkatársai a neked megfelelő napszakban veszik fel veled a kapcsolatot. A becslés a hirdető által megadott adatokon alapul. A jelen tájékoztatás nem minősül ajánlattételnek és nem teljes körű, az egyes feltételek a hitelbírálat eredményétől függően változhatnak. Kérjük, a részletekről tájékozódj az OTP Bank fiókjaiban vagy az OTP Bank honlapján közzétett vonatkozó Üzletszabályzatokból és Hirdetményekből.
Vedd fel a kapcsolatot a hirdetővel
+36 29 619 0
Vedd fel a kapcsolatot a hirdetővel
+36 29 619 0
UI_KIT.CHARACTER_COUNTER__COMPONENT.REMAINING_SPACE__SR_ONLYUI_KIT.CHARACTER_COUNTER__COMPONENT.MAXIMUM_CHARACTER__SR_ONLY
Hasonló eladó ingatlanok Ceglédbercelen
Frissítve: 2 napja
20
95 M Ft 431 818 Ft/m²
Eladó családi ház, Ceglédbercel

Frissítve: 2 napja
20
95 M Ft 431 818 Ft/m²
Eladó családi ház, Ceglédbercel

Feltöltve: 4 hónapja
16
84,9 M Ft 998 824 Ft/m²
Eladó családi ház, Ceglédbercel

Fedezd fel a
hasonló házakat!Még további házak Pest megyében 89,99 M Ft körüli értékben
Tovább a hirdetésekhez Feltöltve: 3 hónapja
1
90 M Ft 692 308 Ft/m²
Eladó családi ház, Ceglédbercel, Vörösmarty u. 20
Feltöltve: 3 hónapja
1
90 M Ft 428 571 Ft/m²
Eladó családi ház, Ceglédbercel, Vörösmarty u. 16
Frissítve: 5 napja
7
89,99 M Ft 818 091 Ft/m²
Eladó családi ház, Ceglédbercel, Iskola utca

