

+18 fotó
Hirdetéskód: 8734028
Referenciaszám: M295050-4859761
Feltöltve: ma
Csanytelek eladó családi ház 2+2 fél szobás: 8,8 millió Ft
8,8 millió Ft
108 642 Ft/m²
81 m²
1438 m²
2+2 fél szoba
Eladó Ház, Csanytelek
Remek lehetőség Csanyteleken! Csak az OTP Ingatlanpontnál!
Megvételre kínálok egy kiváló szerkezeti állapotú családi házat Csanyteleken, a Tömörkényi út közelében, aszfaltos utcában.
Az 1438m2-es telken egy főépület, tárolók és ólak vannak.
Az ingatlanban a csatornán kívül minden közmű megtalálható.
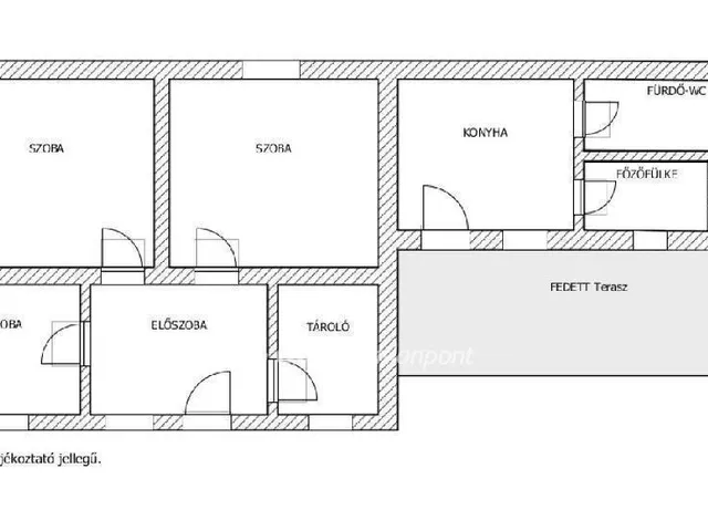
A lakóépület jelenleg 2 külön bejáratú részből áll, de egybenyitható és ezáltal egy jó elrendezésű 2+2 szobás otthon válhat belőle. A ház jelen állapotában egy tisztasági festést követően beköltözhető, de egy belső felújítás után korszerű és értékes ingatlan lesz. A hangulatos hátsó fedett terasz nyári családi összejövetelek színhelye lehet. Míg a kert és a portán található tárolók és ólak lehetőséget biztosítanak arra, hogy házi finomságok kerüljenek a család asztalára.
A fűtést gázkonvektorok és cserépkályha biztosítja, a melegvizet villanybojler szolgáltatja.
Az ingatlan rendezett környéken található, közel a Tömörkényi úthoz, buszmegálló a közelben van, remek lehetőség családok számára.
Annak ellenére, hogy a ház a falu szerves részét képezi, a tulajdoni lapon kivett tanya, szántóként szerepel, tehát kifüggesztéses.
Per-, teher- és igénymentes. Nagyon jó ár-érték arány, érdemes megnézni!
Amennyiben felkeltette érdeklődését, hívjon bizalommal!
Az OTP Ingatlanpont teljes körű ügyintézéssel áll az eladók és vevők rendelkezésére. A kínálatunkból választott ingatlan finanszírozásához kedvezményes hitelkonstrukciót biztosítunk. Az OTP Banknál elérhető Babaváró, falusi CSOK, CSOK Plusz hitel és egyéb kölcsönök intézését díjmentesen vállaljuk. Az adásvételi szerződés megkötéséhez igény szerint ügyvédet biztosítunk. Irodáink Szentes, Petőfi utca 12. a buszmegálló felől, és Csongrád, Fő utca 54. szám alatt várjuk a személyes érdeklődőket. Válasszuk ki együtt az Önnek legmegfelelőbb ajánlatot banki sorban állás nélkül!
Érdeklődni: Fekete Vivien +36 30 401 6887
Referencia szám: M295050
Tulajdonságok
1955
Nem adta meg a hirdető
Vedd fel a kapcsolatot a hirdetővel
+36 30 401 6
Hitelkalkulátor
Második évtől
37 871 Ft A 13. hónaptól
7,99%
Végig fix Futamidő: 20 év Banki visszahívás
Az OTP Bank munkatársai a neked megfelelő napszakban veszik fel veled a kapcsolatot. A becslés a hirdető által megadott adatokon alapul. A jelen tájékoztatás nem minősül ajánlattételnek és nem teljes körű, az egyes feltételek a hitelbírálat eredményétől függően változhatnak. Kérjük, a részletekről tájékozódj az OTP Bank fiókjaiban vagy az OTP Bank honlapján közzétett vonatkozó Üzletszabályzatokból és Hirdetményekből.
Vedd fel a kapcsolatot a hirdetővel
+36 30 401 6
Vedd fel a kapcsolatot a hirdetővel
+36 30 401 6
UI_KIT.CHARACTER_COUNTER__COMPONENT.REMAINING_SPACE__SR_ONLYUI_KIT.CHARACTER_COUNTER__COMPONENT.MAXIMUM_CHARACTER__SR_ONLY
Hasonló eladó ingatlanok Csanytelken
Frissítve: 3 napja

20
8,8 M Ft 108 642 Ft/m²
Eladó családi ház, Csanytelek

Frissítve: 10 napja

20
8,8 M Ft 108 642 Ft/m²
Eladó családi ház, Csanytelek

Frissítve: 9 napja

6
9 M Ft 500 000 Ft/m²
Eladó családi ház, Szeged

Fedezd fel a
hasonló házakat!Még további házak Csongrád megyében 8,8 M Ft körüli értékben
Tovább a hirdetésekhez Frissítve: ma

7
9,5 M Ft 135 714 Ft/m²
Eladó családi ház, Óföldeák
Frissítve: ma

9
8,5 M Ft 106 250 Ft/m²
Eladó családi ház, Öttömös
Frissítve: ma

2
9,49 M Ft 163 620 Ft/m²
Eladó családi ház, Magyarcsanád

Töltsd fel hirdetésed ingyenesen!
Egyszerű