+17 fotó
Hirdetéskód: 8970355
Referenciaszám: M325835-5201607
Feltöltve: 1 napja
Csanytelek eladó családi ház 3 szobás: 15,9 millió Ft
15,9 millió Ft
174 725 Ft/m²
91 m²
4552 m²
3 szoba
Eladó Ház, Csanytelek
Kitűnő lehetőség Csanyteleken! Csak az OTP Ingatlanpontnál!
Megvételre kínálok egy jó szerkezeti állapotú családi házat Csanyteleken, a központhoz közel.
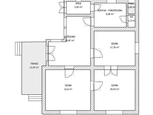
Az 4552m2-es gondozott telken egy főépület, tárolók és ólak vannak.
A vegyes falazatú 91m2-es lakóépületben egy tágas előszoba, 3 szoba, konyha, fürdő, WC, kamra kapott helyet, az előszobához egy 13m2-es fedett terasz kapcsolódik. A konyha alatt egy tárolásra alkalmas pince található. A ház felújítást igényel, korszerűsítés után értékes ingatlan válhat belőle.
A fűtést jelenleg gázkonvektorok és 2 cserépkályha biztosítja, a melegvizet villanybojler szolgáltatja.
A meglévő ólak lehetőséget biztosítanak háziállatok tartására, míg a nagyméretű telken bőven van hely konyhakert kialakítására is, az öntözéshez fúrt kút is rendelkezésre áll.
A telek végében egy 5992m2-es, szépen gondozott gyümölcsös (dió és kajszibarack) található, ami házzal együtt megvásárolható + 2 millió forintos irányáron.
Az ingatlan rendezett környéken van, a központ közelében. Óvoda, iskola, élelmiszerbolt, piac, buszmegálló a közelben van, remek lehetőség családok számára.
Az ingatlanban minden közmű megtalálható.
Per-, teher- és igénymentes.
Amennyiben felkeltette érdeklődését, hívjon bizalommal!
Az OTP Ingatlanpont teljes körű ügyintézéssel áll az eladók és vevők rendelkezésére. A kínálatunkból választott ingatlan finanszírozásához kedvezményes hitelkonstrukciót biztosítunk. Az OTP Banknál elérhető Babaváró, falusi CSOK, CSOK Plusz hitel és egyéb kölcsönök intézését díjmentesen vállaljuk. Az adásvételi szerződés megkötéséhez igény szerint ügyvédet biztosítunk. Irodáink Szentes, Petőfi utca 12. a buszmegálló felől, és Csongrád, Fő utca 54. szám alatt várjuk a személyes érdeklődőket. Válasszuk ki együtt az Önnek legmegfelelőbb ajánlatot banki sorban állás nélkül!
Referencia szám: M325835-ZE
Tulajdonságok
Családi ház
Felújítandó
Gáz (konvektor)
1960
Nem adta meg a hirdető
Vedd fel a kapcsolatot a hirdetővel
+36 70 708 1
Hitelkalkulátor
Második évtől
68 426 Ft A 13. hónaptól
7,99%
Végig fix Futamidő: 20 év Banki visszahívás
Az OTP Bank munkatársai a neked megfelelő napszakban veszik fel veled a kapcsolatot. A becslés a hirdető által megadott adatokon alapul. A jelen tájékoztatás nem minősül ajánlattételnek és nem teljes körű, az egyes feltételek a hitelbírálat eredményétől függően változhatnak. Kérjük, a részletekről tájékozódj az OTP Bank fiókjaiban vagy az OTP Bank honlapján közzétett vonatkozó Üzletszabályzatokból és Hirdetményekből.
Vedd fel a kapcsolatot a hirdetővel
+36 70 708 1
Vedd fel a kapcsolatot a hirdetővel
+36 70 708 1
UI_KIT.CHARACTER_COUNTER__COMPONENT.ACTUAL_CHARACTER__SR_ONLY UI_KIT.CHARACTER_COUNTER__COMPONENT.MAXIMUM_CHARACTER__SR_ONLY
Hasonló eladó ingatlanok Csanytelken
Feltöltve: 1 éve
1
16 M Ft 160 000 Ft/m²
Eladó családi ház, Csanytelek, Árpád utca
Frissítve: 9 napja
17
14,9 M Ft 232 813 Ft/m²
Eladó családi ház, Csanytelek, József Attila utca

Frissítve: 9 napja
12
17 M Ft 170 000 Ft/m²
Eladó családi ház, Csanytelek

Fedezd fel a
hasonló házakat!Még további házak Csongrád megyében 15,9 M Ft körüli értékben
Tovább a hirdetésekhez Frissítve: 9 napja
2
15,99 M Ft 285 535 Ft/m²
Eladó családi ház, Csanytelek
Frissítve: 9 napja
20
15,9 M Ft 174 726 Ft/m²
Eladó családi ház, Csanytelek

Frissítve: 9 napja
6
14,99 M Ft 85 714 Ft/m²
Eladó családi ház, Baks
