+2 fotó
Hirdetéskód: 8838620
Referenciaszám: HZ024716-5115296
Feltöltve: 3 napja
Csomád eladó családi ház 3+2 fél szobás: 149 millió Ft
149 millió Ft
1 284 483 Ft/m²
116 m²
744 m²
3+2 fél szoba
Eladó ház, Csomád
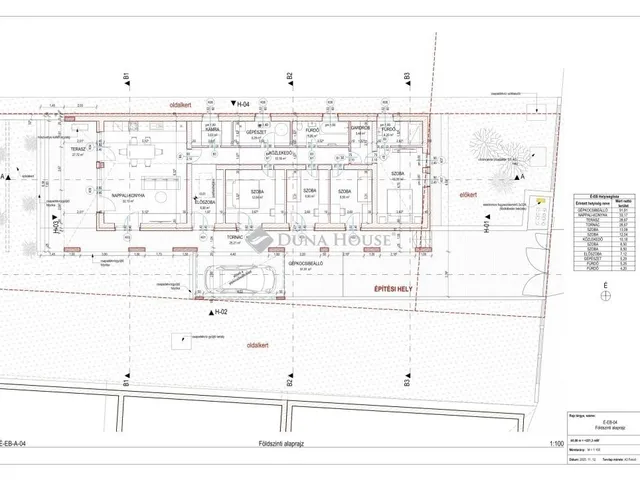
Eladó új építésű nappali + 4 szobás családi ház Csomádon!
Csendes, zöld környezetben, mégis Budapesthez közel kínálunk megvételre egy modern, energiatakarékos, A+ besorolású új építésű családi házat.
A település intézményei (óvoda, bölcsőde, iskola, orvosi rendelő) rövid sétával elérhetők, a főváros autóval és tömegközlekedéssel is gyorsan megközelíthető.
A 116,4 m²-es hasznos alapterületű otthon tágas, amerikai konyhás nappalival, négy hálószobával, kamrával, két fürdővel, gardróbbal és gépészeti helyiséggel rendelkezik. A nappalihoz 16 m² fedett terasz kapcsolódik, a parkolást fedett beálló biztosítja.
Az ingatlan kiemelkedő műszaki tartalommal készül: Porotherm falazat, 15 cm hőszigetelés, háromrétegű nyílászárók, levegővíz hőszivattyú padlófűtéssel, napelem-előkészítés, riasztó-előkészítés, betoncserép fedésű fafödémes tetőszerkezet. A burkolatok, beltéri ajtók és szaniterek a műszaki leírás szerinti keretösszegekig választhatók, így az ingatlan teljes mértékben az új tulajdonos igényeire szabható.
Várható átadás: 2026 év vége.
Korszerű kialakítás, alacsony rezsi, kiváló elhelyezkedés ideális, hosszú távon értékálló otthon családok számára.
Tulajdonságok
Családi ház
Új építésű
Hőszivattyú
2026
Nem adta meg a hirdető
Vedd fel a kapcsolatot a hirdetővel
+36 28 814 7
Hitelkalkulátor
Második évtől
641 228 Ft A 13. hónaptól
7,99% 8,49%
Végig fix Futamidő: 20 év Banki visszahívás
Az OTP Bank munkatársai a neked megfelelő napszakban veszik fel veled a kapcsolatot. A becslés a hirdető által megadott adatokon alapul. A jelen tájékoztatás nem minősül ajánlattételnek és nem teljes körű, az egyes feltételek a hitelbírálat eredményétől függően változhatnak. Kérjük, a részletekről tájékozódj az OTP Bank fiókjaiban vagy az OTP Bank honlapján közzétett vonatkozó Üzletszabályzatokból és Hirdetményekből.
Vedd fel a kapcsolatot a hirdetővel
+36 28 814 7
Vedd fel a kapcsolatot a hirdetővel
+36 28 814 7
UI_KIT.CHARACTER_COUNTER__COMPONENT.REMAINING_SPACE__SR_ONLYUI_KIT.CHARACTER_COUNTER__COMPONENT.MAXIMUM_CHARACTER__SR_ONLY
Hasonló eladó ingatlanok Csomádon
Frissítve: 14 napja
20
150 M Ft 652 174 Ft/m²
Eladó családi ház, Csomád

Frissítve: 19 napja
20
149,9 M Ft 619 421 Ft/m²
Eladó családi ház, Csomád

Frissítve: 16 napja
11
145 M Ft 1 021 127 Ft/m²
Eladó családi ház, Csomád, Kossuth Lajos út


Fedezd fel a
hasonló házakat!Még további házak Pest megyében 149 M Ft körüli értékben
Tovább a hirdetésekhez Frissítve: 14 napja
20
147 M Ft 445 455 Ft/m²
Eladó családi ház, Csomád

Frissítve: 15 napja
20
155 M Ft 603 113 Ft/m²
Eladó családi ház, Csomád

Frissítve: 16 napja
20
147 M Ft 432 353 Ft/m²
Eladó családi ház, Csomád

