+7 fotó
Hirdetéskód: 8879598
Referenciaszám: M313890-5064909
Feltöltve: 2 napja
Csongrád eladó családi ház 3 szobás: 10,9 millió Ft
10,9 millió Ft
126 744 Ft/m²
86 m²
559 m²
3 szoba
Eladó Ház, Csongrád
Csak az OTP Ingatlanpont kínálatában!
Csongrád központhoz közeli csendes utcájában eladó, egy jó szerkezetű, felújítandó családi ház!
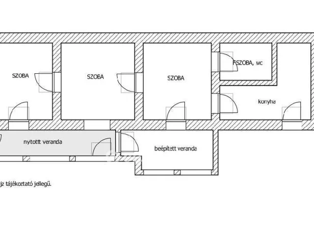
Az ingatlan kiváló lokációval rendelkezik. Az 559m2-es telken egy vegyes falazatú, felújításra szoruló lakóépület található. A 86m2 hasznos alapterületű házban 4 nagyobb helyiség, egy fürdőszoba, valamint egy nyitott és egy beépített veranda kapott helyet.
Villany, víz, csatorna közművel rendelkezik, a gáz a telken belül van, de gázóra jelenleg nincs.
A villanyhálózat részleges felújításon esett át, befejezésre vár.
A szobák betonosak.
Az ingatlan per, teher, és igénymentes.
Amennyiben felkeltettem érdeklődését, hívjon bizalommal!
Az OTP Ingatlanpont teljeskörű ügyintézéssel áll az eladók és vevők rendelkezésére. A kínálatunkból választott ingatlan finanszírozásához kedvezményes hitelkonstrukciót biztosítunk. Az OTP Banknál elérhető Babaváró, Otthon Start Hitelprogram, falusi CSOK, CSOK Plusz hitel és egyéb kölcsönök intézését díjmentesen vállaljuk. Az adásvételi szerződés megkötéséhez igény szerint ügyvédet biztosítunk. Irodáink Szentes, Petőfi utca 12. a buszmegálló felől, és Csongrád, Fő utca 54. szám alatt várjuk a személyes érdeklődőket. Válasszuk ki együtt az Önnek legmegfelelőbb ajánlatot banki sorban állás nélkül!
Referencia szám: M313890-ZE
Tulajdonságok
Családi ház
Felújítandó
Egyéb
1935
Nem adta meg a hirdető
Vedd fel a kapcsolatot a hirdetővel
+36 70 708 1
Hitelkalkulátor
Második évtől
46 909 Ft A 13. hónaptól
7,99%
Végig fix Futamidő: 20 év Banki visszahívás
Az OTP Bank munkatársai a neked megfelelő napszakban veszik fel veled a kapcsolatot. A becslés a hirdető által megadott adatokon alapul. A jelen tájékoztatás nem minősül ajánlattételnek és nem teljes körű, az egyes feltételek a hitelbírálat eredményétől függően változhatnak. Kérjük, a részletekről tájékozódj az OTP Bank fiókjaiban vagy az OTP Bank honlapján közzétett vonatkozó Üzletszabályzatokból és Hirdetményekből.
Vedd fel a kapcsolatot a hirdetővel
+36 70 708 1
Vedd fel a kapcsolatot a hirdetővel
+36 70 708 1
UI_KIT.CHARACTER_COUNTER__COMPONENT.ACTUAL_CHARACTER__SR_ONLY UI_KIT.CHARACTER_COUNTER__COMPONENT.MAXIMUM_CHARACTER__SR_ONLY
Hasonló eladó ingatlanok Csongrádon
Frissítve: 18 napja
19
11,3 M Ft 154 183 Ft/m²
Eladó családi ház, Csongrád

Frissítve: 4 napja
19
11,3 M Ft 154 795 Ft/m²
Eladó családi ház, Csongrád

Frissítve: 15 napja
15
11,3 M Ft 154 795 Ft/m²
Eladó családi ház, Csongrád


Fedezd fel a
hasonló házakat!Még további házak Csongrád megyében 10,9 M Ft körüli értékben
Tovább a hirdetésekhez Frissítve: 5 napja
10
10,9 M Ft 126 745 Ft/m²
Eladó családi ház, Csongrád

Frissítve: 6 napja
7
10,9 M Ft 121 111 Ft/m²
Eladó házrész, Hódmezővásárhely
Frissítve: 6 napja
5
9,99 M Ft 161 129 Ft/m²
Eladó családi ház, Mórahalom
