Hirdetéskód: 8694450
Referenciaszám: 55_dt
Frissítve: 1 napja
Csörög eladó családi ház 4 szobás: 85 millió Ft
85 millió Ft
691,1 ezer Ft/m²
123 m²
729 m²
4 szoba
Leírás
Új építésű önálló családi ház Csörög településen a Munkácsi Mihály utcában.
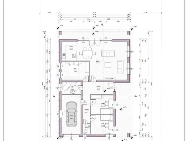
A tervezési koncepció szerint az épületben elhelyezkedő helyiségek:
Konyha parketta 7,03 m2
Nappali-étkező parketta 41,91 m2
Fürdő kerámia 5,99 m2
Szoba parketta 12,49 m2
Szoba parketta 10,57 m2
Szoba parketta 10,57 m2
WC kerámia 1,48 m2
Közlekedő kerámia 5,44 m2
Előszoba kerámia 9,70 m2
Lakás összesen: 105,18 m2
Garázs 18,46 m2
Fedett első terasz
123,64 m2
Fedett hátsó terasz kerámia 19,29 m2 és 13,58 m2
Tervezési koncepció szerint a telekre egy új építésű földszintes lakóház épül. Az
építési övezet szabadon álló, az épület 3 m-es oldalkerttel, 5 m előkerttel épül.
A lakóház az övezeti előírásoknak megfelelően egy lakást foglal magába. Az épület személy- és garázs bejárata egyaránt a Munkácsy utcáról nyílik. A
családi ház 1 állásos garázst foglal magában.
Tervezett fűtési rendszer az épületben levegő-víz hőszivattyús rendszer, hőleadás padlófűtésen keresztül történik.
Csörög település infrastrukturálisan kifejezetten jó ellátott. Az ingatlantól pár perc sétával a vasút-autóbusz-állomáson lehetünk, onnan Vácra vagy Budapest irányába is eljuthatunk. A település mellett halad az M2 autóút, mely 2x2 sávosra bővült, így megrövidítve a Budapestre valóbejutást.Az ingatlan településen belüli elhelyezkedése kifejezetten ideális,néhány perces sétával orvosi rendelő, óvoda, bevásárlási lehetőség, posta és játszótér is elérhető. A közeljövőben egy nagyobb minden igényt kielégítő szupermarket épül a településen, mely kiszolgáló kereskedelmi egységekkel bővül, mintpéldául gyógyszertárral.
A településen több utca aszfaltos útburkolatot kapott, ily módon is megkönnyítve a közlekedést, illetve számos kulturális-fesztivál eseménynek is otthont ad. Jöjjön, fedezze fel a házban rejlő lehetőségeket.
További információért várom hívását a hét bármely napján.
További információért várom hívását a hét bármely napján.
Tulajdonságok
Családi ház
1
Újszerű
Padlófűtés
2026
33 m²
Nem adta meg a hirdető
Vedd fel a kapcsolatot a hirdetővel
+36 70 369 4
Hitelkalkulátor
Második évtől
365 801 Ft A 13. hónaptól
7,99%
Végig fix Futamidő: 20 év Banki visszahívás
Az OTP Bank munkatársai a neked megfelelő napszakban veszik fel veled a kapcsolatot. A becslés a hirdető által megadott adatokon alapul. A jelen tájékoztatás nem minősül ajánlattételnek és nem teljes körű, az egyes feltételek a hitelbírálat eredményétől függően változhatnak. Kérjük, a részletekről tájékozódj az OTP Bank fiókjaiban vagy az OTP Bank honlapján közzétett vonatkozó Üzletszabályzatokból és Hirdetményekből.
Vedd fel a kapcsolatot a hirdetővel
+36 70 369 4
Vedd fel a kapcsolatot a hirdetővel
+36 70 369 4
UI_KIT.CHARACTER_COUNTER__COMPONENT.ACTUAL_CHARACTER__SR_ONLY UI_KIT.CHARACTER_COUNTER__COMPONENT.MAXIMUM_CHARACTER__SR_ONLY
Hasonló eladó ingatlanok Csörögön
Frissítve: 23 napja
20
91,99 millió Ft 919,9 ezer Ft/m²
Eladó családi ház, Csörög
Feltöltve: 9 hónapja
18
83,5 millió Ft 745,5 ezer Ft/m²
Eladó családi ház, Csörög
Frissítve: 1 hónapja
6
93,5 millió Ft 1,03 millió Ft/m²
Eladó ikerház, Csörög

Fedezd fel a
hasonló házakat!Még további házak Pest megyében 85 M Ft körüli értékben
Tovább a hirdetésekhez Frissítve: 9 napja
12
93,5 millió Ft 935 ezer Ft/m²
Eladó ikerház, Csörög
Frissítve: 1 hónapja
15
93 millió Ft 1,02 millió Ft/m²
Eladó ikerház, Csörög
Frissítve: 7 napja
7
79,9 millió Ft 929,1 ezer Ft/m²
Eladó ikerház, Csörög, Homokbánya utca

