Hirdetéskód: 8982390
Referenciaszám: HZ035861-5208786
Feltöltve: 1 napja
Dány eladó családi ház 5 szobás: 79,9 millió Ft
79,9 millió Ft
688,8 ezer Ft/m²
116 m²
966 m²
5 szoba
Eladó ház, Dány
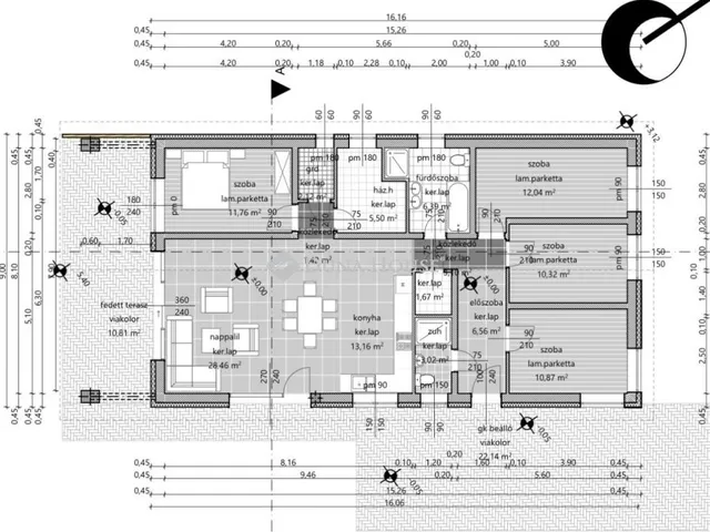
Dányban eladó, újépítésű, 4 szoba + nappalis, önálló családi ház, dupla fürdőszobával, hőszivattyús fűtéssel, 966 nm-es telekkel!
Belső nettó hasznos élhető tér 116.39 nm! + fedett terasz 10.81 nm
Telek területe 966 m2, 17 méter széles és 56 méter hosszú.
Várható átadás : 2026.10 hó
10 % önerővel szerződhető!
Helyiségeit tekintve nagyon jó elosztással rendelkezik, alábbiakban sorolom fel négyzetméterek megjelölésével:
- előszoba (6.56 nm)
- 4 önálló bejáratú szoba (11.76 nm, 12.04 nm, 10.32 nm, 10.87 nm)
- teraszkapcsolatos nagy nappali étkezővel, konyhával (41.62 nm)
- közlekedő (4.52 nm)
- háztartási helyiség (5.50 nm)
- fürdőszoba + wc (6.39 nm)
- zuhanyzó + wc (3.02 nm)
- kamra (1.67 nm)
- gardrób (2.12 nm)
Műszaki leírás:
- hőszivattyús fűtés, padlófűtéssel
- klíma a nappaliban
- burkolat 6000 ft / nm (hideg, meleg)
- 15 cm homlokzati hőszigetelés
- 10 cm lábazati hőszigetelés
- 30 cm üveggyapot tető hőszigetelés
- nyílászárók: típus műanyag szerkezetek, 3 rtg.hőszig.üveggel
- festés: belsőben páraáteresztő falfestékkel, színezve igény szerint
- csaptelepek 15 000 ft / db
- beltéri ajtók 60 000 ft / db
- alföldi márkájú szaniterek választhatóak
Dány egy csendes, barátságos település Pest vármegyében, a Gödöllői-dombság lankái között. A község ideális választás mindazok számára, akik nyugodt, vidéki környezetben szeretnének élni, ugyanakkor fontos számukra a főváros közelsége Budapest autóval körülbelül 30-50 perc alatt elérhető.
A település rendezett, folyamatosan fejlődő infrastruktúrával rendelkezik: megtalálható óvoda, iskola, orvosi rendelő, valamint alapvető kereskedelmi és szolgáltató egységek. A közösségi élet aktív, a helyi rendezvények és hagyományőrző programok erősítik az összetartó lakóközösséget.
Dány különösen vonzó lehet családok számára, hiszen a nyugodt környezet, a tiszta levegő és a zöldterületek kiváló életminőséget biztosítanak. A természet közelsége kirándulási és kikapcsolódási lehetőségeket kínál, miközben a mindennapi élethez szükséges szolgáltatások könnyen elérhetők.
Összességében Dány ideális választás azoknak, akik a város zajától távol, mégis jól megközelíthető helyen keresnek otthont.
Amennyiben felkeltettem érdeklődésed keress nyugodtan, és gyere, nézd meg velem az ingatlant!
Hitel ügyintézés, eladás és vétel teljes körű ügyintézése, ingyenes tanácsadás, értékbecslés, megbízható ügyvédi háttér biztosítása.
Tulajdonságok
Családi ház
Új építésű
Hőszivattyú
2026
C
Vedd fel a kapcsolatot a hirdetővel

+36 1 690 17
Hitelkalkulátor
Második évtől
343 853 Ft A 13. hónaptól
7,99% 8,49%
Végig fix Futamidő: 20 év Banki visszahívás
Az OTP Bank munkatársai a neked megfelelő napszakban veszik fel veled a kapcsolatot. A becslés a hirdető által megadott adatokon alapul. A jelen tájékoztatás nem minősül ajánlattételnek és nem teljes körű, az egyes feltételek a hitelbírálat eredményétől függően változhatnak. Kérjük, a részletekről tájékozódj az OTP Bank fiókjaiban vagy az OTP Bank honlapján közzétett vonatkozó Üzletszabályzatokból és Hirdetményekből.
Vedd fel a kapcsolatot a hirdetővel

+36 1 690 17
Vedd fel a kapcsolatot a hirdetővel

+36 1 690 17
UI_KIT.CHARACTER_COUNTER__COMPONENT.ACTUAL_CHARACTER__SR_ONLY UI_KIT.CHARACTER_COUNTER__COMPONENT.MAXIMUM_CHARACTER__SR_ONLY
Hasonló eladó ingatlanok Dányon
Frissítve: 10 hónapja
1
74,9 millió Ft 416,1 ezer Ft/m²
Eladó családi ház, Dány
Frissítve: 17 napja
11
77,5 millió Ft 922,6 ezer Ft/m²
Eladó családi ház, Dány
Frissítve: 3 napja
3
79,9 millió Ft 688,8 ezer Ft/m²
Eladó családi ház, Dány


Fedezd fel a
hasonló házakat!Még további házak Pest megyében 79,9 M Ft körüli értékben
Tovább a hirdetésekhez Frissítve: 1 napja
3
79,9 millió Ft 688,8 ezer Ft/m²
Eladó családi ház, Dány

Frissítve: 1 napja
3
79,9 millió Ft 688,8 ezer Ft/m²
Eladó családi ház, Dány

Feltöltve: 2 napja
3
79,9 millió Ft 688,8 ezer Ft/m²
Eladó családi ház, Dány

