Hirdetéskód: 8900305
Referenciaszám: 360011055-46
Frissítve: 1 hónapja
Diósd eladó családi ház 4 szobás: 177 millió Ft
177 millió Ft
1,64 millió Ft/m²
108 m²
960 m²
4 szoba
Diósdon, az Interspár közelében modern, újépítésű családi ház eladó! 108 nm +32 + beál
Diósdon, az Interspár közelében prémium kivitelű, újépítésű családi ház eladó!
3%-os Otthon Start hitel és CSOK+ igénybe vehető!
Az építkezés indulás előtt áll, így a belső kialakítás több részlete még személyre szabható. Ez az ingatlan műszaki tartalmában, felszereltségében és megjelenésében is a magasabb kategóriát képviseli.
Nettó 108 m² lakótér, 32 m² burkolt terasz, 960 m²-es telek – igényes, exkluzív környezetben.
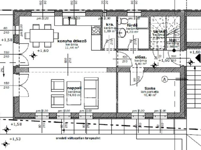
Helyiségek
Földszint (82,64 m²):
• Előszoba
• Nappali
• Konyha + étkező
• Szoba
• Fürdőszoba
• Külön WC
• Gardrób
• Háztartási helyiség
• Fedett terasz
Emelet (25,51 m²):
• 2 szoba
• Fürdőszoba
• Külön WC
• Közlekedő
Az elosztás kényelmes családi életteret biztosít, jól szeparált privát és közösségi terekkel.
Prémium felszereltség
• 30 cm-es síkra csiszolt tégla falazat
• 20 cm homlokzati hőszigetelés
• E gerendás beton födém
• Leier Gránit Lux antracit beton cserép
• 3 rétegű, 5 kamrás műanyag nyílászárók
• Kültéri reluxa és szúnyogháló
• Emelt értékű bejárati ajtó (nettó 250.000 Ft-ig)
• Belső ajtók (nettó 80.000 Ft-ig)
• Hideg- és melegburkolatok 12.000 Ft/m² értékig
• 15 kW napelem rendszer
• Elektromos autó kiállás
• 2 db wifi-s biztonsági kamera
• Kaputelefon
Fűtési rendszer – két választható megoldással
Az alapár tartalmazza:
• Fan-coil hűtő-fűtő egységek helyiségenként (összesen 5 db)
• 150 literes puffer tartály
• Törölközőszárító radiátor
• Nappaliban beépített kandalló
+3 M Ft felárért választható:
• 8 kW-os hőszivattyú (Technicool / Gree)
• 150 literes puffer tartály
• Padlófűtés központi szabályzó egységgel
• Mennyezethűtés
Konyhai elszívás faláttöréssel előkészítve.
Külső kialakítás
• Favázas, fedett kocsibeálló 2 gépjármű számára (70 m² térkő)
• Épített medence (3×6 m)
• Elektromos kapu (guruló vagy nyíló)
• Tereprendezett, füvesített kert
• Utcafronton 3D antracit kerítéspanel, Leier Modern kerítéskő pillérekkel
Átadás: szerződéskötéstől számított 10–12 hónap
Irányár: 177.000.000 Ft
Teljes körű, díjmentes hitelügyintézéssel segítjük a vásárlást.
Bankfüggetlen hiteltanácsadó partnerünk a legkedvezőbb finanszírozási megoldást keresi meg Önnek, és végigkíséri a teljes folyamaton.
További információért keressen bizalommal!
Tulajdonságok
Családi ház
Új építésű
Nem adta meg a hirdető
Vedd fel a kapcsolatot a hirdetővel
+36 20 220 0
Hitelkalkulátor
Második évtől
761 727 Ft A 13. hónaptól
7,99% 8,49%
Végig fix Futamidő: 20 év Banki visszahívás
Az OTP Bank munkatársai a neked megfelelő napszakban veszik fel veled a kapcsolatot. A becslés a hirdető által megadott adatokon alapul. A jelen tájékoztatás nem minősül ajánlattételnek és nem teljes körű, az egyes feltételek a hitelbírálat eredményétől függően változhatnak. Kérjük, a részletekről tájékozódj az OTP Bank fiókjaiban vagy az OTP Bank honlapján közzétett vonatkozó Üzletszabályzatokból és Hirdetményekből.
Vedd fel a kapcsolatot a hirdetővel
+36 20 220 0
Vedd fel a kapcsolatot a hirdetővel
+36 20 220 0
UI_KIT.CHARACTER_COUNTER__COMPONENT.ACTUAL_CHARACTER__SR_ONLY UI_KIT.CHARACTER_COUNTER__COMPONENT.MAXIMUM_CHARACTER__SR_ONLY
Hasonló eladó ingatlanok Diósdon
Frissítve: 4 napja
9
179,9 millió Ft 1,06 millió Ft/m²
Eladó ikerház, Diósd

Frissítve: 4 napja
9
179,9 millió Ft 1,06 millió Ft/m²
Eladó ikerház, Diósd

Frissítve: 1 hónapja
11
179,9 millió Ft 1,01 millió Ft/m²
Eladó ikerház, Diósd


Fedezd fel a
hasonló házakat!Még további házak Diósdon 177 M Ft körüli értékben
Tovább a hirdetésekhez Frissítve: 4 napja
9
179,9 millió Ft 1,06 millió Ft/m²
Eladó ikerház, Diósd

Frissítve: 3 napja
7
188,8 millió Ft 1,33 millió Ft/m²
Eladó családi ház, Diósd

Frissítve: 10 hónapja
1
165 millió Ft 1 millió Ft/m²
Eladó családi ház, Diósd, Tisza utca
