+17 fotó
Hirdetéskód: 8916187
Referenciaszám: M321351-5166208
Feltöltve: 2 napja
Döbrönte eladó családi ház 4 szobás: 52,9 millió Ft
52,9 millió Ft
594 382 Ft/m²
89 m²
1240 m²
4 szoba
Eladó Ház, Döbrönte
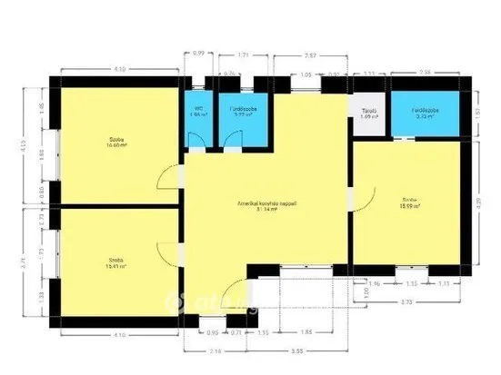
Páratlan lehetőség! Hívjon és vásárolja meg álmai otthonát vagy szabadidő eltöltésére hétvégi házát, ha falusi turizmusban gondolkodik vendégházát! Eladásra kínálok egy teljesen felújított, remek elrendezésű, igényes otthont, Veszprém megyében, Pápa közelében Döbröntén. A község Pápától 14,3 km-re, Győrtől 63,5 km-re, Veszprémtől 46,8 km-re fekszik, a Balatontól csupán 1 órányira van. Döbrönte kis bakonyi zsákfalu, a Bakony nyugati határán, lankás környezetben elhelyezkedő település kirándulni és pihenni vágyók számára egyaránt közkedvelt, kényelmes sétával elérhető az Ödön-forrás, itt található a középkori Szarvaskő vára, a falu egy népszerű turisztikai célpont a természetet keresőknek, ugyanakkor csendes és családias környezetben kínál lehetőséget a nagyvárosi élettől való elvonulásra. A faluban elérhetők az alapvető szolgáltatások. Az ingatlanban 3 teljes értékű, külön bejáratú szoba, amerikai konyhás nappali, kamra valamint 2 fürdőszoba és WC került kialakításra. A műanyag nyílászárók 3 rétegűek, megtörtént a külső hő szigetelés, a födém cseréje, ami 30 cm kőzetgyapottal szigetelt. Az ingatlan belsejében modern és elegáns kialakítású, kiváló minőségű burkolatok kerülnek felhasználásra. A villany és vízhálózat szintén felújított. Az energiafelhasználást egy 5 kW-os napelemrendszer segíti, amely jelentősen csökkenti a fenntartási költségeket. A házak melegéről elektromos fűtés gondoskodik, padlófűtéssel. Ipari áram és 3x25A áll rendelkezésre. Az udvar körbekerített, rendezett. A nagy udvar lehetőséget nyújt két vagy több autó számára parkolásra, garázs elhelyezésére. Ajánlom mindazon vevők, nagycsaládok, akik egy szép, családias, nyugodt településen kívánnak élni, távol a város zajától, de mégis közel több városhoz is, egy új és praktikus otthonban vagy olyanok számára, akik falusi turizmussal szeretnének foglalkozni vagy akár üzleti szempontból szeretnének egy jó befektetés. Az OTP Ingatlanpont teljes körű ügyintézéssel áll az eladók és a vevők rendelkezésére. A kínálatunkból választott ingatlan finanszírozásához kedvezményes hitelkonstrukciót kínálunk. Az adásvételi szerződés megkötéséhez igény szerint megbízható ügyvédi közreműködést biztosítunk, és segítséget nyújtunk az adásvételhez kapcsolódó ügyek intézéséhez is. Amennyiben felkeltette érdeklődését az általam kínált ingatlan, keressen bizalommal.
52900000 Ft
Amennyiben az ingatlan felkeltette érdeklődését, esetleg bármivel kapcsolatban kérdése lenne, keressen Bizalommal! Verrasztó Edina: +36703156380
Referencia szám: M321351-ZE
Tulajdonságok
Családi ház
Felújított
Elektromos
1958
Nem adta meg a hirdető
Vedd fel a kapcsolatot a hirdetővel
+36 70 315 6
Hitelkalkulátor
Második évtől
227 657 Ft A 13. hónaptól
7,99%
Végig fix Futamidő: 20 év Banki visszahívás
Az OTP Bank munkatársai a neked megfelelő napszakban veszik fel veled a kapcsolatot. A becslés a hirdető által megadott adatokon alapul. A jelen tájékoztatás nem minősül ajánlattételnek és nem teljes körű, az egyes feltételek a hitelbírálat eredményétől függően változhatnak. Kérjük, a részletekről tájékozódj az OTP Bank fiókjaiban vagy az OTP Bank honlapján közzétett vonatkozó Üzletszabályzatokból és Hirdetményekből.
Vedd fel a kapcsolatot a hirdetővel
+36 70 315 6
Vedd fel a kapcsolatot a hirdetővel
+36 70 315 6
UI_KIT.CHARACTER_COUNTER__COMPONENT.ACTUAL_CHARACTER__SR_ONLY UI_KIT.CHARACTER_COUNTER__COMPONENT.MAXIMUM_CHARACTER__SR_ONLY
Hasonló eladó ingatlanok Döbröntén
Frissítve: 17 napja
20
52,9 M Ft 589 744 Ft/m²
Eladó családi ház, Döbrönte

Frissítve: 17 napja
20
50 M Ft 400 000 Ft/m²
Eladó családi ház, Döbrönte

Frissítve: 8 napja
20
52,9 M Ft 594 382 Ft/m²
Eladó családi ház, Döbrönte


Fedezd fel a
hasonló házakat!Még további házak Veszprém megyében 52,9 M Ft körüli értékben
Tovább a hirdetésekhez Frissítve: 17 napja
20
57 M Ft 296 875 Ft/m²
Eladó családi ház, Pápa
Frissítve: 17 napja
13
49 M Ft 392 000 Ft/m²
Eladó családi ház, Tapolca

Feltöltve: 11 hónapja
1
50 M Ft 500 000 Ft/m²
Eladó családi ház, Nemesszalók, Jókai utca 4
